Bright family living with countryside views and modern kitchen.
Five-bedroom layout including dormer-converted attic bedroom
Re-fitted kitchen with integrated appliances and lots of light
Conservatory and rear garden backing onto open countryside
Ground-floor room usable as office or fifth bedroom
Electric car charging point and driveway parking for two
Two contemporary shower/bathrooms; good eaves storage
Freehold, about 1,625 sq ft; fast broadband, average mobile signal
Wider area classified as very deprived; council tax above average
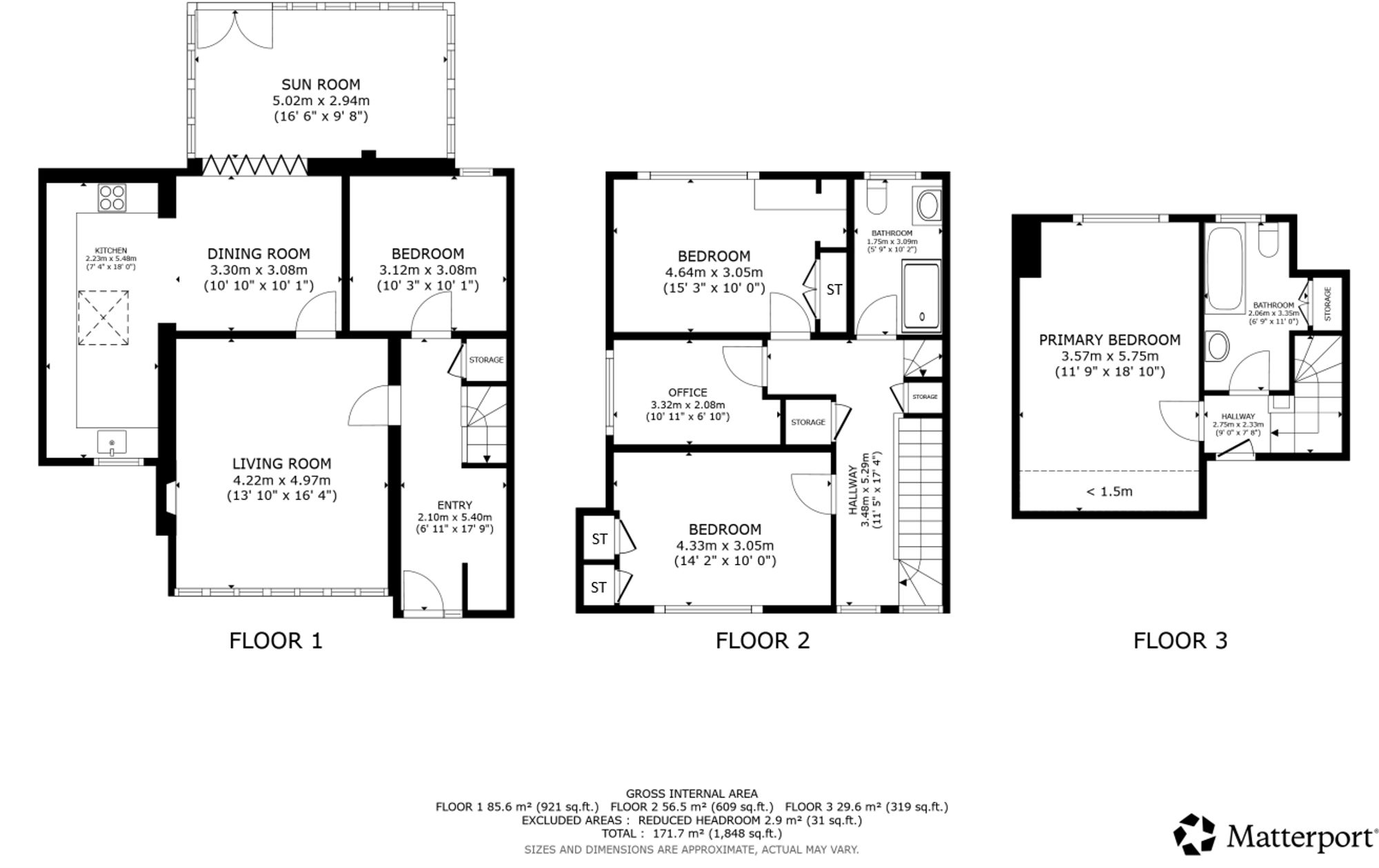
A sympathetically extended semi-detached home offering spacious, flexible accommodation for a growing family. The house feels bright throughout thanks to large windows, a generous lounge with a traditional open fire, and a wide, light-filled re-fitted kitchen with integrated appliances. The dining room leads to a large conservatory that overlooks a private rear garden backing onto open countryside — ideal for outdoor entertaining.
Accommodation is arranged over three levels and now provides five-bedroom capacity including a dormer-converted attic bedroom and an adaptable ground-floor room currently used as an office. There are contemporary shower/bathroom facilities on the first and attic floors, good eaves storage, and an electric car charging point with off-street parking for two vehicles on the driveway.
Practical points to note: the property is freehold, measures about 1,625 sq ft, and benefits from fast broadband but only average mobile signal. The home sits within East Renfrewshire school catchments sought after by families. However, the wider area is classified as very deprived and council tax is above average — factors buyers should consider alongside the house’s strong family appeal.
Overall this is a roomy, well-ordered family home with countryside views and modern fittings, offering immediate liveability and scope for personal updating or reconfiguration where desired.
5 bedroom detached bungalow for sale in 17 Field Road, Busby, G76 — £525,000 • 5 bed • 4 bath • 2293 ft²
3 bedroom semi-detached house for sale in Craighlaw Avenue, Waterfoot, G76 — £310,000 • 3 bed • 2 bath • 1238 ft²
3 bedroom end of terrace house for sale in Birch Avenue, Busby, Glasgow, East Renfrewshire, G76 — £230,000 • 3 bed • 1 bath • 824 ft²
5 bedroom detached house for sale in Strathnairn Court, Hairmyres, EAST KILBRIDE, G75 — £400,000 • 5 bed • 3 bath • 1507 ft²
4 bedroom detached house for sale in Meadow Rise, Newton Mearns, Glasgow, East Renfrewshire, G77 — £350,000 • 4 bed • 2 bath • 1236 ft²
2 bedroom flat for sale in Silvan Place, Busby, G76 — £140,000 • 2 bed • 1 bath • 624 ft²






































































































