Luxury new-build five-bedroom family home on a half-acre south-facing plot, available 2026.
Approximately 3,600 sq ft of living space
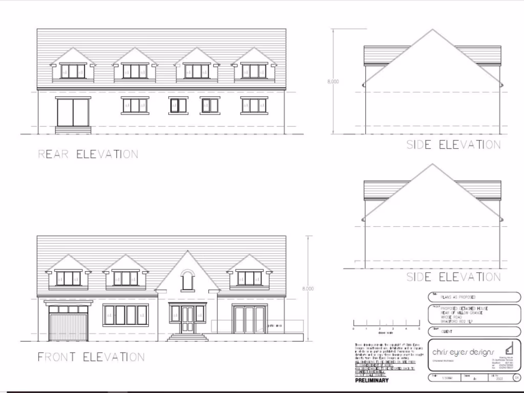
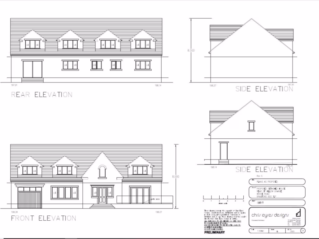
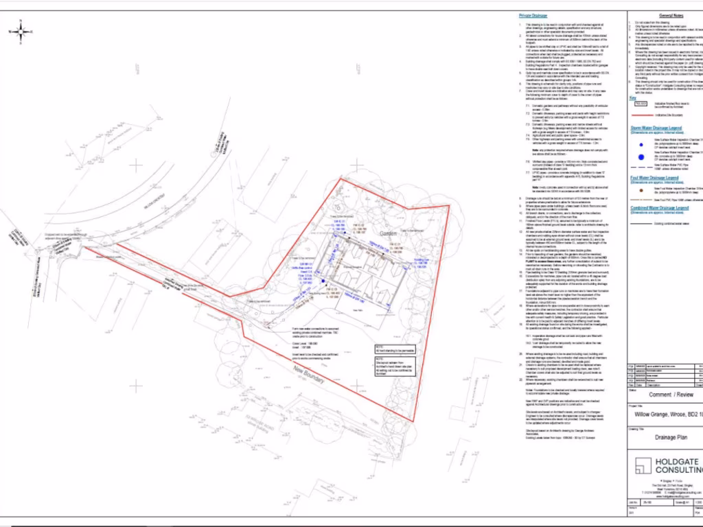
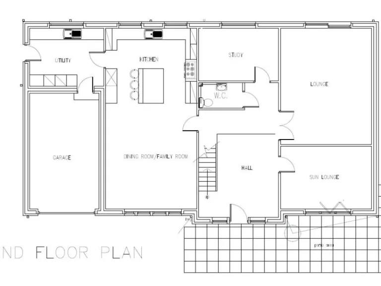
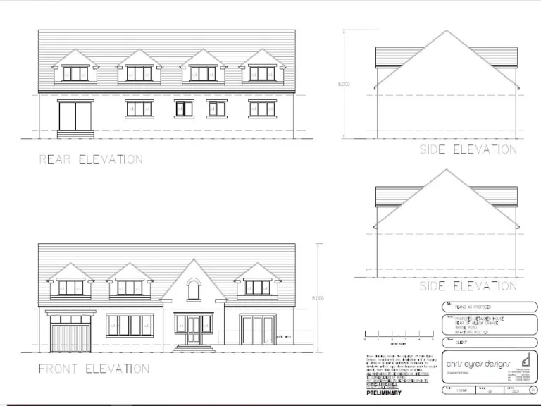
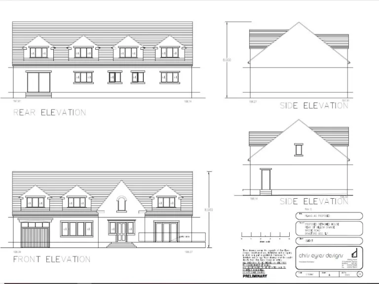
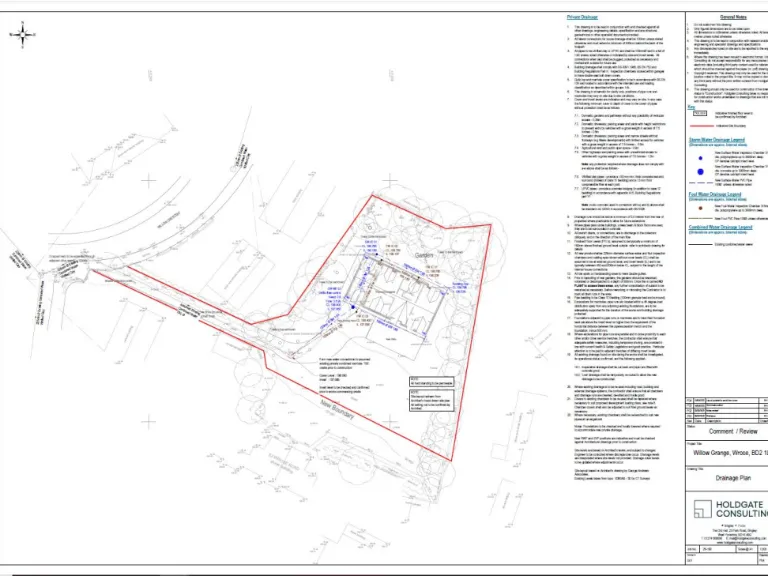
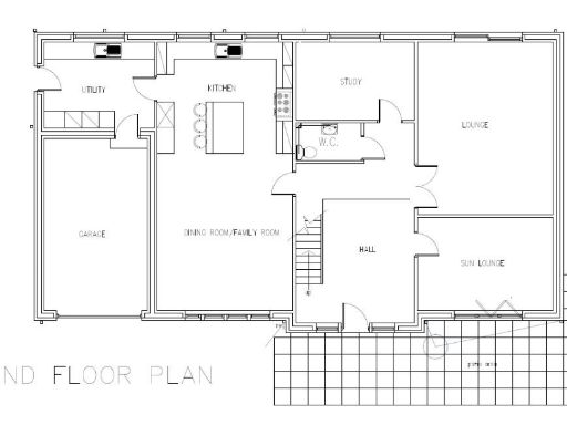
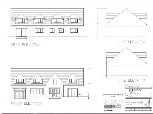
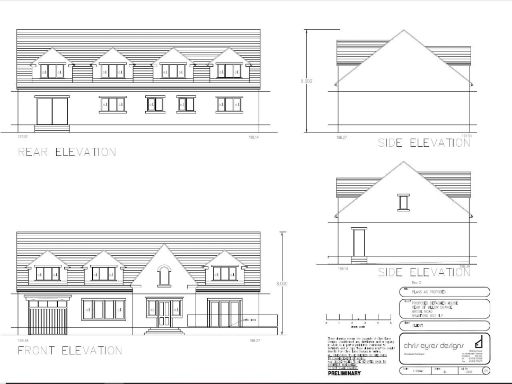
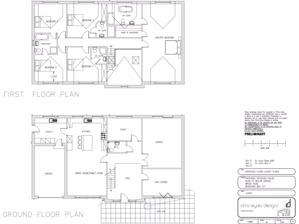
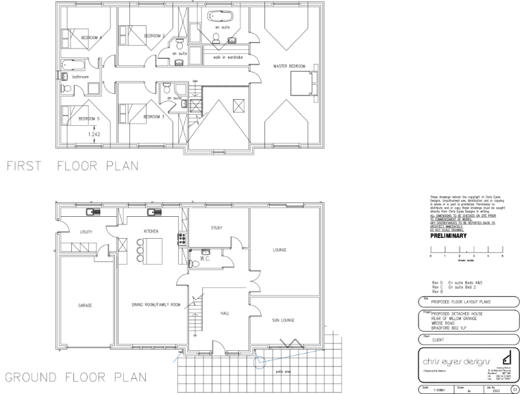
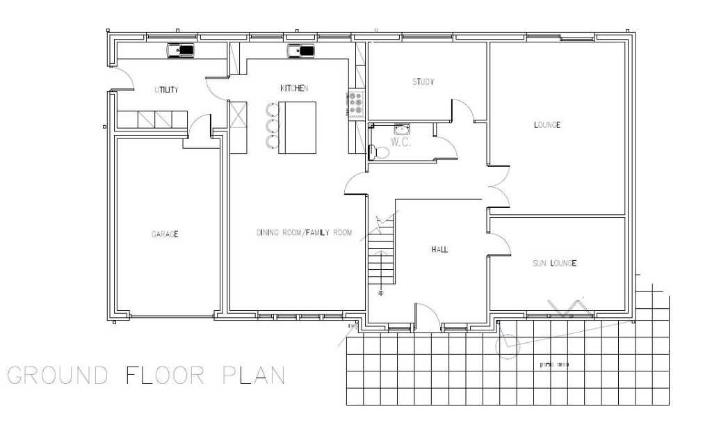
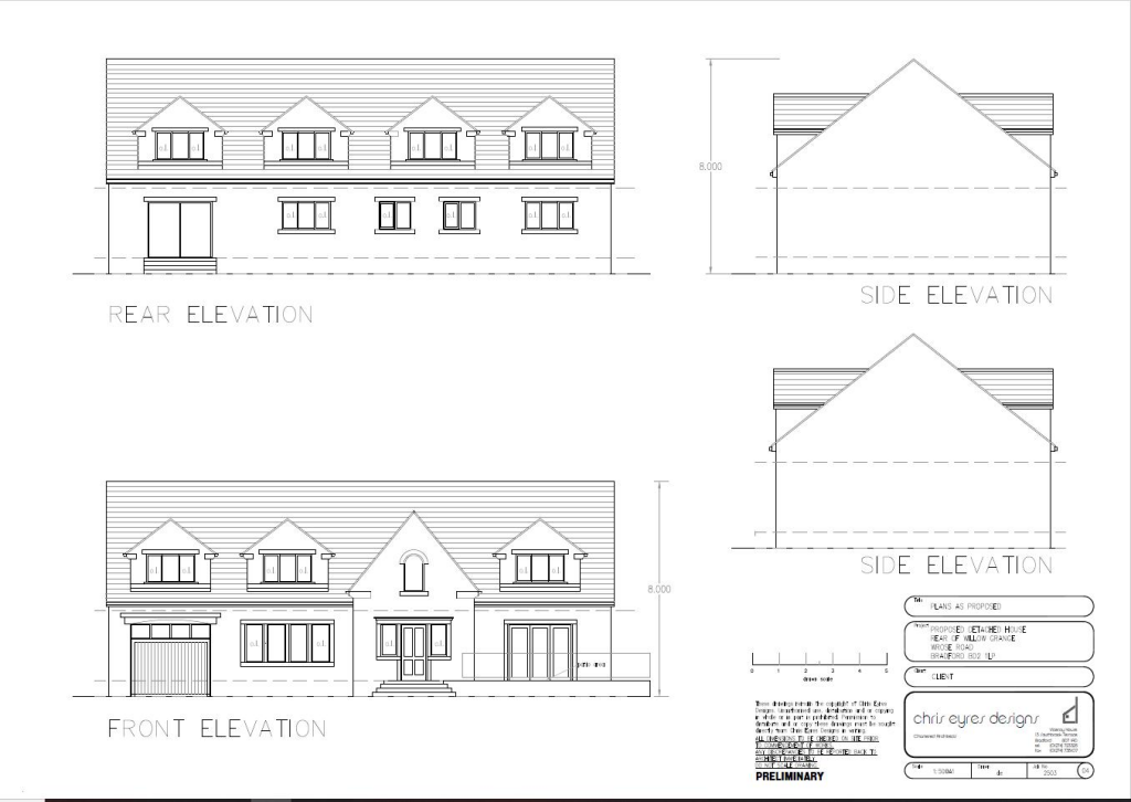
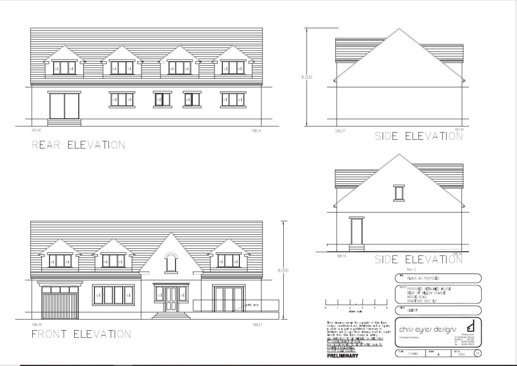
A substantial new-build detached home finished in a modern farmhouse style, this five-bedroom property offers generous family living across approximately 3,600 sq ft. Set on a very large, south-facing plot (circa half an acre), the house includes open-plan kitchen/diner, lounge, sun room, study and an integral garage with plentiful off-street parking. The location benefits from several ‘Good’-rated primary schools and fast broadband, suited to family life and home working.
The specification is pitched at the high end: expansive reception spaces, landscaped terraces and private gardens provide strong indoor–outdoor appeal for entertaining and family time. The main suite and multiple bedroom layouts are designed for comfort and flexibility. New-build warranties and no flood risk add practical reassurance.
A few material points to note: the local recorded crime level is high, which may affect perception and insurance costs. There is inconsistent information on bathroom numbers between marketing text (four bathrooms) and structured data (two bathrooms) — buyers should verify final specification. The property completes in 2026 as a new build, so any immediate changes or customisations should be agreed early.
Overall this detached home will suit buyers seeking a generous, contemporary family residence with substantial outdoor space and modern finishes, provided they accept the local area’s higher crime profile and confirm final room/bathroom specifications before exchange.
5 bedroom detached house for sale in Ilkley Road, Burley in Wharfedale, LS29 — £1,164,000 • 5 bed • 3 bath • 2133 ft²
5 bedroom house for sale in Ilkley Road, Burley in Wharfedale, LS29 — £1,000,000 • 5 bed • 3 bath • 1895 ft²
4 bedroom detached house for sale in Park Lane, Queensbury, Bradford, BD13 — £410,000 • 4 bed • 2 bath • 1594 ft²
4 bedroom detached house for sale in Park Lane, Queensbury, BD13 1QH, BD13 — £450,000 • 4 bed • 3 bath • 1216 ft²
5 bedroom detached house for sale in Kensington Way, Gomersal, Cleckheaton, West Yorkshire, BD19 — £695,000 • 5 bed • 3 bath • 2002 ft²
5 bedroom detached house for sale in Highmoor Gardens,
Westercroft Lane,
Northowram,
HX3 7EN, HX3 — £566,999 • 5 bed • 2 bath • 1615 ft²










































