Bright conservatory, double garage and low-maintenance gardens close to local amenities.
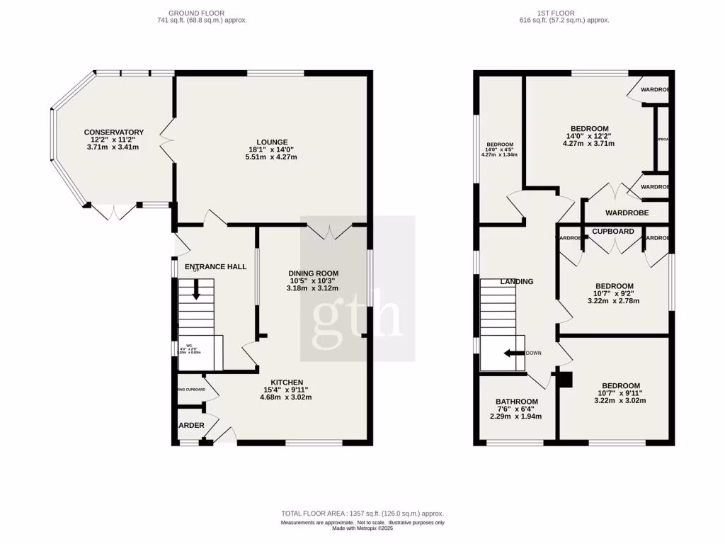
Detached four-bedroom house with conservatory and contemporary kitchen
This four-bedroom detached house offers generous family space with practical outdoor areas and good parking. A bright conservatory and a contemporary kitchen provide adaptable living for day-to-day life and entertaining. The property sits on a decent plot with a double garage and driveway for multiple vehicles.
The house is freehold, gas‑heated with a boiler and radiators, double glazing (install date unknown) and fast broadband and excellent mobile signal — useful for working from home. The rear garden combines patio, decking and artificial turf for low-maintenance outdoor living.
Buyers should note there is a single family bathroom serving four bedrooms, which may be restrictive for larger households. The property dates from the late 1960s–1970s and, while presented as modern in places, the age means some elements may need updating. The area records higher crime and local deprivation statistics, and the nearby primary school currently has an Inadequate Ofsted rating; these factors are important for family buyers to consider.
Overall this home suits those seeking roomy, flexible accommodation in a well‑connected location with parking and garage space, and who are comfortable managing any renovation or updating that the period build might require.
4 bedroom detached house for sale in Berrow Road, Burnham-on-sea, TA8 — £450,000 • 4 bed • 1 bath • 1389 ft²
3 bedroom house for sale in Coleridge Gardens, Burnham-On-Sea, TA8 — £375,000 • 3 bed • 1 bath • 980 ft²
4 bedroom detached house for sale in Meadowcroft Drive, Burnham-on-Sea, Somerset, TA8 — £450,000 • 4 bed • 2 bath • 1066 ft²
4 bedroom semi-detached house for sale in Berrow Road, Burnham-on-Sea, Somerset, TA8 — £375,000 • 4 bed • 2 bath • 1045 ft²
4 bedroom detached house for sale in Palmers Close, Burnham-on-Sea, TA8 — £359,950 • 4 bed • 1 bath • 1106 ft²
4 bedroom detached house for sale in Pizey Avenue, Burnham-on-Sea, Somerset, TA8 — £475,000 • 4 bed • 3 bath • 1453 ft²


































































































































