PE13 4RD - Plot for sale in Wisbech St. Mary, Wisbech, Cambridgeshire,…

View on Property Piper

Plot for sale in Wisbech St. Mary, Wisbech, Cambridgeshire, PE13 4RD, PE13

Summary - Wisbech St. Mary, Wisbech, Cambridgeshire, PE13 4RD PE13 4RD

1 bed 1 bath Plot

**Standout Features:**
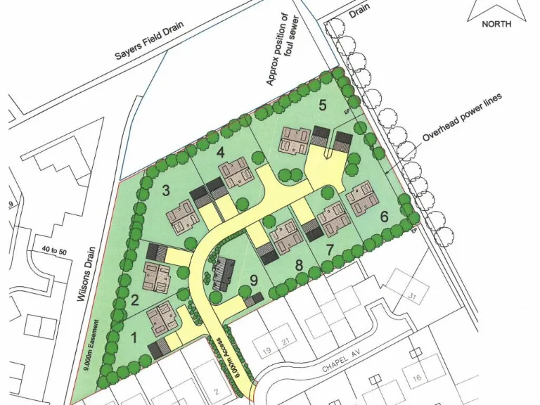
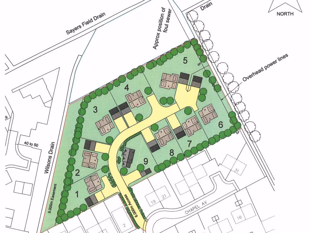
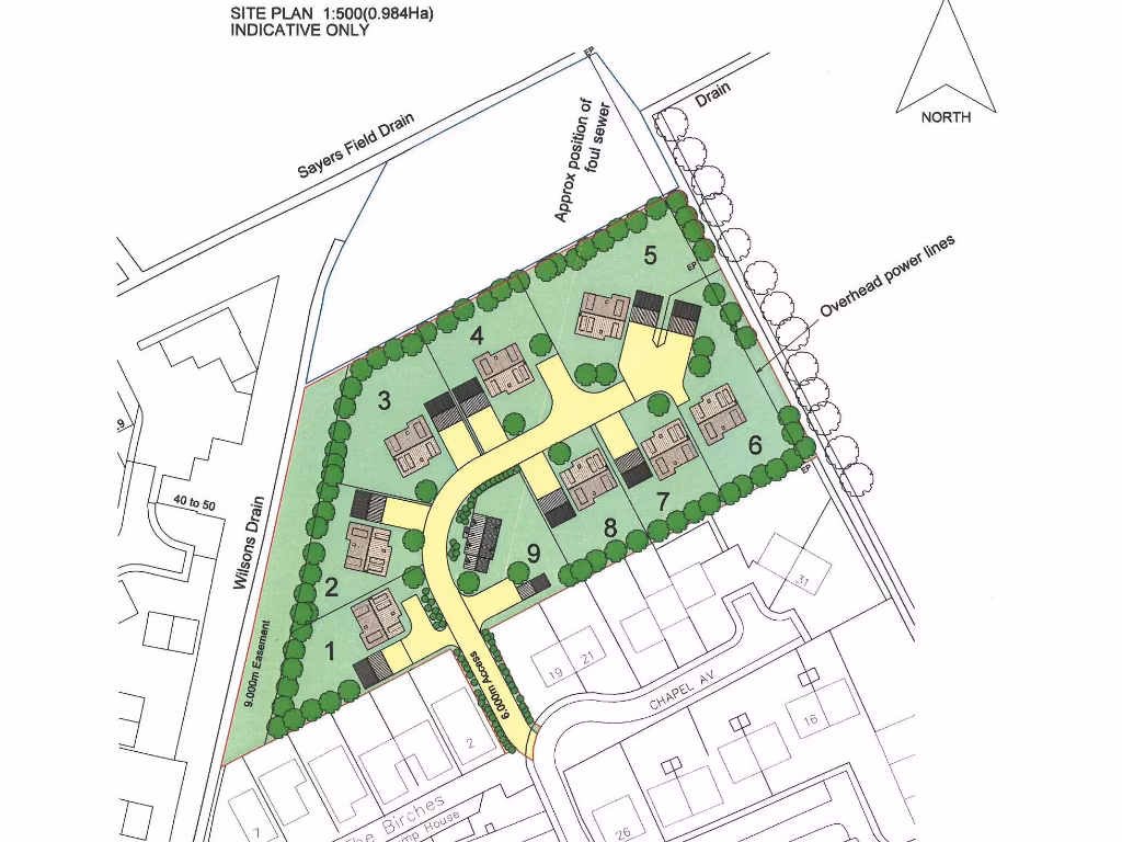
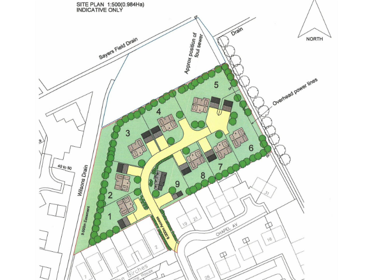
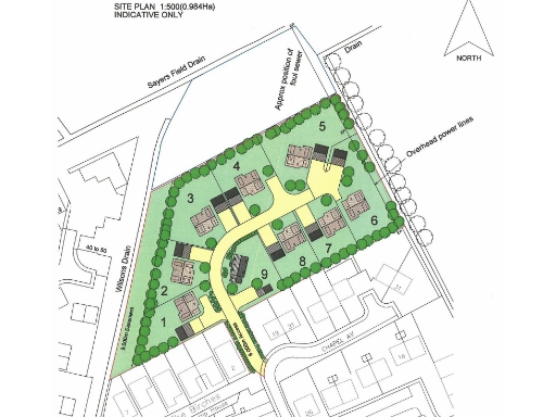
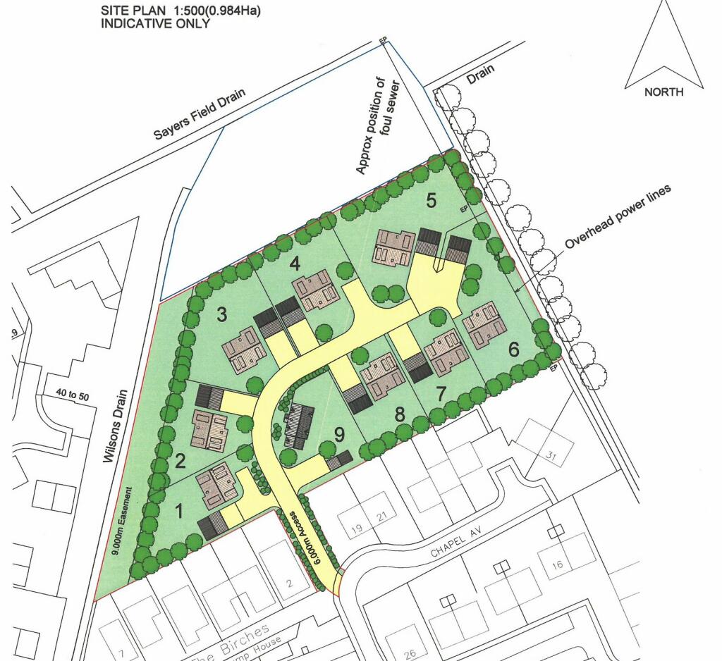
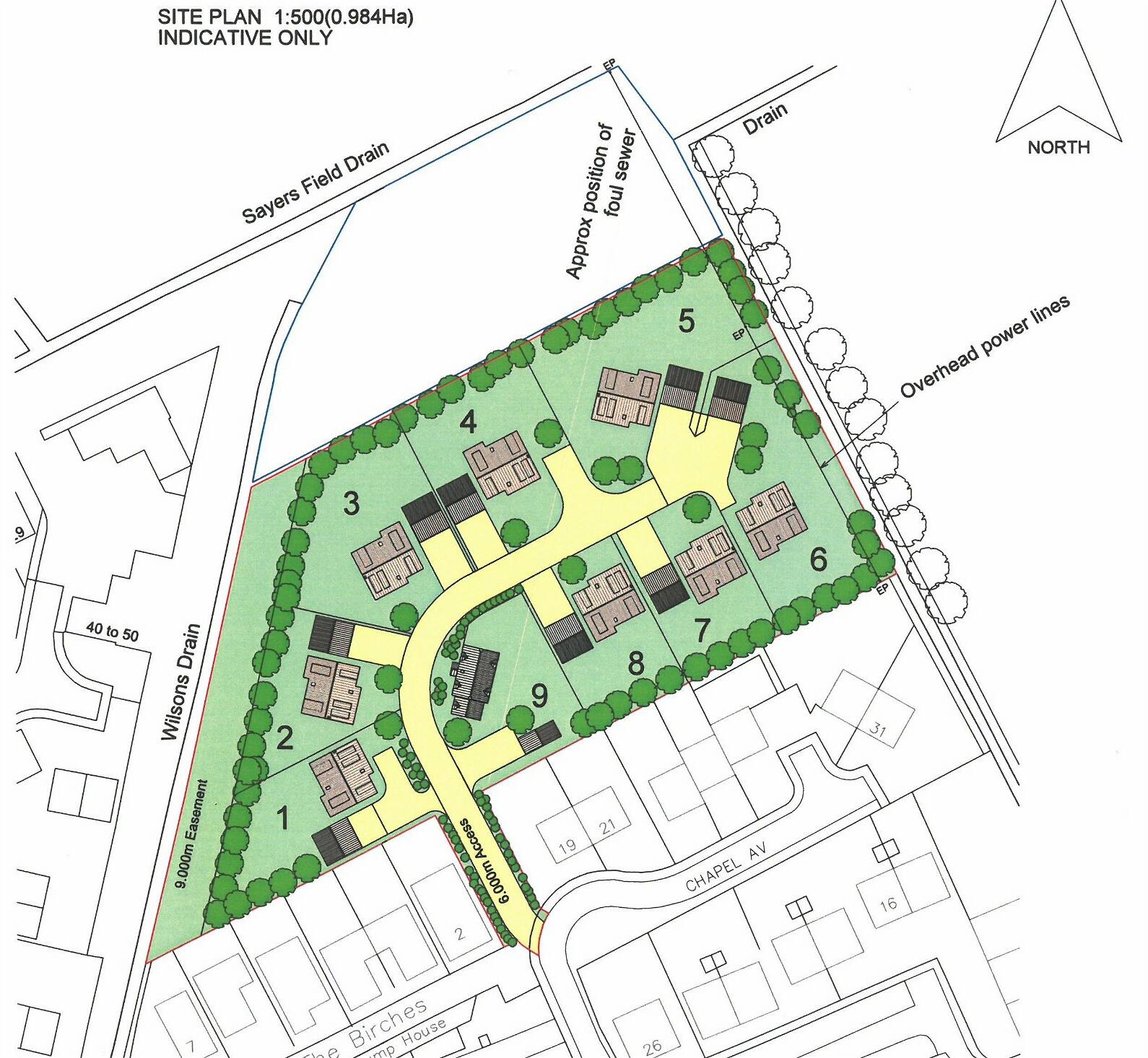
- **Sizeable Plot**: 0.98 hectares of residential development land with an additional 0.3 hectares available.
- **Planning Approval**: Outline planning consent for up to 9 dwellings, with no S106 obligations, providing flexibility for redevelopment.
- **Prime Location**: Centrally located in Wisbech St Mary, close to schools, local shops, and recreational facilities.
- **Utilities Available**: Mains water, electricity, and drainage service accessible; buyers to confirm with utility companies.
- **Chain-Free Sale**: The property is available freehold with vacant possession, making it an appealing investment opportunity.

**Summary:**
Unlock the potential of this expansive residential development site located in the heart of Wisbech St Mary. Spanning approximately 0.98 hectares, with an additional adjoining 0.3 hectares, this property comes with outline planning consent for up to 9 dwellings, and notably, there are no S106 requirements, maximizing your investment flexibility.

Situated near local amenities, including primary schools, shops, and green spaces, the site offers community vibrancy combined with a rural feel—ideal for family living or rental markets. With excellent mobile and broadband connectivity and easy access from Chapel Avenue, this is not just a plot but a canvas for your future. However, prospective buyers should verify available services to suit their development plans. Act quickly to seize this unique opportunity in a desirable village location!

Property Details

Brochure Descriptions

Image Descriptions

Floorplan Description

Textual Property Features

Detected Visual Features

Nearby Schools

Nearest Bars And Restaurants

,,,,}

Nearest General Shops

,,}

Nearest Grocery shops

,,}

Nearest Supermarkets

,,}

Nearest Religious buildings

,,}

Nearest Medical buildings

,,,}

Nearest Leisure Facilities

,,,,}

Nearest Tourist attractions

,,}

Nearest Train stations

,,,,}

Nearest Bus stations and stops

,,,,}

Nearest Hotels

,,}

Tags

Local Market Stats

AirBnB Data

Similar Properties

Meta

High Res Images

Compatible Images

Low res Images

Thumbnails

Raw Images

High Res Floorplan Images

Compatible Floorplan Images

Low res Floorplan Images

FloorplanImages Thumbnail

Raw Floorplan Images