Chain-free three-bedroom bungalow with south garden and excellent extension potential.
- Detached three-bedroom bungalow on a sizeable plot
- South-facing private rear garden, well screened
- Large driveway and single garage, ample parking
- Bright garden room suitable for home office or gym
- Boarded loft with easy access for storage
- Single family shower room; one bathroom only
- Cavity walls likely uninsulated; EPC rating D
- Scope to extend or reconfigure subject to planning
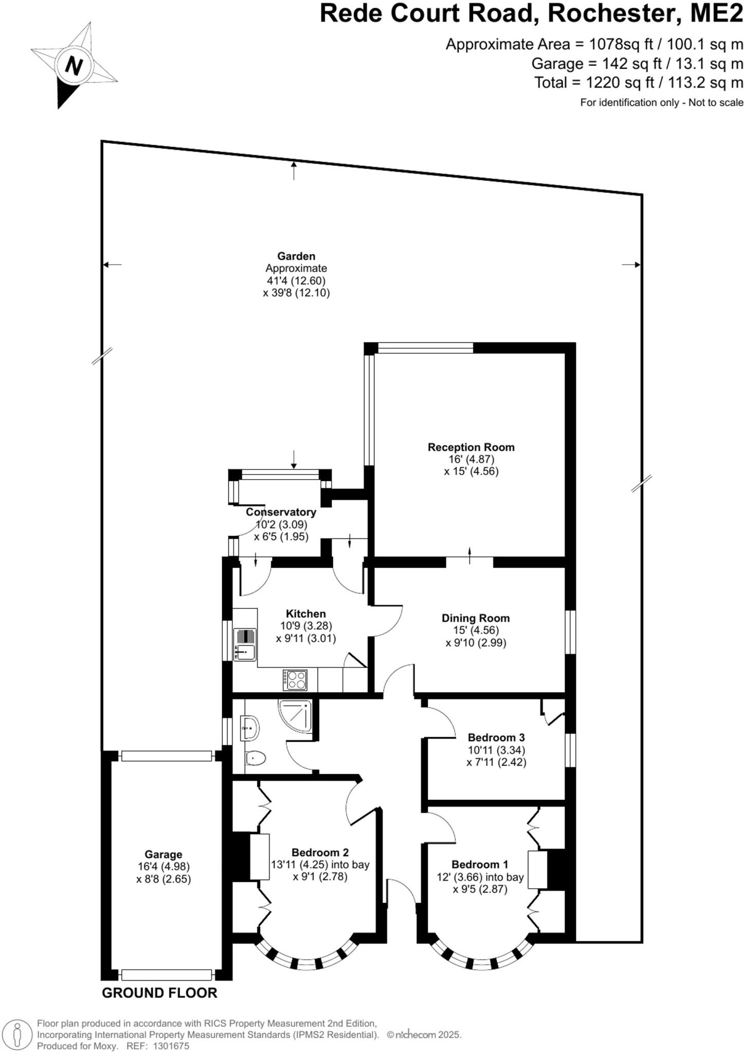
Set on a generous plot on sought-after Rede Court Road, this three-bedroom detached bungalow offers single-storey living with real scope to adapt. The sunny, south-facing rear garden and sizeable driveway with garage deliver easy outdoor living and parking for several vehicles. With no onward chain the purchase can be straightforward for buyers wanting a quick move.
Inside, the layout is practical and well maintained: a spacious lounge/diner, separate kitchen with good storage, a bright garden room ideal for a home office or gym, and a boarded loft for extra storage. The home is comfortable as-is and particularly suited to families, downsizers or buyers seeking a reconfiguration/extension opportunity (subject to planning).
Notable practical points are straightforward: the property has a single family shower room, an EPC rating of D, and cavity walls likely without insulation, so energy-efficiency improvements would be beneficial. Planning potential is a genuine value driver, but any extension or reconfiguration will require permission. Local transport links, schools and amenities are within easy reach, adding everyday convenience.
Overall, this bungalow combines a desirable plot and flexible living with clear upgrade potential. Buyers looking for a low-hassle chain-free purchase who are happy to invest in energy and cosmetic improvements will find strong value here.
3 bedroom detached bungalow for sale in Brompton Farm Road, Strood, Rochester, ME2 3RQ, ME2 — £575,000 • 3 bed • 2 bath • 1259 ft²
2 bedroom semi-detached bungalow for sale in Chartwell Close, Strood, Rochester, Kent. ME2 4RJ, ME2 — £325,000 • 2 bed • 1 bath • 721 ft²
3 bedroom detached bungalow for sale in Brompton Farm Road, Rochester, ME2 — £470,000 • 3 bed • 1 bath • 937 ft²
2 bedroom semi-detached bungalow for sale in Leybourne Road, Strood, Rochester, ME2 3QF, ME2 — £325,000 • 2 bed • 1 bath • 700 ft²
2 bedroom detached bungalow for sale in Lancelot Avenue, Strood, Rochester, ME2 — £300,000 • 2 bed • 1 bath • 913 ft²
2 bedroom detached bungalow for sale in Watermill Close, Rochester, ME2 4HB, ME2 — £390,000 • 2 bed • 1 bath • 831 ft²


















































































