**Standout Features:**
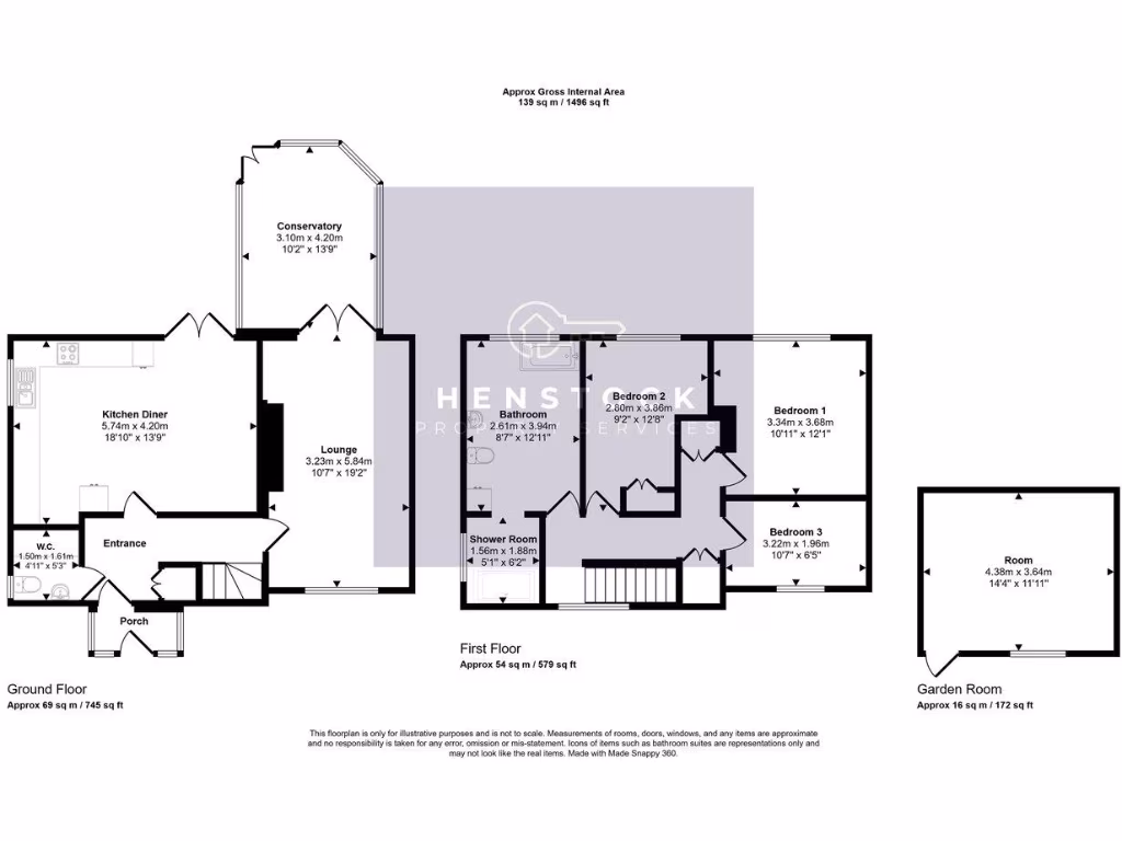
- 3 bedroom end-terraced home
- Well-presented modern interior
- Ground floor W.C.
- Large garden with workshop/storage room
- Gas central heating and double glazing
- Freehold property with council tax band A
- Chain free sale
- Close proximity to schools, shops, and transport links
**Summary:**
Experience the perfect blend of comfort and practicality in this beautifully presented 3-bedroom end-terraced home, ideally located in a desirable area with low crime rates. This property boasts a modern interior, featuring a spacious lounge that opens to a rear conservatory, a large kitchen/diner, and a contemporary 4-piece bathroom. With a well-maintained large rear garden complemented by a workshop/storage room, this home provides endless outdoor potential.
The freehold status ensures complete ownership, and being chain-free expedites your move into this inviting space. Families will appreciate the proximity to reputable schools, including St. Mary’s Roman Catholic Primary and Parkfield Primary, both rated ‘Good’ by Ofsted.
While the area faces some social challenges, the benefits of a well-connected location near leisure facilities and M60 & M62 motorway links enhance its appeal. At a competitive price of £254,000, with very low council tax, this home is an exceptional investment opportunity that won’t last long. Don’t miss your chance to secure your future in this charming property!
3 bedroom end of terrace house for sale in Boarshaw Road, Middleton, Manchester, M24 — £185,000 • 3 bed • 1 bath • 864 ft²
3 bedroom terraced house for sale in Higher Wood Street, Middleton, Manchester, M24 — £175,000 • 3 bed • 1 bath • 828 ft²
3 bedroom terraced house for sale in Windermere Road, Middleton, Manchester, M24 — £185,000 • 3 bed • 1 bath • 900 ft²
2 bedroom terraced house for sale in Pershore Road, Middleton, Manchester, M24 — £155,000 • 2 bed • 1 bath • 754 ft²
2 bedroom terraced house for sale in Wagstaffe Street, Middleton, Manchester, M24 — £165,000 • 2 bed • 1 bath • 727 ft²
4 bedroom end of terrace house for sale in Mosedale Road, Middleton, Manchester, M24 — £230,000 • 4 bed • 1 bath • 1120 ft²


































































































































































