Leafy Upper Leytonstone house with parking and garden near station.
Double-fronted Victorian semi-detached family home
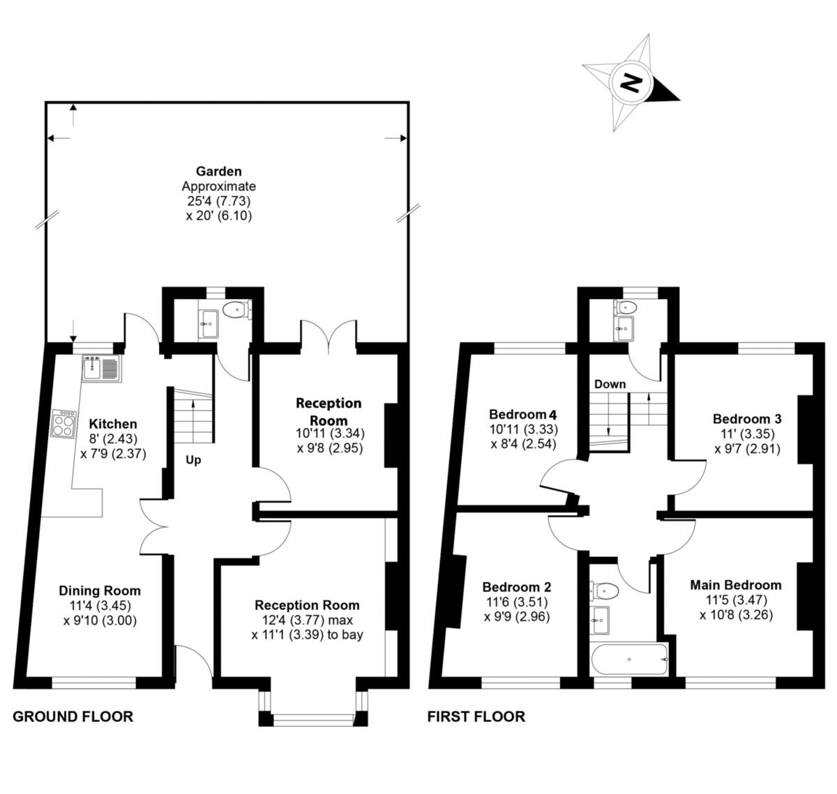
A spacious four-bedroom, double-fronted Victorian semi on a leafy Upper Leytonstone street, offered freehold and ready for family life. The house is well presented throughout with two reception rooms, a generous kitchen-diner and direct garden access — good for everyday living and weekend entertaining. Off-street parking and a wide rear garden add practical outdoor space in this inner‑city location.
Upstairs are four well-proportioned bedrooms served by a single family bathroom plus a separate WC. The fully boarded loft is good storage now and offers clear potential for conversion to extra bedrooms (subject to planning permission), while the property also has scope to extend (STPP) if you need more living space.
Practical details to note: the home sits on a relatively small plot and the overall internal size is modest at about 846 sq ft. There is only one main bathroom, which may require planning for larger families. The house is in good condition but any extension or loft conversion will need planning consent.
Location is a strong asset — short walk to Leytonstone station, local schools rated Good, and a busy town centre with cafés, shops and pubs on the doorstep. This is a sensible family purchase for anyone wanting classic period features, easy transport links and realistic expansion potential in a popular east London neighbourhood.
4 bedroom terraced house for sale in Kings Road, Leytonstone, E11 — £975,000 • 4 bed • 1 bath • 1438 ft²
6 bedroom semi-detached house for sale in Fairlop Road, London, E11 — £1,250,000 • 6 bed • 5 bath • 4000 ft²
4 bedroom house for sale in Hainault Road, Leytonstone, E11 — £1,150,000 • 4 bed • 1 bath • 1709 ft²
5 bedroom terraced house for sale in Dyers Hall Road, Leytonstone, E11 — £850,000 • 5 bed • 2 bath • 1480 ft²
4 bedroom terraced house for sale in Chertsey Road, London, E11 — £850,000 • 4 bed • 2 bath • 1316 ft²
3 bedroom terraced house for sale in Grove Green Road, E11 — £625,000 • 3 bed • 1 bath • 1134 ft²














































































































