Affordable central apartment with strong rental potential and period character.
- Central city location, close to amenities and public transport
- First-floor one-bedroom flat with long lease (c.998 years)
- uPVC double glazing and gas central heating with condensing boiler
- EPC rating C which supports reasonable energy performance
- Functional finishes; likely needs cosmetic updating/refurbishment
- Leasehold sale at auction; bids by 10am on 29 Oct 2025
- Located in a high deprivation area; consider tenant/resale profile
- No flood risk; council tax costs are very low
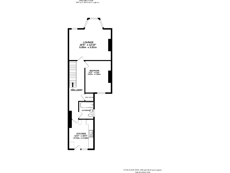
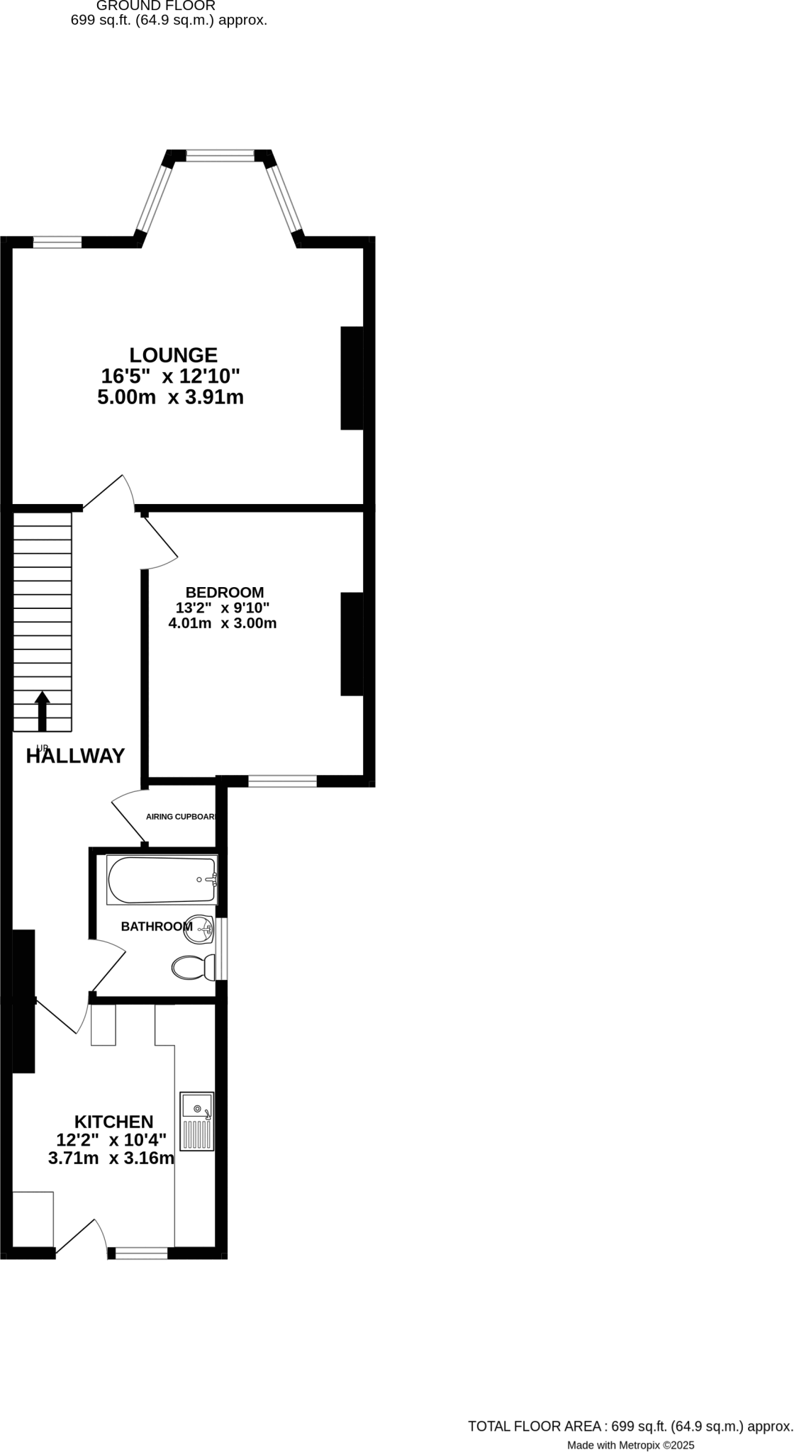
A compact first-floor one-bedroom flat in central Plymouth, offered at auction with a long lease (c.998 years). The apartment has a practical layout — 16'5 lounge, 12'2 fitted kitchen, 13'2 double bedroom and a bathroom — plus uPVC double glazing and gas central heating with a condensing boiler. The EPC is band C, which helps running costs and tenant appeal.
This property suits a first-time buyer seeking an affordable entry into the city or a buy-to-let investor after a straightforward refresh. Decor and finishes are functional rather than high-end, and the building dates from the early 20th century, offering period character such as bay windows and high ceilings in places. Council tax costs are very low and there is no recorded flood risk.
Material facts: the flat is leasehold and will be sold at a traditional online auction (bids by 10am on 29th October 2025). The neighbourhood is described as a cosmopolitan student and professional area and the wider local area records high deprivation levels, which can affect resale values and tenant profiles. On-street parking is available immediately outside.
A modest budget for modernization would unlock stronger rental returns or more comfortable long-term living. If you plan to view or bid, allow for a physical inspection to check condition and room sizes; images and descriptions indicate average/functional finishes rather than recent refurbishment.
1 bedroom flat for sale in Bayswater Road, Plymouth, Devon, PL1 — £95,000 • 1 bed • 1 bath • 684 ft²
1 bedroom terraced house for sale in Bayswater Road, Plymouth, Devon, PL1 — £100,000 • 1 bed • 1 bath • 1271 ft²
1 bedroom flat for sale in Flat 36, 24 The Crescent, Plymouth, Devon PL1 3FG, PL1 — £56,000 • 1 bed • 1 bath • 496 ft²
1 bedroom flat for sale in St Eval Place, Plymouth, PL5 — £75,000 • 1 bed • 1 bath • 485 ft²
2 bedroom flat for sale in The Limes, Plymouth, Devon, PL6 — £110,000 • 2 bed • 1 bath • 462 ft²
3 bedroom apartment for sale in Wyndham Street West, Plymouth, Devon, PL1 — £149,000 • 3 bed • 1 bath • 1429 ft²


























