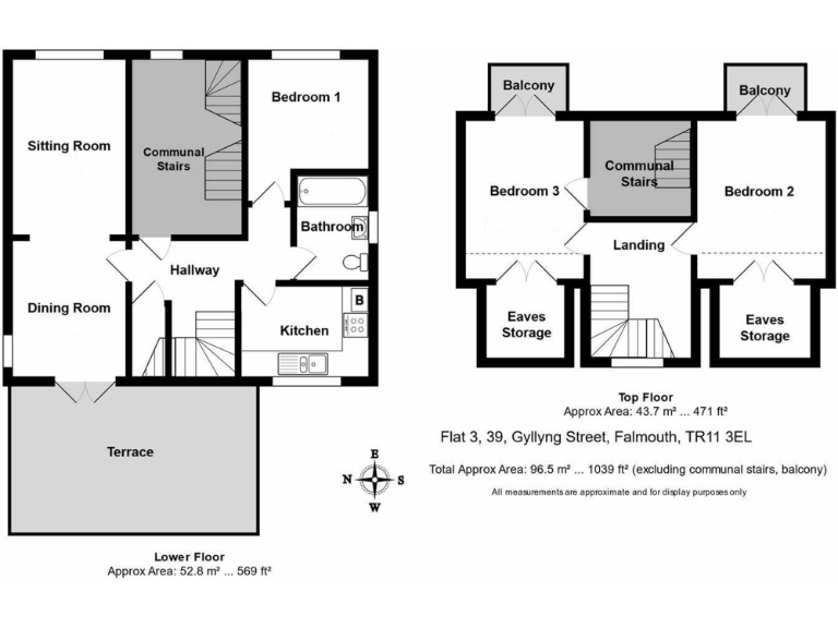
**Standout Features:**
- Expansive duplex penthouse apartment (1,039 sq. ft.)
- South-facing terrace (18' x 10') and two balcony views of the harbour
- Built in 2006, part of a select development of only three homes
- Economical to run; affordable council tax and service charges
- Convenient location near Falmouth town and harbourside
**Potential Concerns:**
- Leasehold property with 983 years remaining
- Above-average crime rate in the area
- Broadband speeds are very slow
Nestled in a select development of just three homes, this light-filled duplex penthouse apartment spans over 1,039 sq. ft. and offers stunning south-facing views from its generous terrace and two additional balconies. Ideal for discerning individuals or families, this unique home features three spacious bedrooms, a modern kitchen with integrated appliances, and a well-maintained living and dining area that invites light and comfort.
Located just moments away from Falmouth's bustling town and picturesque harbourside, you'll enjoy the convenience of local amenities, cafes, and excellent schooling options. The vibrant marina adds to the allure, making this property a perfect blend of tranquility and activity. With an efficient running cost bolstered by affordable council tax, this apartment represents a fantastic opportunity for first-time buyers or those seeking a coastal retreat. The property is chain-free, presenting an excellent chance to make this home yours before it's gone!
3 bedroom apartment for sale in Port Pendennis, Falmouth, TR11 — £500,000 • 3 bed • 2 bath • 1368 ft²
2 bedroom property for sale in High Street, Falmouth, TR11 — £395,000 • 2 bed • 1 bath • 828 ft²
3 bedroom apartment for sale in Jackett Steps, The Packet Quays, TR11 — £620,000 • 3 bed • 2 bath • 1091 ft²
3 bedroom flat for sale in Discovery Quay, Falmouth, Cornwall, TR11 — £580,000 • 3 bed • 2 bath • 1485 ft²
2 bedroom flat for sale in Maritime House, Discovery Quay, Falmouth, Cornwall, TR11 — £525,000 • 2 bed • 2 bath • 1178 ft²
3 bedroom apartment for sale in Challenger Quay, Falmouth, TR11 — £675,000 • 3 bed • 2 bath • 1323 ft²






























































































































































