Low-maintenance, accessible home with driveway and garden near local shops and schools.
Two double bedrooms, all single-storey living
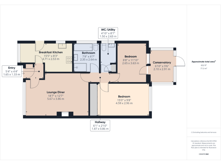
Set on a quiet cul-de-sac in popular Mickleover, this single-storey semi-detached bungalow offers comfortable, modernised living for downsizers seeking convenience. The layout includes a generous lounge-diner, fitted breakfast kitchen, separate utility with WC, conservatory and two double bedrooms — all on one level for easy accessibility.
Practical features include uPVC double glazing, mains gas central heating, an EPC rating of C and freehold tenure. Outside, a neat rear garden and a generous driveway provide private outdoor space and off-street parking. Local amenities, good schools and direct road links (A38/A50/M1) are all close at hand.
The property is an attractive, low-maintenance home for those moving from larger houses. It is average in overall size (approximately 832 sq ft) and built in the late 1960s/early 1970s, so buyers should expect some typical mid-century construction details and potential future maintenance or modernisation choices. There is a single main bathroom (four-piece) and the glazing install date is unknown, which may be worth checking for long-term plans.
2 bedroom semi-detached bungalow for sale in Catterick Drive, Mickleover, Derby, DE3 — £190,000 • 2 bed • 1 bath • 463 ft²
2 bedroom semi-detached bungalow for sale in Vicarage Road, Mickleover, Derby, DE3 — £260,000 • 2 bed • 1 bath • 776 ft²
2 bedroom semi-detached bungalow for sale in Chatsworth Drive, Mickleover, Derby, DE3 — £240,000 • 2 bed • 1 bath • 557 ft²
3 bedroom semi-detached bungalow for sale in Tasman Close, Mickleover, Derby, DE3 — £239,950 • 3 bed • 1 bath • 796 ft²
3 bedroom detached bungalow for sale in Carnoustie Close, Mickleover, Derby, DE3 — £295,000 • 3 bed • 2 bath • 985 ft²
3 bedroom detached bungalow for sale in Daventry Close, Mickleover , Derby, DE3 — £295,000 • 3 bed • 1 bath • 691 ft²






















































