Character barn with yard close to university—suitable for developers or owner occupiers.
- Grade II listed former farmhouse and adjoining barns, freehold
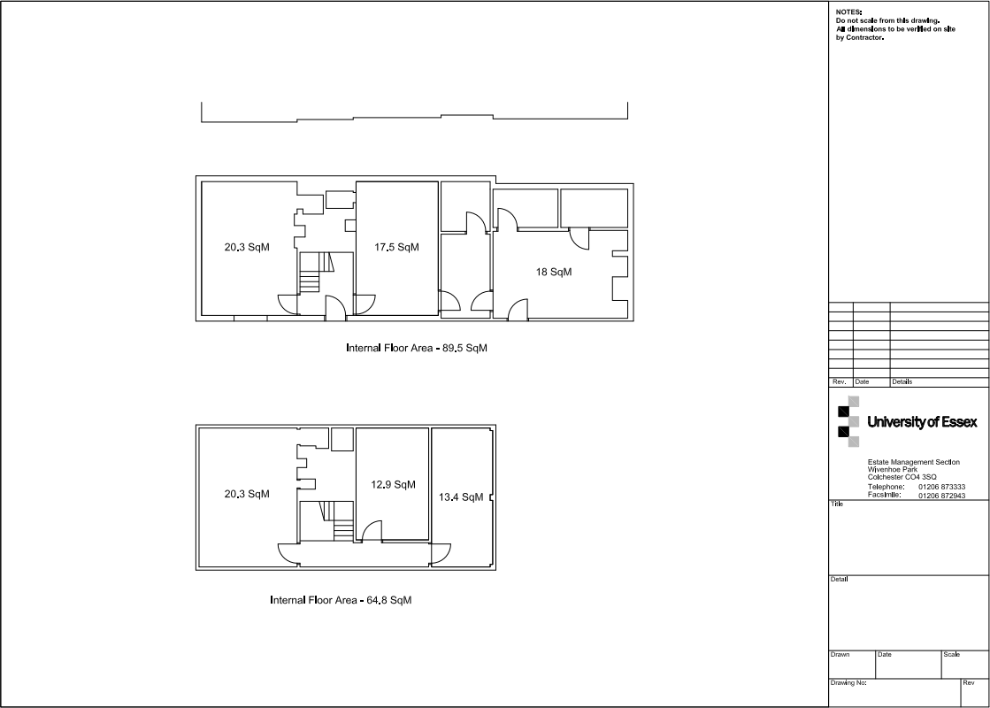
A detached Grade II listed former farmhouse and barns offered freehold on a prominent roadside corner close to the University of Essex Knowledge Gateway. The main office area (approximately 1,150 sq ft) is supported by two adjoining storage barns and a modest self-contained yard, giving a mix of workspace and external circulation suited to owner-occupiers or small-scale developers.
The property’s barn character, timber cladding and high internal ceilings are strong value drivers for conversion to bespoke offices, studios or specialist residential subject to consent. Excellent road and rail links to Colchester and London add practical appeal, and the site sits in an active semi-urban neighbourhood with convenience amenities and bus routes nearby.
Material constraints are significant and factual: the building is Grade II listed, which will restrict alterations and make conversions more complex and costly. The site appears modest in footprint with limited yard/garden space, broadband speeds are very slow, and the local area records above-average crime and higher deprivation indices. The exterior condition appears fair but internal works and statutory consents will likely be required.
Offered at £200,000 freehold and elected for VAT, this property suits buyers who understand listed-building constraints and who value character and location over a turnkey solution. It will be of most interest to developers with heritage experience or owner-occupiers planning a sympathetic refurbishment or adaptive reuse.
5 bedroom character property for sale in Abberton Road, COLCHESTER, CO5 — £1,650,000 • 5 bed • 4 bath • 3000 ft²
2 bedroom barn conversion for sale in Church Lane, Beaumont, CO16 — £495,000 • 2 bed • 1 bath • 1688 ft²
2 bedroom barn conversion for sale in Tenpenny Hill, Thorrington, Colchester, Essex, CO7 — £750,000 • 2 bed • 2 bath • 1091 ft²
3 bedroom detached house for sale in Easthorpe Road, Easthorpe, CO5 — £650,000 • 3 bed • 2 bath • 1911 ft²
2 bedroom barn conversion for sale in Church Lane, Beaumont, CO16 — £495,000 • 2 bed • 1 bath • 1688 ft²
4 bedroom detached house for sale in St. Cleres Hall Lane, St Osyth, CO16 — £1,000,000 • 4 bed • 4 bath • 2500 ft²


























