EH52 5RL - 4 bedroom semidetached house for sale in West Main Street,…

View on Property Piper

4 bedroom semi-detached house for sale in West Main Street, Broxburn, EH52

Summary - 49, WEST MAIN STREET, BROXBURN EH52 5RL

4 bed 2 bath Semi-Detached

Victorian period features: ornate cornicing and engraved glass door
A handsome four-bedroom Victorian semi-detached home on West Main Street that blends preserved period detail with contemporary updates. High ceilings, ornate cornicing and an engraved glass door give the principal rooms strong character, while a sociable kitchen/diner and bright dual-aspect lounge suit family life and entertaining.

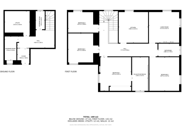
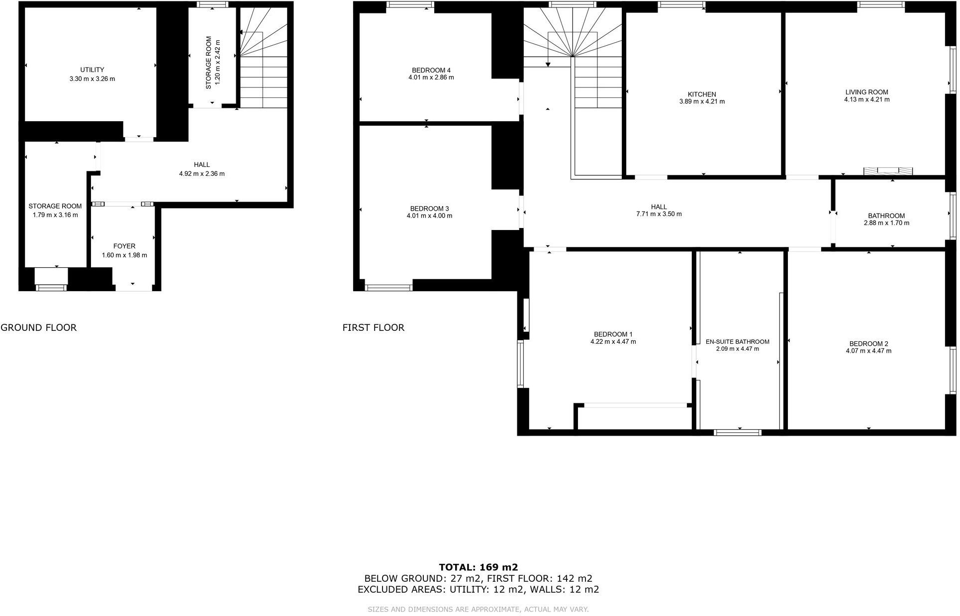
The principal bedroom benefits from an en-suite and there are three further well-proportioned bedrooms. The lower level provides a practical utility room plus two additional rooms that can serve as storage, hobby space or a home office. Outside, a south-facing private garden with a summerhouse and gated driveway parking add useful outdoor and off-street space.

This property will suit buyers seeking a character family home with scope for further internal modernisation. The plot and garden are small-to-average for a town-centre cottage, and while the finish is generally tidy, buyers should allow for updating where desired. The location offers town amenities and good connectivity, though the wider area is described as having hampered aspiration and higher local deprivation indicators.

Freehold tenure, approx. 1,938 sq ft, fast broadband and excellent mobile signal are practical plus points. Overall, a period home offering immediate liveability with clear potential to personalise and add value for a growing family or investor prepared to carry out modest improvements.

Property Details

Brochure Descriptions

Image Descriptions

Floorplan Description

Rooms

Textual Property Features

Detected Visual Features

Nearest Bars And Restaurants

,,,,}

Nearest General Shops

,,}

Nearest Grocery shops

,,}

Nearest Supermarkets

,,}

Nearest Religious buildings

,,}

Nearest Medical buildings

,,,}

Nearest Airports

}

Nearest Leisure Facilities

,,,,}

Nearest Tourist attractions

,,}

Nearest Train stations

,,,,}

Nearest Bus stations and stops

,,,,}

Nearest Hotels

,,}

Tags

Local Market Stats

AirBnB Data

Similar Properties

Meta

High Res Images

Compatible Images

Low res Images

Thumbnails

Raw Images

High Res Floorplan Images

Compatible Floorplan Images

Low res Floorplan Images

FloorplanImages Thumbnail

Raw Floorplan Images