Smart three-bedroom detached home on a generous plot for family life.
- Brand new, high-spec detached house due summer 2025
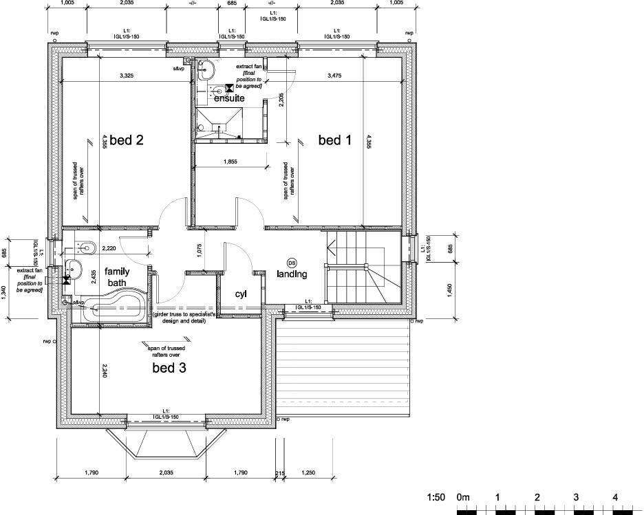
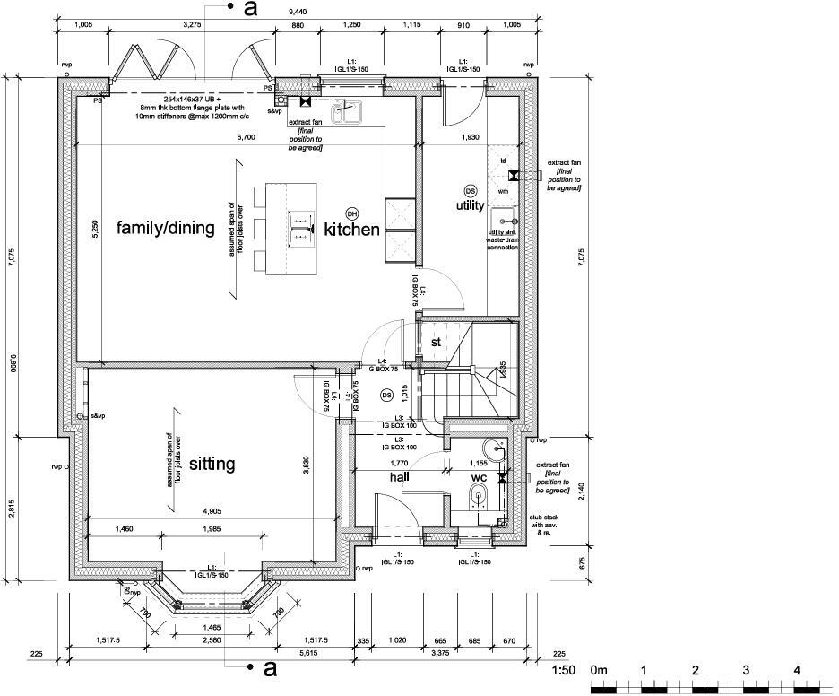
- Three bedrooms, two bathrooms, approx 1,201 sq ft
- Large private garden with landscaping potential
- Garage and off-street parking included
- Freehold tenure, newly renovated/new build status
- Fast broadband and excellent mobile signal
- Village location; limited amenities, car recommended
- Council tax band unknown; confirm before purchase
A newly built, high-spec three-bedroom detached house set on a large plot in peaceful Tur Langton. Finished to modern standards and due for completion end of summer 2025, the home offers light, practical living across about 1,201 sq ft with planning for a garage and low-maintenance exterior brickwork. Ideal for a family seeking countryside life with good digital connectivity and nearby well-rated schools.
Inside, the layout is traditional and family-friendly with two bathrooms and approximately eight rooms to arrange as living, dining and home working space. The large garden presents scope for child-friendly landscaping, outdoor entertaining or a vegetable patch. Broadband speeds are fast and mobile signal is excellent — useful for remote working.
Practical points to note: this is a new-build freehold, so buyers will want to check finish choices and snagging prior to completion. Council tax banding is not yet confirmed. The village setting is very affluent with average local crime levels and limited immediate amenities beyond bus stops and a post box; a car is useful for broader shopping and commuting. Overall this is a smart, modern family home offering rural calm and high specification living close to good schools.
4 bedroom detached house for sale in Tur Langton, Market Harborough, LE8 — £799,950 • 4 bed • 2 bath • 1304 ft²
5 bedroom detached house for sale in West Thorpe, Willoughby on the Wolds, LE12 — £1,169,950 • 5 bed • 4 bath • 3381 ft²
4 bedroom detached house for sale in Privetts Close, Gaddesby, Leicester, Leicestershire, LE7 — £645,000 • 4 bed • 4 bath • 1271 ft²
3 bedroom semi-detached house for sale in Lutterworth Road Walcote LE17 4JU, LE17 — £325,000 • 3 bed • 2 bath • 1020 ft²
5 bedroom detached house for sale in Land Adjacent to Sketchley Hill House, LE10 — £1,100,000 • 5 bed • 4 bath • 3380 ft²
4 bedroom detached house for sale in Newbold Verdon,
Leicester,
Leicestershire,
LE9 9LE, LE9 — £459,995 • 4 bed • 1 bath • 2309 ft²






































