**Standout Features:**
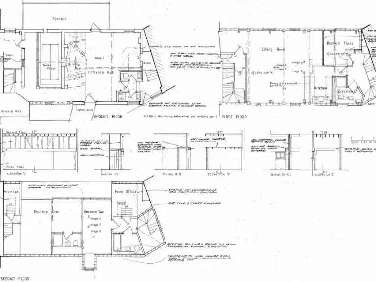
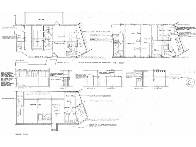
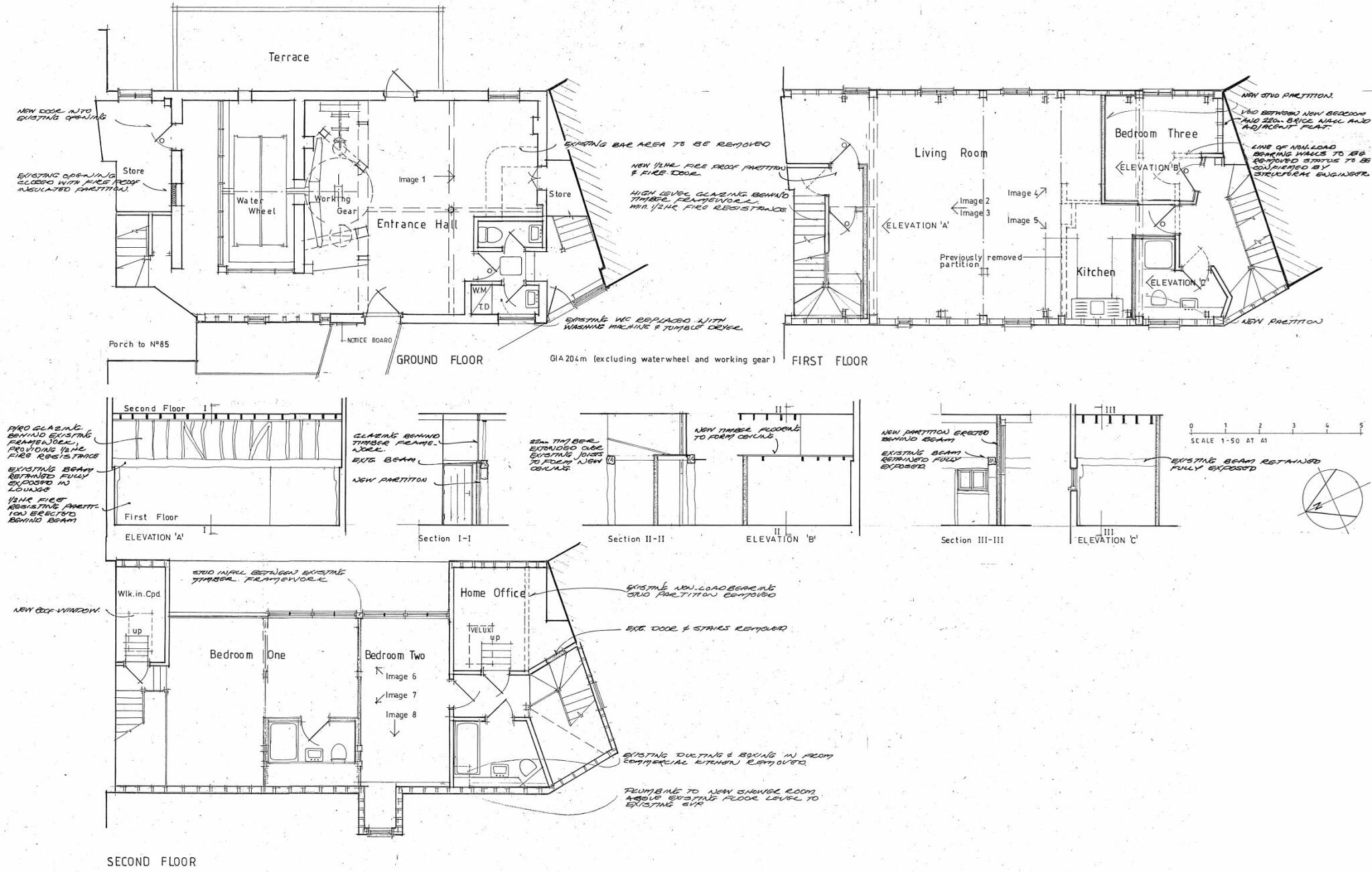
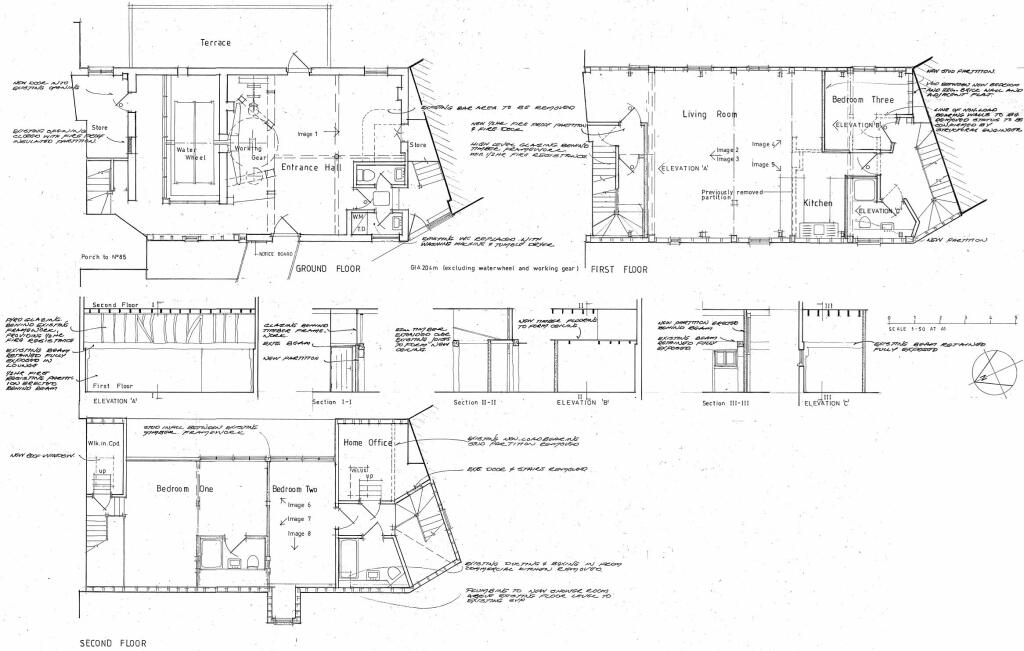
- Unique Grade II listed 18th-century watermill with character
- 2,509 square feet across three stories, previously used as an office
- Granted planning permission to convert into a three-bedroom family home
- Private mill pond with east-facing terrace, ideal for sunrise views
- Large garden with rustic wooden decking and mature trees
- Chain-free, vacant possession
**Summary:**
Discover a remarkable opportunity to own 'The Watermill,' a striking Grade II listed property positioned in the heart of Edenbridge. Offering an impressive 2,509 square feet of versatile space, this historic watermill is currently laid out as an office but holds immense potential for transformation into a stunning three-bedroom home, complete with planning permission already in place. Embrace an abundance of character with features such as original beams, a central mill wheel, and tranquil views overlooking your private mill pond.
Set in a picturesque location, this property provides an oasis of calm, enhanced by its large garden and east-facing terrace, perfect for outdoor living and relaxation. Although the crime rate is above average in the area, Edenbridge is an affluent small town with excellent amenities, including a variety of shops, schools, and two mainline train stations connecting you to London in just 45 minutes.
This chain-free property is a rare gem that allows for a blend of historical charm and modern living, making it ideal for first-time buyers or families looking for a unique home with renovation potential. Don’t miss out on this once-in-a-lifetime chance to craft your dream residence in a serene and scenic setting!
Office for sale in Nautilus Yachting, High Street, Edenbridge, TN8 — £550,000 • 1 bed • 1 bath • 2508 ft²
4 bedroom detached house for sale in Mill Lane, Tonbridge, TN9 — £1,500,000 • 4 bed • 2 bath • 2479 ft²
Commercial property for sale in High Street, Edenbridge, TN8 — £325,000 • 1 bed • 1 bath • 700 ft²
4 bedroom detached house for sale in High Street, Edenbridge, TN8 5AX, TN8 — £900,000 • 4 bed • 2 bath • 2017 ft²
3 bedroom semi-detached house for sale in Church Street, Edenbridge, TN8 — £425,000 • 3 bed • 2 bath • 899 ft²
4 bedroom detached house for sale in Edenbridge, Kent, TN8 — £795,000 • 4 bed • 3 bath • 1728 ft²


















































































