NR18 0DG - 2 bedroom semidetached house for sale in 31 Northfield Gard…

View on Property Piper

2 bedroom semi-detached house for sale in 31 Northfield Gardens, Wymondham, Norfolk NR18 0DG, NR18

Summary - 36, Northfield Gardens NR18 0DG

2 bed 1 bath Semi-Detached

**Standout Features:**
- Two-bedroom semi-detached house requiring modernization
- Spacious corner gardens with potential for extension (subject to planning approval)
- Excellent off-street parking and outbuildings
- Popular location near amenities, community facilities, and schools
- Double glazing and efficient gas central heating
- Chain-free and freehold property, ideal for builders, investors, or first-time buyers
- Auction sale date: 10:00 AM, Wednesday 18th June 2025

This two-bedroom semi-detached house presents an exciting renovation opportunity in the desirable town of Wymondham. Situated in a popular area, the home features spacious corner gardens ripe for landscaping or potential extensions, making it perfect for those looking to customize their living space. The house includes off-street parking, double glazing, and mains gas heating, ensuring a comfortable environment as you embark on the modernizing journey.

Families will appreciate the nearby community resources, including a selection of well-rated schools, shops, and public transport options. While the property does require significant updating, it holds remarkable promise for buyers who envision a personalized retreat or a solid investment in a thriving location. At a guide price of £130,000 to £150,000, opportunities like this in Wymondham are hard to come by—don’t miss your chance to seize this potential at auction.

Property Details

Image Descriptions

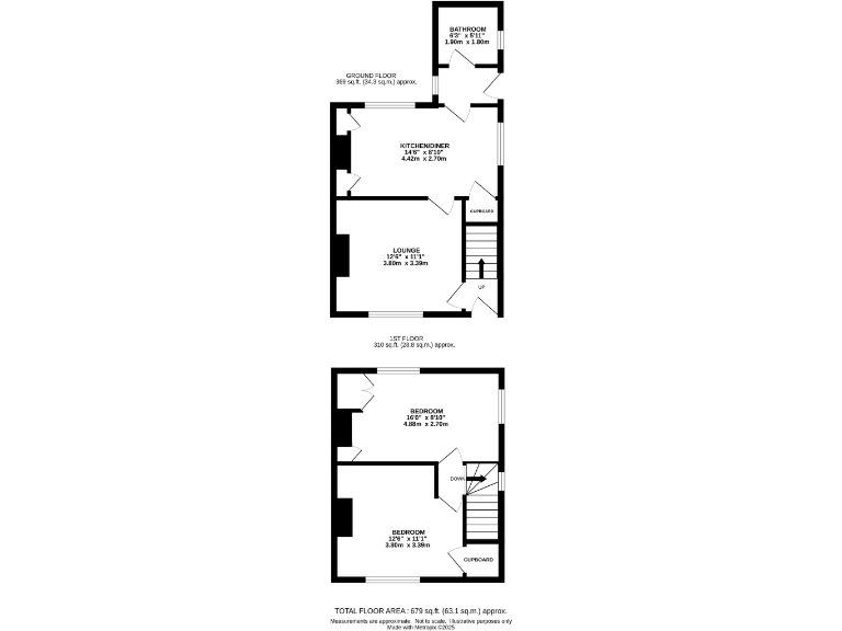
Floorplan Description

Rooms

Textual Property Features

Detected Visual Features

EPC Details

Nearby Schools

Nearest Bars And Restaurants

,,,,}

Nearest General Shops

,,}

Nearest Grocery shops

,,}

Nearest Supermarkets

,,}

Nearest Religious buildings

,,}

Nearest Medical buildings

,,,}

Nearest Leisure Facilities

,,,,}

Nearest Tourist attractions

,,}

Nearest Train stations

,,,,}

Nearest Bus stations and stops

,,,,}

Nearest Hotels

,,}

Tags

Local Market Stats

AirBnB Data

Similar Properties

Meta

High Res Images

Compatible Images

Low res Images

Thumbnails

Raw Images

High Res Floorplan Images

Compatible Floorplan Images

Low res Floorplan Images

FloorplanImages Thumbnail

Raw Floorplan Images