Central Marylebone apartment with porter and park access for first-time buyers.
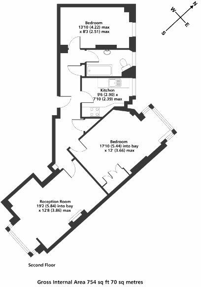
Portered second-floor flat, 754 sqft (70 sqm)
Close to Baker Street, Marylebone and Regent’s Park
Two bedrooms; one bathroom (may limit sharers)
Leasehold with 133 years remaining
Communal heating scheme (affects running costs)
Solid brick construction; likely limited wall insulation
Excellent mobile signal and fast broadband
Local crime level recorded as very high
This bright two-bedroom apartment occupies 754 sqft on the second floor of a purpose-built portered block in NW1. The layout includes a roomy reception, separate kitchen, double bedroom with fitted storage, single bedroom and one bathroom. Hardwood floors and contemporary décor give the apartment a ready-to-move-in feel for a first home or city base.
Location is the main draw: Baker Street and Marylebone stations, London School of Business and Regent’s Park are all within easy walking distance. Excellent mobile signal and fast broadband support home working and streaming, while the portered building adds day-to-day convenience and security.
Practical points to note: the flat is leasehold with 133 years remaining and operates on a communal heating scheme, which can affect running costs. Construction dates suggest solid brick walls with no added insulation (typical for the era), so heating efficiency may be lower than modern standards. There is a single bathroom, which may be limiting for sharers.
The neighbourhood is an inner-city, cosmopolitan mix with many amenities on the doorstep — shops, restaurants, stations and parks — but crime levels are recorded as very high locally, so buyers should assess personal security needs and any building-specific security measures. Overall, this is a centrally located, well-presented apartment offering immediate comfort and strong long-term location value.
1 bedroom flat for sale in Park Road, Marylebone, London, NW1 — £600,000 • 1 bed • 2 bath • 595 ft²
1 bedroom flat for sale in Park Road, Marylebone, NW1 — £600,000 • 1 bed • 2 bath • 592 ft²
1 bedroom flat for sale in Park Road, London, NW1 — £585,000 • 1 bed • 1 bath • 566 ft²
4 bedroom apartment for sale in Rossmore Court, Park Road, NW1 — £1,700,000 • 4 bed • 3 bath • 1666 ft²
4 bedroom flat for sale in Park Road, London, Marylebone, NW1 — £1,700,000 • 4 bed • 3 bath • 1670 ft²
4 bedroom apartment for sale in Rossmore Court, Park Road, London, NW1 — £1,700,000 • 4 bed • 3 bath • 1670 ft²














































