Move-in ready with scope to personalise and good commuter links.
No onward chain — ready for quick purchase
Driveway and gated side access for off-street parking
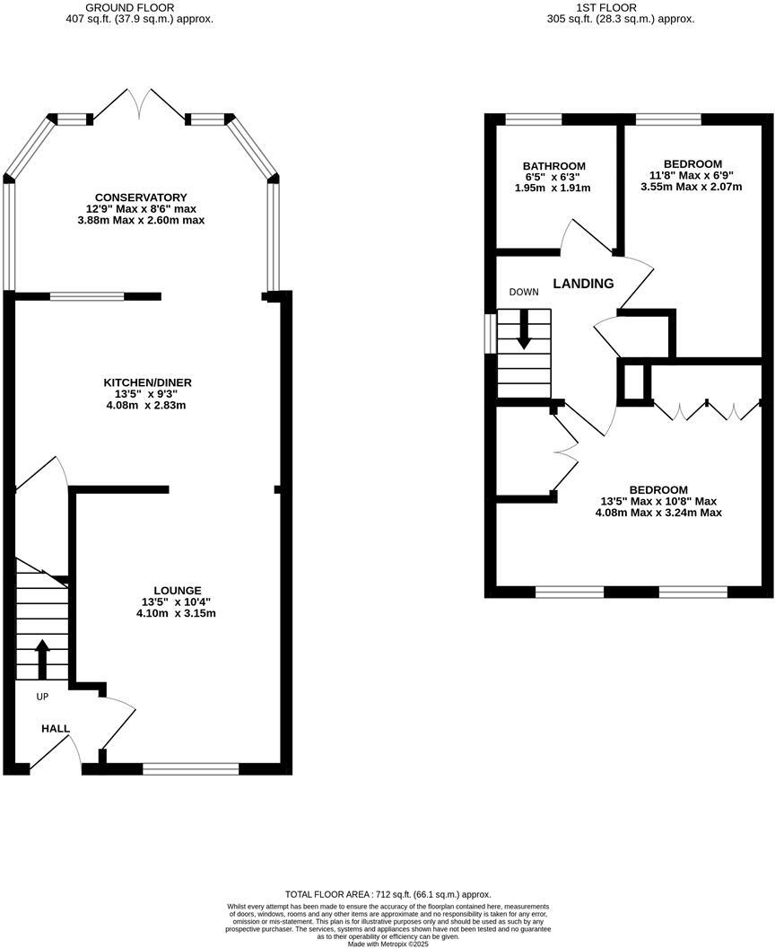
Timber conservatory opening onto enclosed rear patio garden
Two double bedrooms; principal includes fitted wardrobes
EPC Band D; double glazing installed pre-2002
Some rooms dated and would benefit from cosmetic updating
Bathroom has electric shower over bath, not mains shower
Freehold tenure; small plot with mainly patio garden
This two-bedroom semi-detached home in a quiet cul-de-sac offers a straightforward move with no onward chain — a clear entry point for first-time buyers or buyers downsizing. The layout is conventional and practical: living room, kitchen/diner, timber conservatory and two double bedrooms on the first floor. A driveway and enclosed rear garden complete the plot, making day-to-day living convenient.
The property benefits from mains gas heating with a combination boiler, double glazing and good local transport links to central Bristol and the M32/M4/M5 — useful for commuters. Local amenities and well-regarded primary schools are within easy reach, and open green space nearby gives a pleasant neighbourhood feel.
The home is presented in generally liveable condition but shows signs of age in places and will suit buyers prepared to refresh cosmetic elements. The conservatory is timber and the interior needs updating to modern tastes; the bathroom has an electric shower over the bath rather than a mains shower. The EPC is band D, and double glazing dates from before 2002, which may affect future running costs and improvement priorities.
Offered freehold with off-street parking and no onward chain, the house represents straightforward potential: a manageable renovation project to personalise, or a rental/investment buy with reliable access to city links. Expect modest outdoor space and typical room sizes for a two-bedroom suburban property.
2 bedroom semi-detached house for sale in Ash Walk, Brentry, Bristol, BS10 — £300,000 • 2 bed • 1 bath • 606 ft²
2 bedroom semi-detached house for sale in Wytherlies Drive, Bristol, BS16 — £294,000 • 2 bed • 1 bath • 636 ft²
2 bedroom terraced house for sale in Daws Court, Fishponds, Bristol, Somerset, BS16 — £300,000 • 2 bed • 1 bath • 515 ft²
2 bedroom semi-detached house for sale in Blandamour Way, Bristol, BS10 — £295,000 • 2 bed • 1 bath • 567 ft²
2 bedroom terraced house for sale in St. Andrews, Warmley, Bristol, Gloucestershire, BS30 — £250,000 • 2 bed • 1 bath • 650 ft²
2 bedroom end of terrace house for sale in Bowring Close, Bristol, BS13 — £235,000 • 2 bed • 1 bath • 919 ft²














































































