Light-filled central flat ideal for first-time buyers or investors near Tower Hill.
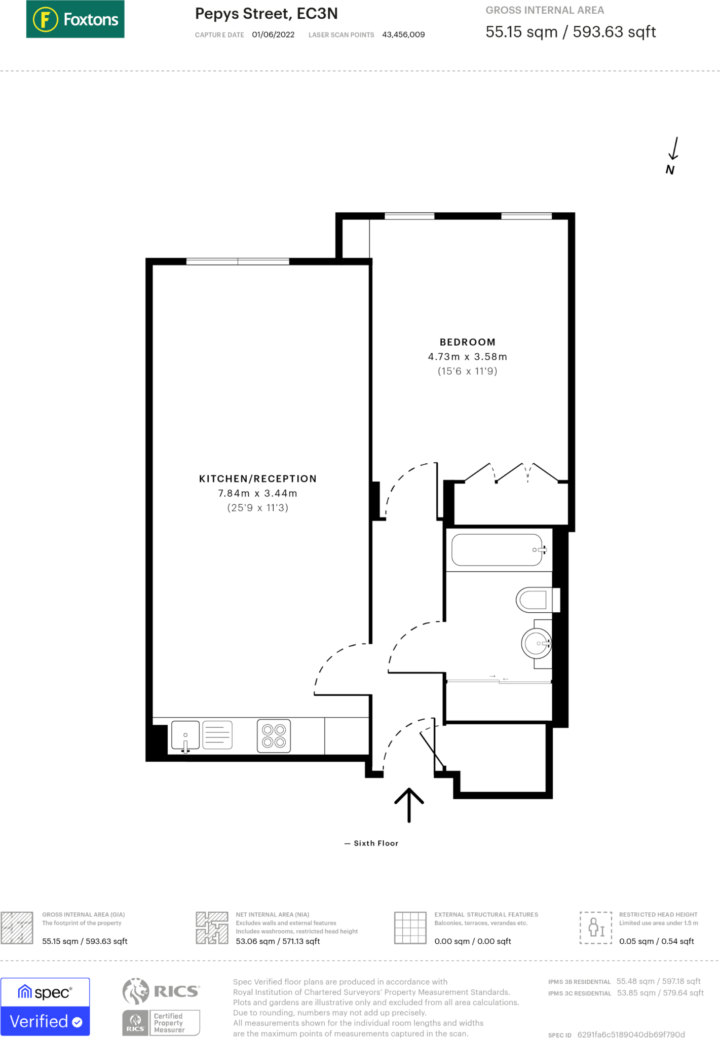
- Sixth-floor one-bedroom flat with strong natural light
- Open-plan kitchen/reception with integrated appliances
- Fitted bedroom wardrobes; move-in ready interior
- Porter service in attractive brick-built development
- Double glazing installed post-2002; community heating
- Leasehold tenure; buyer to check remaining term and charges
- Located in area with very high recorded crime rates
- Solid brick walls likely uninsulated; thermal upgrades advisable
Bright sixth-floor apartment in a handsome brick development, this one-bedroom flat combines period exterior charm with contemporary interior finishes. The open-plan living and kitchen area is light-filled and arranged for comfortable everyday living plus informal dining. Integrated appliances and fitted bedroom wardrobes reduce immediate upgrade needs, making the property move-in ready.
The building provides porter services and benefits from double-glazed windows installed after 2002 and a community heating scheme, simplifying maintenance and energy management. Its central City position is a standout: Tower Hill and Tower Gateway stations, the River Thames and the Tower of London are all within easy walking distance, and a wide range of cafés, shops and amenities sit on the doorstep.
Important practical points: the property is leasehold and located in an area with very high recorded crime levels, which may affect insurance and security considerations. The solid brick construction was built 1900–1929 and is assumed to have no wall insulation, so additional measures may be needed for improved thermal performance and long-term running costs.
Overall this flat suits a first-time buyer or investor seeking a well-located, low-upkeep City pied-à-terre with good rental and transport appeal. Buyers wanting full thermal upgrades or quieter suburban living should note the building’s central, urban context and potential retrofit needs.
2 bedroom flat for sale in Pepys Street, City, London, EC3N — £680,000 • 2 bed • 2 bath • 730 ft²
1 bedroom apartment for sale in Minories, London, EC3N — £425,000 • 1 bed • 1 bath • 482 ft²
1 bedroom flat for sale in Pepys Street,
Tower, EC3N — £500,000 • 1 bed • 1 bath • 610 ft²
1 bedroom flat for sale in Commercial Road, Tower Hamlets, London, E1 — £325,000 • 1 bed • 1 bath • 459 ft²
1 bedroom apartment for sale in Pepys Street, London, EC3N — £500,000 • 1 bed • 1 bath • 568 ft²
1 bedroom flat for sale in Bishopsgate, Bishopsgate, London, EC2M — £400,000 • 1 bed • 1 bath • 381 ft²






























































































