Large plot, private setting and a self-contained annex for flexible living.
Private gated driveway and very large mature plot with countryside views
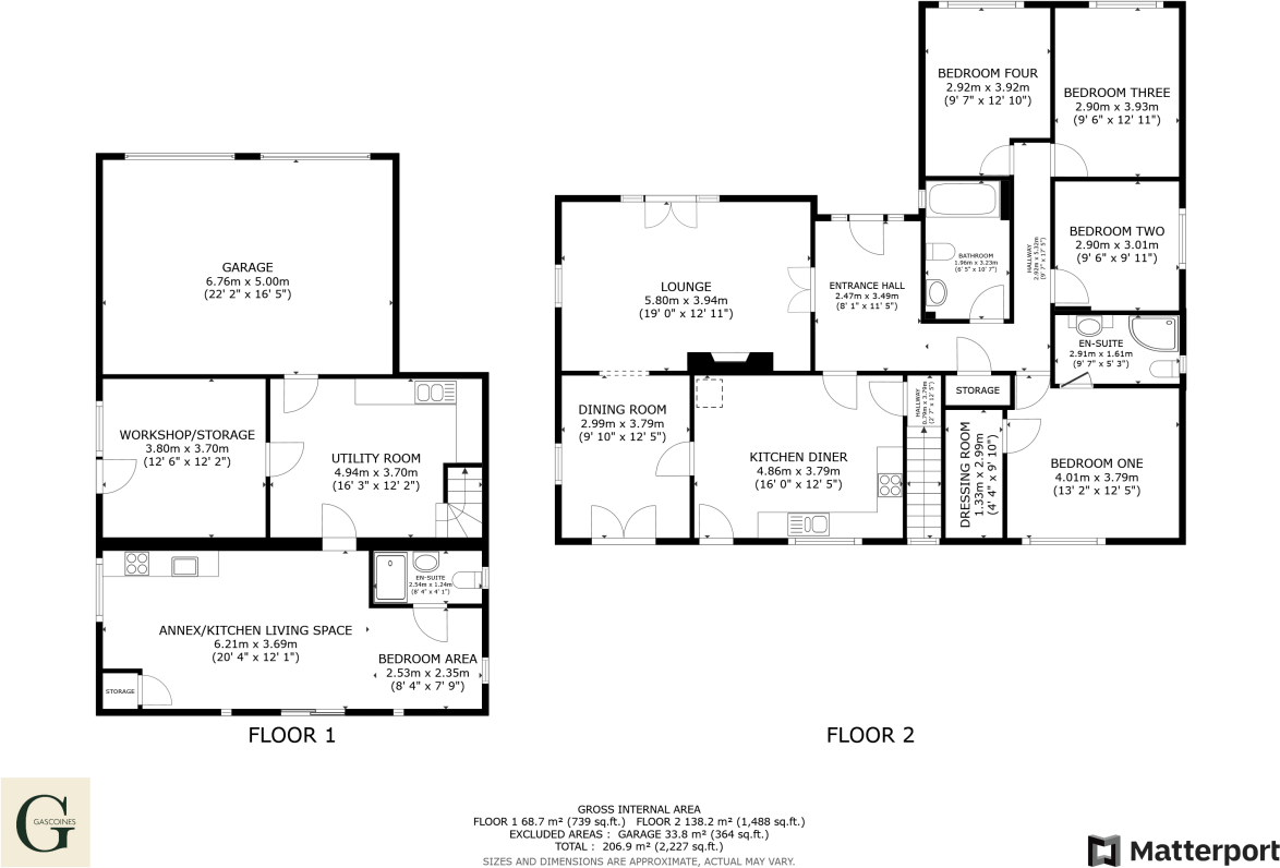
One-bedroom ground-floor annex with ensuite and garden access
Double garage, carport, generous parking and workshop/storage space
Four double first-floor bedrooms; master bedroom with ensuite
EPC rating D (59) — energy performance below modern standards
Broadband speeds are slow in the area; may limit home working
Double glazing installed before 2002 — potential upgrade needed
Council tax band: expensive; budget for higher annual costs
Set well back from Nottingham Road on a private gated driveway, this substantial five-bedroom detached home sits on a very large mature plot with far-reaching countryside views. The house offers a double garage, carport and generous parking, plus a one-bedroom ground-floor annex with its own ensuite — ideal for multi-generational living, live-in staff or rental income.
Ground-floor living includes a lounge, dining room, kitchen-diner, utility, workshop/storage and the annex with sliding doors onto the garden. Upstairs are four double bedrooms, the master with ensuite, and a family bathroom. The property totals about 2,227 sq ft and was constructed in the early 1990s, so room proportions feel generous throughout.
Important practical points: the EPC is rated D (59), broadband speeds in the area are slow, and council tax is high. Double glazing was installed before 2002 and may benefit from upgrading; there is no flood risk. These are straightforward issues to budget for alongside any cosmetic updates you may wish to make.
For families seeking privacy, space and countryside outlooks close to good local schools, this home presents a rare combination of an annex, substantial gardens and gated seclusion. Viewings are recommended to appreciate the plot, layout and potential first-hand.
6 bedroom detached bungalow for sale in Sheepwalk Lane, Ravenshead, Nottingham, NG15 — £750,000 • 6 bed • 3 bath • 3832 ft²
5 bedroom detached house for sale in Nottingham Road, Ravenshead, Nottingham, NG15 — £875,000 • 5 bed • 4 bath • 2896 ft²
4 bedroom detached bungalow for sale in Nottingham Road, Ravenshead, Nottingham, NG15 — £600,000 • 4 bed • 3 bath • 2977 ft²
5 bedroom detached house for sale in Main Road, Ravenshead, Nottingham, NG15 — £700,000 • 5 bed • 3 bath • 2800 ft²
5 bedroom detached house for sale in Sheepwalk Lane, Ravenshead, Nottingham, Nottinghamshire, NG15 — £750,000 • 5 bed • 5 bath • 2294 ft²
4 bedroom detached house for sale in Vernon Crescent, Ravenshead, Nottingham, NG15 — £450,000 • 4 bed • 2 bath • 1586 ft²






































































































































































































