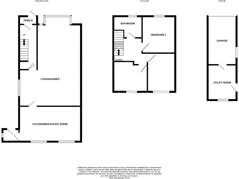
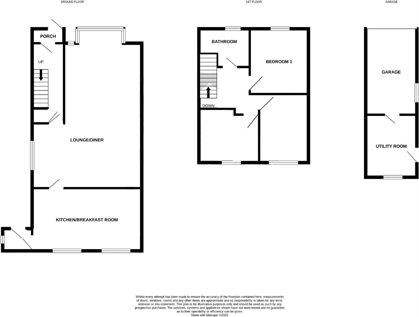
**Standout Features:**
- Three spacious bedrooms
- Open-plan lounge/diner and kitchen/breakfast room
- Beautifully landscaped large rear garden with terrace and summerhouse
- Detached garage with ample storage and potential workshop
- Driveway for multiple vehicles
- Excellent local schools within walking distance, including Claverham Primary
- Sought-after location in the charming village of Crowhurst
**Potential Concerns:**
- Energy Efficiency Rating: F (may require updates for improved efficiency)
- Age of construction (1960) may mean some updates are needed in terms of insulation and modern amenities
Nestled in the picturesque village of Crowhurst, this delightful three-bedroom semi-detached house offers a unique opportunity for families or first-time buyers seeking comfort and charm. The property boasts an inviting open-plan living space, seamlessly connecting a bright kitchen/breakfast room with a spacious lounge/diner, perfect for family gatherings. Unwind in the vast rear garden, complete with a beautiful terrace and a tranquil summerhouse—ideal for summer relaxation or entertaining guests.
With significant parking options, including a detached garage and a large driveway, convenience is at your fingertips. Families will be particularly drawn to the fantastic local schools nearby. Keep in mind that while this home exudes potential, it holds an F rating for energy efficiency, hinting at potential upgrades that could enhance both comfort and value. Embrace the opportunity to make this house a home while it lasts. Secure your viewing today and step into the peaceful lifestyle Crowhurst has to offer!
3 bedroom semi-detached house for sale in Whitehill Close, Crowborough, TN6 — £375,000 • 3 bed • 1 bath • 859 ft²
3 bedroom semi-detached house for sale in Blacksmiths Field, Crowhurst, TN33 — £380,000 • 3 bed • 1 bath • 992 ft²
3 bedroom semi-detached house for sale in Pellings Farm Close, Crowborough, TN6 — £395,000 • 3 bed • 1 bath • 821 ft²
3 bedroom semi-detached house for sale in Sandrock Crescent ,Crowhurst,, TN33 — £301,500 • 3 bed • 1 bath • 1045 ft²
3 bedroom semi-detached house for sale in Green Lane, Crowborough, TN6 — £499,950 • 3 bed • 1 bath • 1332 ft²
3 bedroom detached house for sale in Woodland Way, Crowhurst, TN33 — £385,000 • 3 bed • 1 bath • 366 ft²


























































































