Renovated interior, south garden and driveway ideal for growing families.
Three bedrooms in a compact multi-storey layout
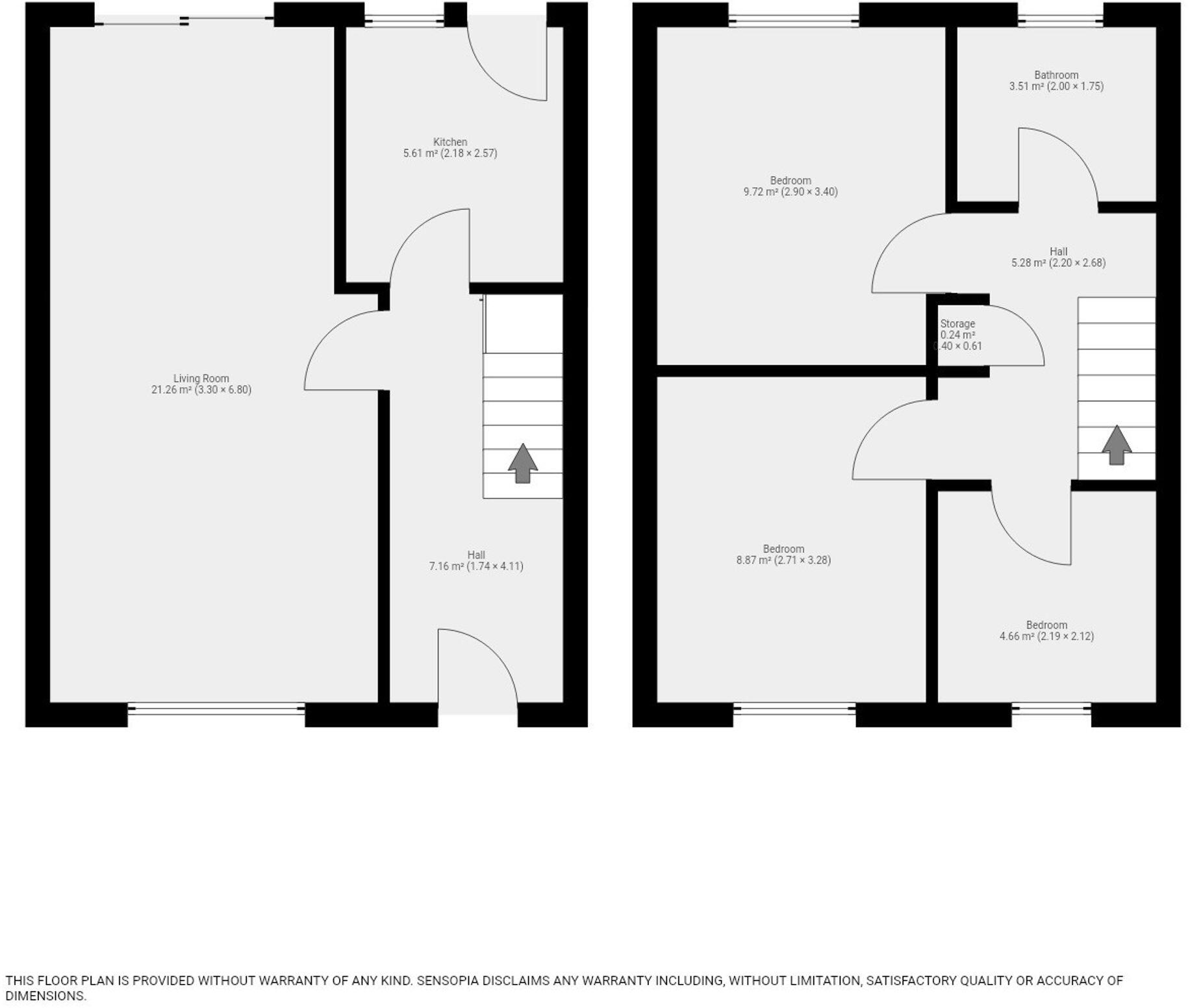
This three-bedroom mid-terrace in Eastern Green offers a recently renovated kitchen and bathroom, ready for modern family life. The property benefits from a south-facing rear garden and an off-street driveway — rare extras for this area — plus a partially boarded, insulated loft for extra storage. Local schools rated Good are within walking distance and bus links and amenities are close by, making daily routines straightforward.
Internally the layout is compact (approx. 66.3 m²/714 sq ft) and efficiently arranged across multiple levels. The house is well presented throughout, with contemporary finishes in the kitchen and bathroom that reduce immediate refurbishment costs. Heating is by a mains-gas boiler (around 10 years old) and double glazing is installed, contributing to the EPC C rating.
Notable limitations are the relatively small overall size and plot, and a single family bathroom which may feel tight for larger households. The cavity walls are recorded as original without added insulation (assumed), which could mean future energy-efficiency improvements would be beneficial. Built in the 1960s, the home suits buyers who want a move-in-ready property with modest running costs but who accept limited internal space.
This property will suit young families or first-time buyers seeking a comfortable, low-maintenance home in a quiet suburb with good schools and very low local crime. For buyers prioritising generous living space or high-energy-efficiency standards, this terrace may require further investment or may be better suited as a starter home or long-term rental investment.
3 bedroom end of terrace house for sale in William Bree Road, Coventry, CV5 — £260,000 • 3 bed • 2 bath • 969 ft²
3 bedroom end of terrace house for sale in Caithness Close, Eastern Green, Coventry, CV5 — £245,000 • 3 bed • 1 bath • 813 ft²
3 bedroom terraced house for sale in Shetland Close, CV5 Eastern Green, CV5 — £220,000 • 3 bed • 1 bath • 748 ft²
3 bedroom terraced house for sale in Hockley Lane, Coventry, CV5 — £230,000 • 3 bed • 1 bath • 947 ft²
3 bedroom semi-detached house for sale in Unicorn Avenue, Coventry, CV5 — £260,000 • 3 bed • 1 bath • 1076 ft²
3 bedroom semi-detached house for sale in Upper Eastern Green Lane, Coventry, CV5 — £270,000 • 3 bed • 1 bath • 958 ft²










































































