**Standout Features:**
- Immaculate 5-bedroom townhouse with panoramic views.
- Three reception rooms including a snug and a study.
- Modern, high-quality kitchen and bathrooms.
- Garage with potential for annex conversion.
- Landscaped gardens with a charming outdoor space.
- Grade II listed with characterful Victorian features.
**Concerns:**
- Renovation or development may be challenging due to listed status.
- The property shows average energy efficiency (Band D) and council tax (Band F).
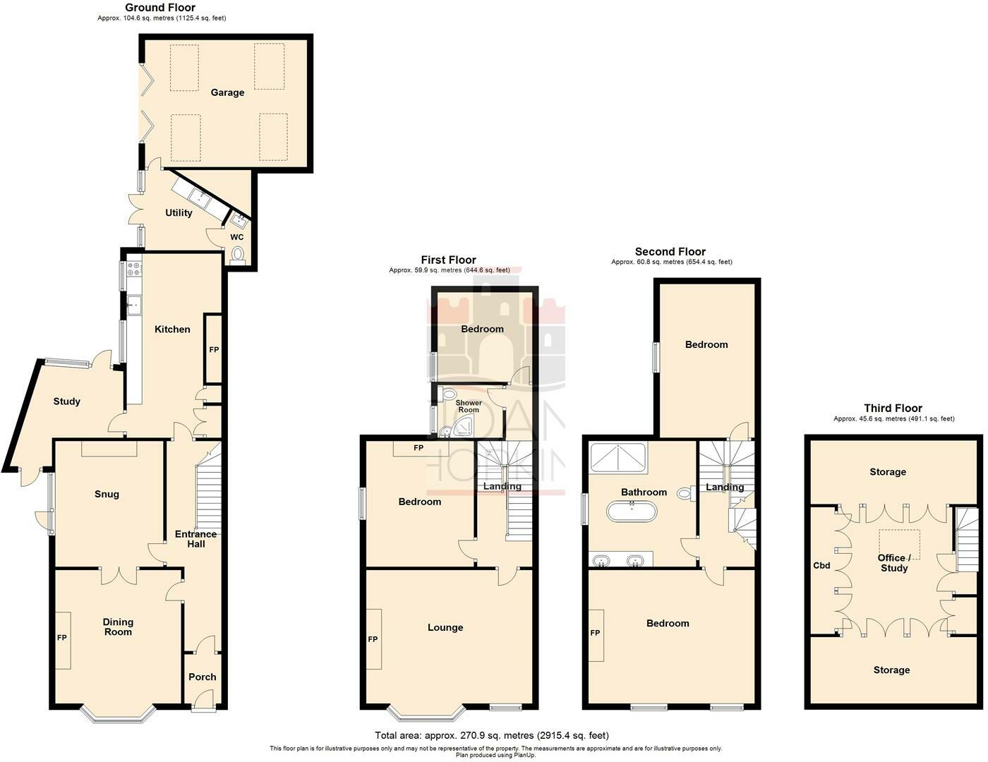
This well-maintained 5-bedroom townhouse at 1 West End in Beaumaris offers an exceptional opportunity for family living or an astute investment in a coveted location. Boasting breathtaking, south-facing views of the Menai Strait and the Snowdonia mountain range, this home features three spacious reception rooms, a versatile study, and five generously sized double bedrooms. The modern kitchen, equipped with quality fittings and accompanied by a utility room and two stylish bathrooms, caters to comfort and practicality.
With a wealth of character including high ceilings, original Victorian features, and secondary glazing throughout, the property also includes a garage with exciting potential for conversion to an annex — perfect for extended family or rental income. The beautifully landscaped outdoor garden provides an idyllic setting for relaxation and entertaining, all while situating you within a vibrant community with easy access to local amenities. Don’t miss this rare opportunity to secure a home that combines luxurious living with breathtaking views in a charming Welsh town. Act quickly—properties like this are highly sought after!
5 bedroom town house for sale in Raglan Street, Beaumaris, LL58 — £650,000 • 5 bed • 4 bath • 2084 ft²
5 bedroom town house for sale in York Terrace, Beaumaris, LL58 — £735,000 • 5 bed • 2 bath • 1808 ft²
4 bedroom terraced house for sale in Bulkeley Terrace, Beaumaris, LL58 — £895,000 • 4 bed • 3 bath • 2278 ft²
3 bedroom end of terrace house for sale in Tan Y Bryn, 70 New Street, Beaumaris, LL58 — £395,000 • 3 bed • 1 bath • 1180 ft²
6 bedroom town house for sale in 10 Rating Row, Beaumaris, LL58 — £645,000 • 6 bed • 3 bath • 3226 ft²
4 bedroom town house for sale in Y Wenllys, Cambria Road, Menai Bridge, LL59 — £435,000 • 4 bed • 2 bath • 1622 ft²


































































































































































































