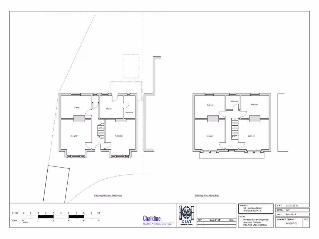
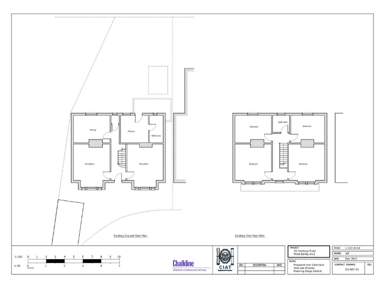
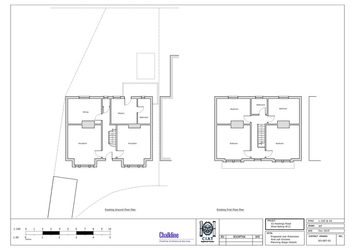
**Standout Features:**
- Double fronted Victorian detached house
- In need of complete modernisation, providing a blank canvas for buyers
- Potential for extensive redevelopment: planning permission granted for rear and loft extension, allowing for up to 5 new apartments
- Convenient location near West Ealing Station (Elizabeth Line)
- Chain free and freehold property
- Includes garden and garage
**Property Summary:**
Discover a remarkable investment opportunity in West Ealing with this charming double-fronted Victorian detached house, situated on a generous plot. This spacious four-bedroom residence awaits a complete renovation, allowing you to reimagine it into your dream home or capitalize on its redevelopment potential. Planning permission has been granted for a rear extension and loft conversion, providing the unique chance to create five modern apartments, catering to the area's growing demand.
Located just a six-minute walk from West Ealing Station, the property offers excellent transport links to central London and beyond. The surrounding area is vibrant with a range of cafes, restaurants, and shops, alongside convenient amenities. While the house does require extensive refurbishment and may have dated features, its structural integrity as a solid brick property presents a stable foundation for future investment. With the Elizabeth Line now expanding access and regeneration underway, don't miss your chance to secure this versatile gem before it's gone.
4 bedroom detached house for sale in Denmark Road, London, W13 — £1,450,000 • 4 bed • 2 bath • 1298 ft²
4 bedroom semi-detached house for sale in Loveday Road, Ealing, W13 — £1,200,000 • 4 bed • 2 bath • 1732 ft²
5 bedroom house for sale in Hartington Road, Ealing, W13 — £1,000,000 • 5 bed • 2 bath • 1999 ft²
2 bedroom semi-detached house for sale in Broomfield Place, West Ealing, W13 — £850,000 • 2 bed • 2 bath • 948 ft²
15 bedroom detached house for sale in Creffield Road, London, W5 — £2,900,000 • 15 bed • 9 bath • 3780 ft²
4 bedroom terraced house for sale in Drayton Gardens, London, W13 — £1,200,000 • 4 bed • 2 bath • 1599 ft²










