Spacious two-bedroom with garage and extensive communal grounds nearby.
First-floor apartment in exclusive Tortington Manor grounds
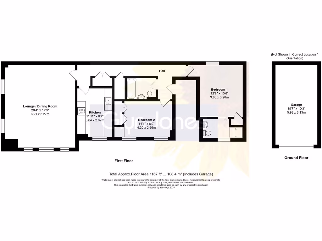
Set within the private grounds of Tortington Manor, this first-floor apartment offers generous, light-filled accommodation arranged over a traditional layout. Two double bedrooms (one with en-suite and the other with built-in wardrobes) and a bright dual-aspect living room with dining space make the home easy to live in and low-maintenance for downsizers seeking comfort and space.
Residents enjoy substantial communal grounds of around 16 acres, two tennis courts and a function room — ideal for socialising or gentle exercise without leaving the estate. Practical benefits include a private garage with power, an allocated parking space, visitor parking and convenient access to Arundel and Ford stations for connections to London and the coast.
The apartment comes with a very long lease of approximately 974 years and no onward chain, simplifying purchase. Note the service charge is capped at £7,000 for the first year (above-average) and the advertised ground rent figure (reported at around £6,725.40) is included within service charges; buyers should ask their solicitor to confirm ongoing costs. Broadband speeds are reported slow, which could affect remote working or streaming.
Overall this is a spacious, well-appointed home in a prestigious, peaceful setting suited to those seeking a low-hassle residence with communal amenities. The property is best for buyers who prioritise grounds, convenient transport links and long lease security, while being comfortable with higher ongoing service costs and limited broadband performance.
2 bedroom apartment for sale in Ford Lane, Ford, Arundel, West Sussex, BN18 — £270,000 • 2 bed • 2 bath • 991 ft²
3 bedroom terraced house for sale in Goodwood Wing, Tortington Manor, Arundel, BN18 — £575,000 • 3 bed • 2 bath • 1507 ft²
3 bedroom penthouse for sale in Ford Road, Arundel, West Sussex, BN18 — £363,500 • 3 bed • 3 bath • 1176 ft²
3 bedroom penthouse for sale in Ford Road, Arundel, West Sussex, BN18 — £550,000 • 3 bed • 3 bath • 1176 ft²
3 bedroom terraced house for sale in Tortington Manor, Arundel, BN18 — £525,000 • 3 bed • 2 bath • 1159 ft²
2 bedroom flat for sale in Ford Road, Tortington, Arundel, West Sussex, BN18 — £315,000 • 2 bed • 3 bath • 1253 ft²


































































