**Standout Features:**
- Chain-free duplex maisonette with 900 sq ft of living space
- Three spacious bedrooms and a good-sized family bathroom
- Modern kitchen/breakfast room with ample cabinetry and natural light
- Bright living room with laminate flooring and balcony access overlooking landscaped lawns
- Garage included, with access to a well-maintained communal garden
**Concerns:**
- Above-average crime rate in the area
- Located in a busy city or major town setting
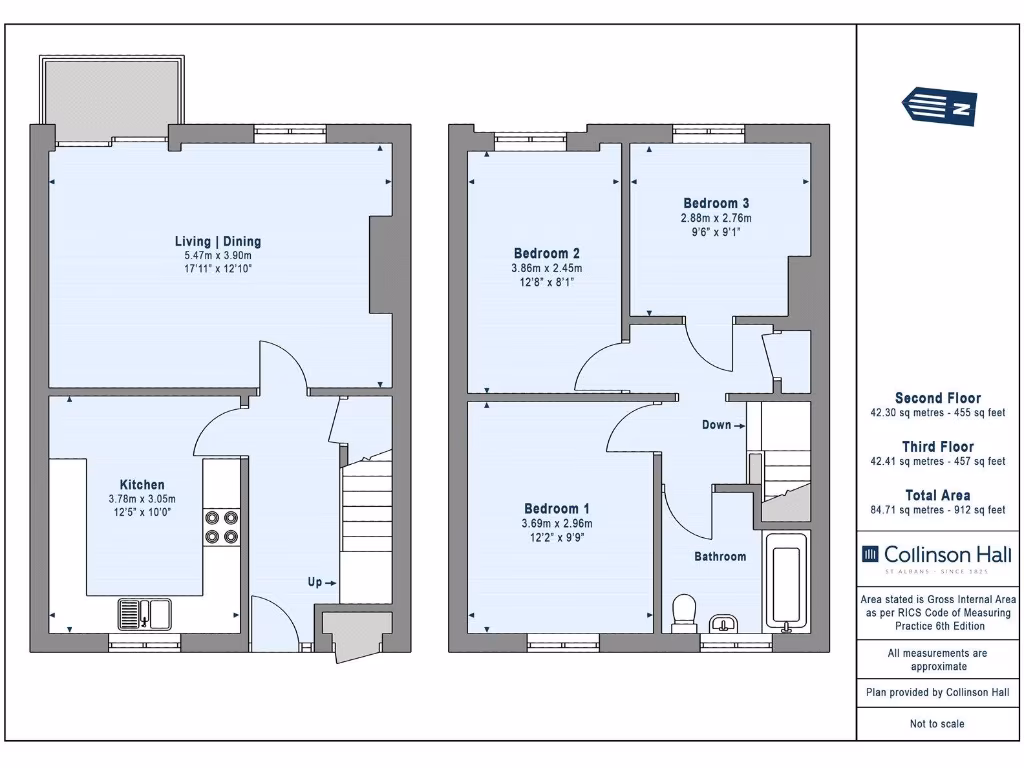
Welcome to your future home in the heart of Marshalswick! This charming chain-free duplex maisonette boasts over 900 sq ft of well-designed living space spread across two floors. With a good-sized lounge that opens up to a pleasant balcony perfect for relaxing views of the communal gardens, this property is an ideal choice for families or first-time buyers. The modern kitchen and breakfast room is not only spacious but also flooded with natural light, making it the perfect spot for family meals. Upstairs, three generous bedrooms and a family bathroom provide comfortable spaces for everyone.
This property also features the rare and sought-after benefit of a garage, adding extra convenience. Located near excellent schooling options and local amenities, including the recently launched M&S Food Hall, you'll have everything you need right on your doorstep. With a long lease of 935 years left, this home offers future flexibility and room for personal design. Don’t miss out on this opportunity—properties in this area with such potential won’t last long!
2 bedroom ground floor flat for sale in Hughenden Road, St. Albans, Hertfordshire, AL4 — £365,000 • 2 bed • 1 bath • 864 ft²
2 bedroom apartment for sale in The Ridgeway, St. Albans, Hertfordshire, AL4 — £300,000 • 2 bed • 1 bath • 519 ft²
2 bedroom maisonette for sale in The Ridgeway, St. Albans, AL4 — £285,000 • 2 bed • 1 bath • 512 ft²
3 bedroom apartment for sale in The Quadrant, St. Albans, Hertfordshire, AL4 — £375,000 • 3 bed • 1 bath • 861 ft²
2 bedroom apartment for sale in Hughenden Road, St Albans, Hertfordshire, AL4 — £350,000 • 2 bed • 1 bath • 880 ft²
1 bedroom apartment for sale in Hughenden Road, St. Albans, Hertfordshire, AL4 — £225,000 • 1 bed • 1 bath • 444 ft²










































