Large corner-plot bungalow with sweeping countryside views and great family space.
Large corner plot with landscaped south-westerly garden and private gazebo
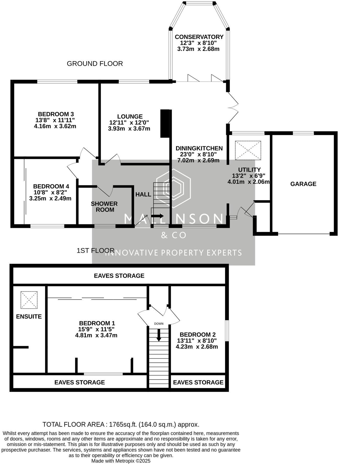
Semi-open plan triple-aspect kitchen/dining with conservatory access
Principal bedroom with vaulted ceiling, fitted storage and en suite
Garage plus wide block-paved driveway providing ample off-street parking
Stunning uninterrupted countryside views towards Cannon Hall and Emley Moor
Broadband speeds in the area are slow — may limit home-working
Double glazing fitted before 2002; some window upgrades may be needed
Council tax band E (above average)
Set on a large corner plot in Cawthorne, this sympathetically extended four-bed detached bungalow offers versatile two-level living with exceptional countryside views to Cannon Hall and Emley Moor. The ground floor features a semi-open plan lounge, triple-aspect dining kitchen, conservatory and two double bedrooms; a vaulted first-floor principal bedroom includes fitted storage, dressing area and an en suite. The south-westerly landscaped garden, gazebo and wide block-paved driveway with garage are strong outside assets for entertaining and parking.
The interior is presented in a modern style with oak-effect floors, quartz worktops, recent shower rooms and useful utility space formed by the side extension. The accommodation suits families who want easy access to good local schools and countryside walks, as well as downsizers seeking single-level living with occasional upstairs guest/bedroom space. The property is freehold and benefits from mains gas heating and double glazing (installed before 2002).
Practical points to note: broadband speeds in the area are slow, council tax is band E (above average), and glazing predates 2002 which may be a consideration for future upgrading. Services and fittings have not been independently tested here; buyers should arrange their own checks and measurements. Overall this is a well-maintained home on a generous plot where the views and outdoor space are the primary selling features.
4 bedroom detached house for sale in Five Acres, Cawthorne, Barnsley, S75 4HZ, S75 — £530,000 • 4 bed • 2 bath • 1956 ft²
4 bedroom detached house for sale in St. Juliens Way, Cawthorne, Barnsley, S75 4ES, S75 — £400,000 • 4 bed • 1 bath • 1522 ft²
4 bedroom detached bungalow for sale in Redthorpe Crest, Barnsley, S75 — £425,000 • 4 bed • 3 bath • 893 ft²
4 bedroom detached house for sale in St. Juliens Way, Cawthorne, Barnsley, S75 — £675,000 • 4 bed • 2 bath • 2153 ft²
3 bedroom detached bungalow for sale in Pogmoor Road, Barnsley, S75 — £330,000 • 3 bed • 1 bath • 1468 ft²
3 bedroom detached bungalow for sale in Carr Hill Road, Upper Cumberworth, HUDDERSFIELD, HD8 — £530,000 • 3 bed • 3 bath • 1551 ft²


































































































































