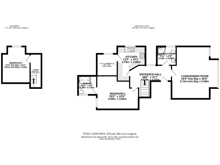
**Standout Features:**
- Spacious 2-bedroom duplex apartment in a charming conservation area
- Impressive 970 sq ft layout with high ceilings and period architectural details
- Open plan living/dining area with bay windows, feature fireplace, and natural light
- Modern kitchen with utility/office space
- En suite in the master bedroom plus an additional family bathroom
- Access to beautifully maintained communal gardens and off-road parking
- Chain-free sale, ideal for quick transactions
**Potential Concerns:**
- Leasehold property with an average service charge of £1560
- Solid brick construction may require insulation for improved energy efficiency
Discover your new home in this stunning duplex apartment, nestled in a desirable conservation area. With its expansive open plan living space, two spacious double bedrooms, and the added convenience of two bathrooms, this property is perfect for families or professionals seeking comfort and style. Enjoy the charm of high ceilings and period features while relishing the tranquility of beautifully landscaped communal gardens.
Ideally located within walking distance to the vibrant Didsbury and West Didsbury villages, you're just minutes away from reputable schools, excellent transport links, and local amenities. With no vendor chain and the rare opportunity for a quick move-in, don’t miss out on making this exceptional property your own! Plus, there's great potential for renovations to personalize the space further. Act fast—properties like this don’t stay on the market long!
1 bedroom flat for sale in Lapwing Lane, West Didsbury, M20 — £185,000 • 1 bed • 1 bath • 563 ft²
2 bedroom apartment for sale in Old Lansdowne Road, West Didsbury, M20 — £325,000 • 2 bed • 1 bath • 841 ft²
2 bedroom apartment for sale in Atwood Road, Didsbury, M20 — £230,000 • 2 bed • 1 bath • 581 ft²
2 bedroom apartment for sale in 14-16 Circular Road, West Didsbury, M20 — £205,000 • 2 bed • 1 bath • 548 ft²
2 bedroom apartment for sale in Lancaster Road, Didsbury, M20 — £315,000 • 2 bed • 2 bath • 668 ft²
2 bedroom flat for sale in Old Lansdowne Road, Didsbury, M20 — £250,000 • 2 bed • 2 bath • 601 ft²














































































