**Standout Features:**
- Modern two double bedroom apartment
- Leasehold term of 72 years remaining
- Off-street parking on a first come, first served basis
- Chain-free sale for a smooth transaction
- Bright living room with potential for modernization
- Located in a multicultural area with good schools nearby
- Close to various local amenities
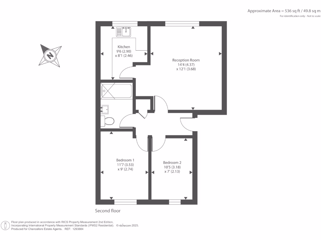
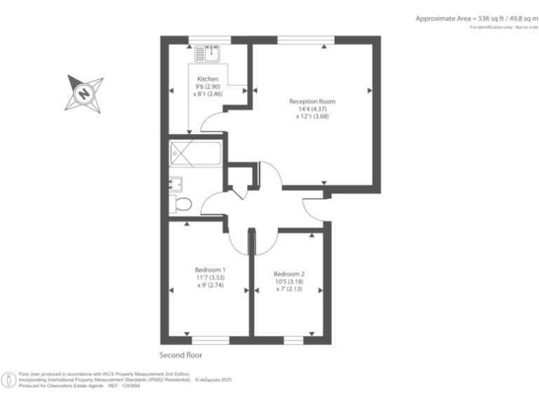
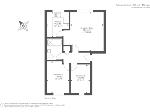
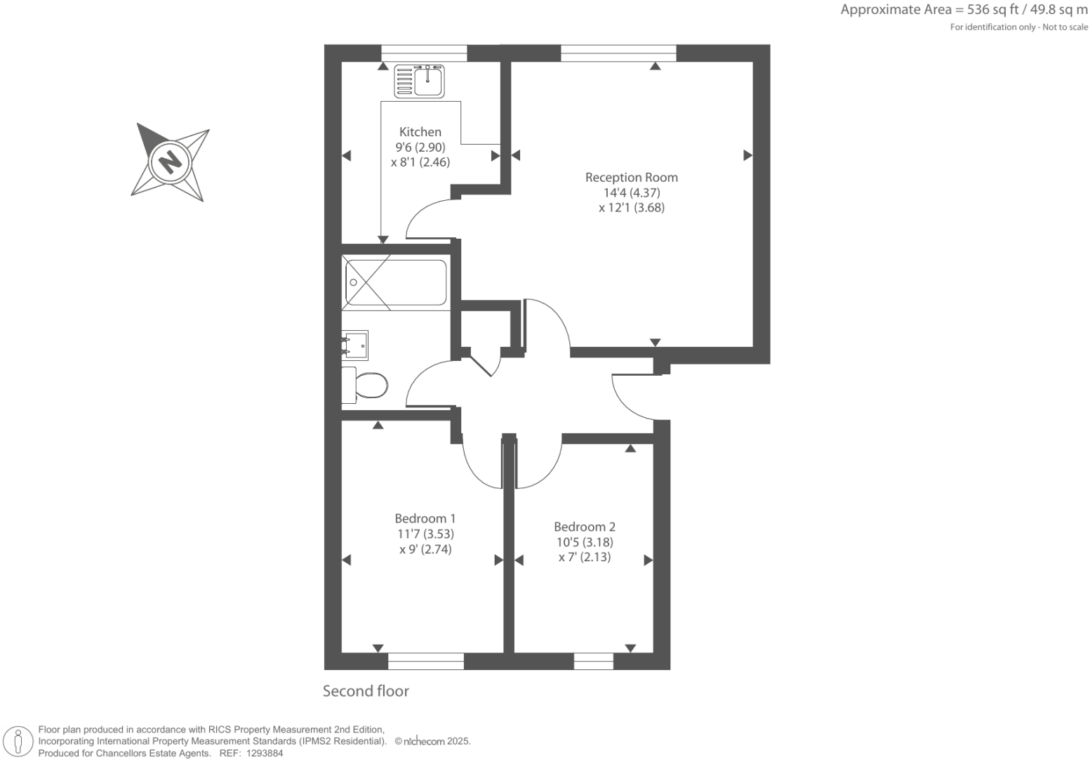
This modern two-bedroom second-floor apartment offers a great opportunity for first-time buyers or investors looking for a property in a vibrant community. With a comfortable layout of 536 square feet, the living room is bathed in natural light and ready for personal touches, providing potential for updates and renovation. The family bathroom complements the living space, while off-street parking adds convenience. However, it's important to note that there are 72 years left on the lease, which may pose challenges with mortgage approval.
Situated in an affluent area, this property benefits from proximity to multiple well-rated schools, making it suitable for families. Moreover, with easy access to local amenities and transport links, the location promises an engaging lifestyle. Don’t miss the opportunity to view this property during the open house on Saturday, 31st May from 10 AM to 12 PM. Properties like this, with potential and accessibility, are in demand; seize your chance while it lasts!
2 bedroom flat for sale in Surbiton, Surrey, KT5 — £350,000 • 2 bed • 1 bath • 840 ft²
2 bedroom flat for sale in Surbiton, Surrey, KT6 — £250,000 • 2 bed • 1 bath • 724 ft²
1 bedroom apartment for sale in Barnsbury Lane, Surbiton, KT5 — £240,000 • 1 bed • 1 bath • 522 ft²
1 bedroom flat for sale in Surbiton, Surrey, KT6 — £280,000 • 1 bed • 1 bath • 375 ft²
2 bedroom flat for sale in Waterside Close, Surbiton, KT6 — £324,950 • 2 bed • 1 bath • 650 ft²
2 bedroom apartment for sale in Guildford Street, Chertsey, Surrey, KT16 — £239,950 • 2 bed • 1 bath • 409 ft²






























































