Move-in ready home near top schools and Richmond Park.
Newly refurbished two-bedroom first-floor flat, move-in ready
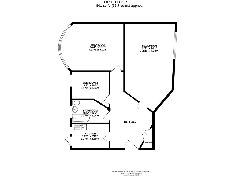
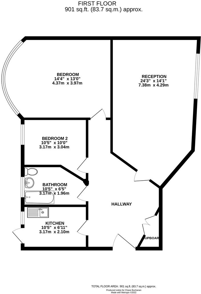
This newly refurbished two-bedroom first-floor flat in Deanhill Court offers a bright, roomy layout ideal for a growing family or professionals sharing. The property features two double bedrooms with fitted wardrobes, a generous lounge and a modern galley kitchen with integrated appliances — all finished to a contemporary, neutral specification ready to move into.
Set within a well-maintained mid‑century development, the apartment benefits from long leasehold security (899 years) and share of freehold ownership, with no onward chain. Local amenities in East Sheen and Richmond are close by, and excellent schools such as Sheen Mount Primary are within walking distance. Richmond Park, Sheen Common and the Thames are also nearby for regular outdoor recreation.
Practical points to note: the building dates from the 1930s–40s and appears to have solid brick walls with no confirmed insulation; buyers may wish to consider future energy upgrades. The annual service charge averages £2,747. The flat is gas‑heated with double glazing (install date unknown) and sits in a low-crime, very affluent neighbourhood with fast broadband and excellent mobile signal.
Overall this flat combines immediate move-in convenience with long-term ownership security. It will suit families seeking good local schools and outdoor space, or buyers looking for a well-presented property in a sought-after SW14 location.
2 bedroom flat for sale in Deanhill Court,
Upper Richmond Road West, SW14 — £550,000 • 2 bed • 1 bath • 714 ft²
2 bedroom apartment for sale in Upper Richmond Road West, East Sheen, SW14 — £450,000 • 2 bed • 1 bath • 484 ft²
2 bedroom apartment for sale in Upper Richmond Road West, East Sheen, London, SW14 — £485,000 • 2 bed • 1 bath • 770 ft²
2 bedroom flat for sale in Upper Richmond Road West, East Sheen, SW14 — £475,000 • 2 bed • 1 bath • 463 ft²
2 bedroom flat for sale in Upper Richmond Road West, East Sheen, SW14 — £475,000 • 2 bed • 1 bath • 419 ft²
2 bedroom apartment for sale in Upper Richmond Road West, East Sheen, SW14 — £475,000 • 2 bed • 1 bath • 463 ft²


































