**Standout Features:**
- Grade II Listed Character Home
- Set in a serene rural parkland environment
- Equestrian stable block and tack room
- Indoor swimming pool complex with gym
- Triple garage and gated circular driveway
- Expansive mature gardens adjoining woodland
- Six bedrooms and six reception rooms
**Summary:**
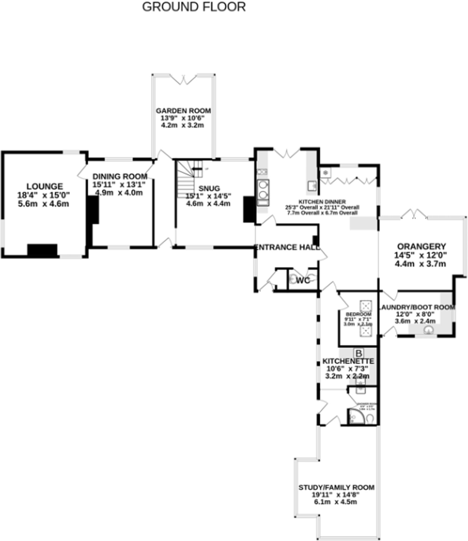
Discover the charm of this Grade II listed Tudor Revival home, nestled within a stunning rural parkland setting. With approximately 5,959 sq. ft. of stylish living space, this extraordinary property features six spacious bedrooms and six unique reception rooms, blending historic character with modern luxury. The heart of the home showcases an inviting living kitchen complete with an AGA, leading into landscaped gardens that extend to about an acre, wrapping around a tranquil brook.
Equestrian enthusiasts will appreciate the stable block and tack room, with access to riding trails right from your doorstep. The indoor swimming pool and gym complex, built in 2005, provide a perfect escape for relaxation and entertainment, complemented by breathtaking views of the surrounding gardens and forest.
While the property oozes elegance and comfort, it's important to note the complexities that arise from its listed status, which may present renovation challenges. Enjoy peace of mind with a private, gated circular driveway leading to a triple garage and excellent parking options. This remarkable home promises both a luxurious lifestyle and an opportunity to relish the natural beauty of the English countryside—a true sanctuary for your family. Don’t miss your chance to own this unique piece of history; inquire now to explore the potential of this exceptional property.
5 bedroom detached house for sale in Cossington Road, Sileby, LE12 — £1,100,000 • 5 bed • 1 bath • 3000 ft²
7 bedroom detached house for sale in Melton Road, Barrow Upon Soar, Loughborough, LE12 — £2,500,000 • 7 bed • 5 bath • 9000 ft²
5 bedroom detached house for sale in Prestwold Lane, Hoton, LE12 — £900,000 • 5 bed • 3 bath • 2616 ft²
4 bedroom detached house for sale in Roecliffe Road, Woodhouse Eaves, LE12 — £825,000 • 4 bed • 3 bath • 2164 ft²
5 bedroom detached house for sale in Anstey Lane, Thurcaston, Leicester, LE7 — £900,000 • 5 bed • 2 bath • 3859 ft²
5 bedroom detached house for sale in Village Farm Close, Stanford on Soar, LE12 — £1,500,000 • 5 bed • 4 bath • 4011 ft²






























































































































































































