**Standout Features:**
- New build with stone façade
- 4 spacious bedrooms, two with ensuite
- Open-plan kitchen/dining area with walk-in larder
- Energy-efficient heating: air source heat pump & solar panels
- Detached double garage
- Positioned on a large plot (1.97 acres)
- Close proximity to Belford Primary School
**Potential Downsides:**
- Broadband speeds are very slow
- Average crime rate in the area
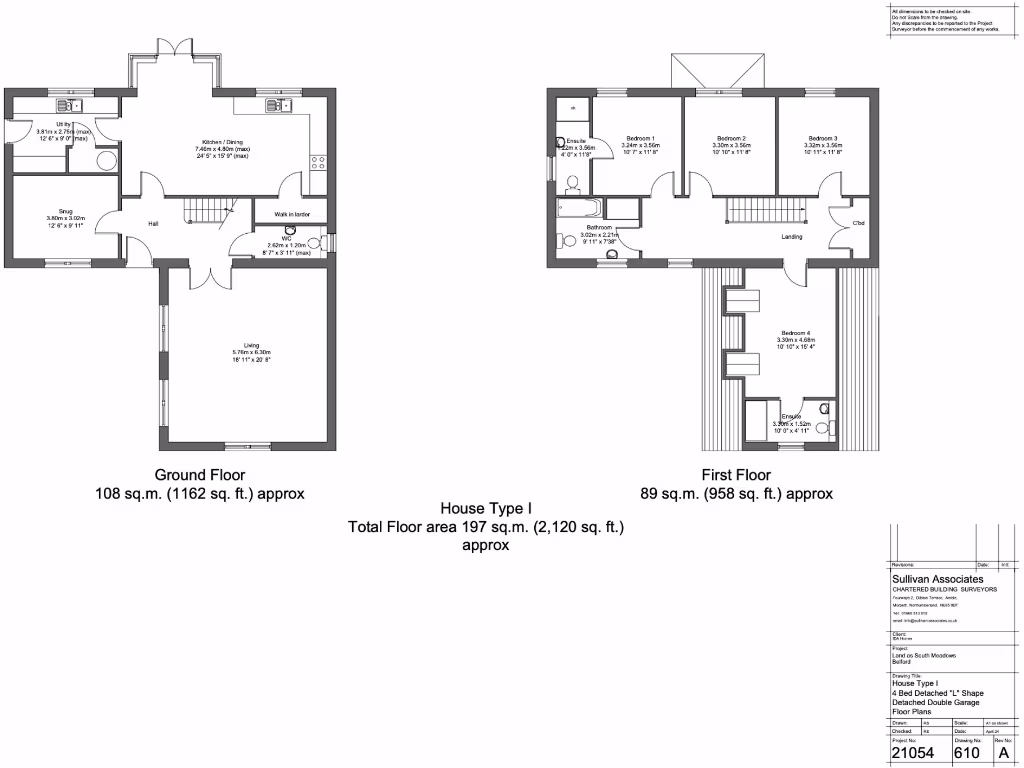
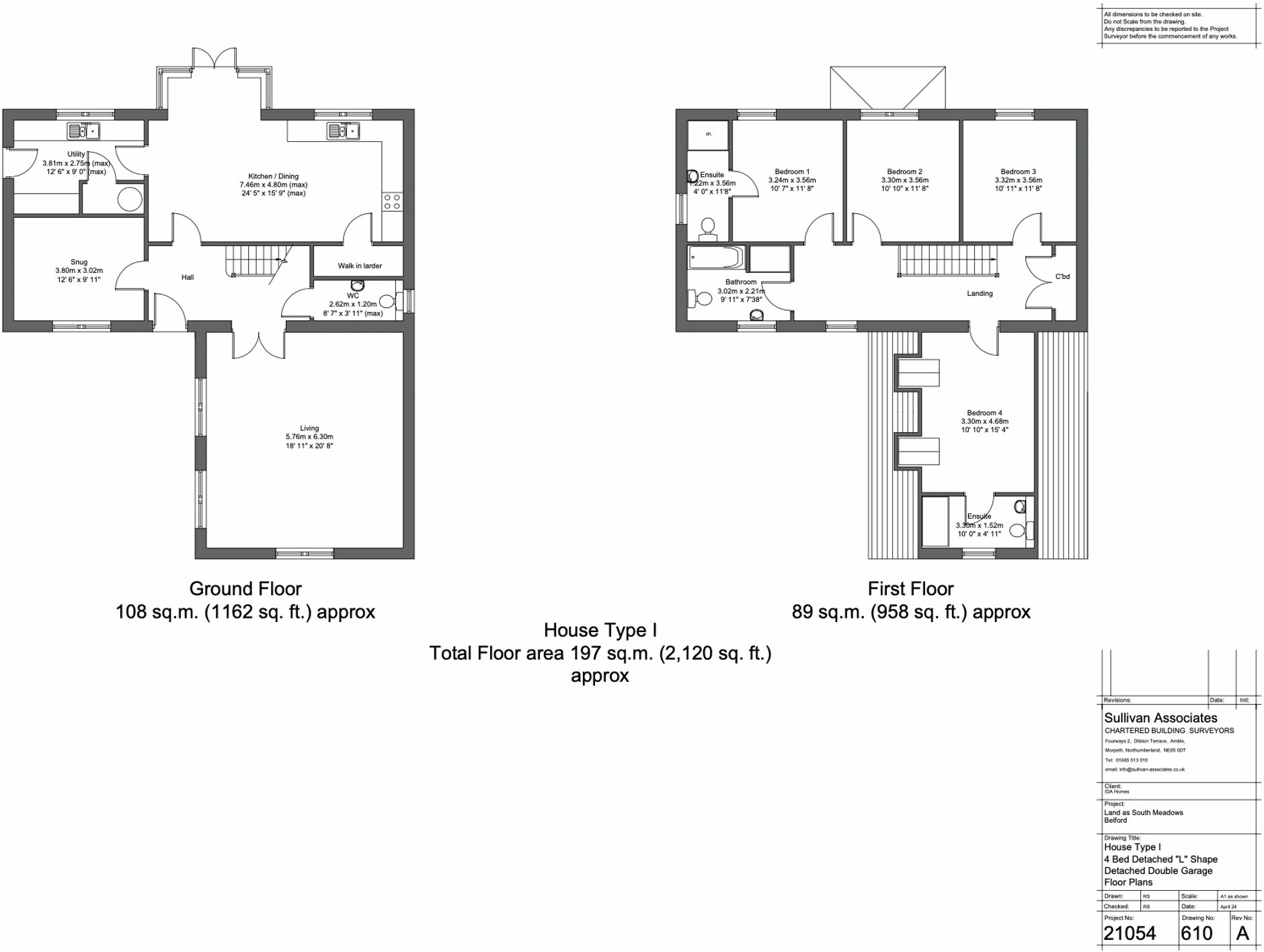
Nestled in the picturesque South Meadows of Belford, this meticulously crafted stone-built detached home offers a perfect blend of modern comforts and rural charm. Spanning 2,120 square feet, the property features four generous bedrooms, including two ensuring privacy with ensuites, making it ideal for families or guests. The heart of the home is an open-plan kitchen and dining area, accentuated by contemporary design features, a walk-in larder, and integrated appliances, promoting both functionality and style.
Enjoy energy efficiency with underfloor heating powered by a state-of-the-art air source heat pump and solar panels, complemented by a 5Kw battery storage system, ensuring lower utility bills and a smaller carbon footprint. The detached double garage adds further convenience to your lifestyle.
Situated on an expansive plot, the property invites future renovations or extensions while providing captivating views of the surrounding Northumberland landscape. With Belford's quaint amenities and local schools just a stone's throw away, this home is perfect for those seeking tranquility without sacrificing community engagement.
Don't miss the chance to own a piece of this beautiful Scottish countryside; viewings are by appointment only. Embrace the opportunity for comfortable living in a thriving community.
4 bedroom detached house for sale in South Meadows, South Road, NE70 — £575,000 • 4 bed • 3 bath • 1668 ft²
4 bedroom detached house for sale in South Meadows, Belford, NE70 — £615,000 • 4 bed • 3 bath • 2120 ft²
4 bedroom detached house for sale in South Meadows, Belford, NE70 — £575,000 • 4 bed • 3 bath • 1668 ft²
5 bedroom detached house for sale in South Meadows, South Road, NE70 — £605,000 • 5 bed • 3 bath • 2110 ft²
4 bedroom detached house for sale in South Meadows, South Rd, NE70 — £525,000 • 4 bed • 2 bath • 2120 ft²
3 bedroom detached house for sale in South Meadows, South Rd, NE70 — £380,000 • 3 bed • 1 bath • 1130 ft²






























