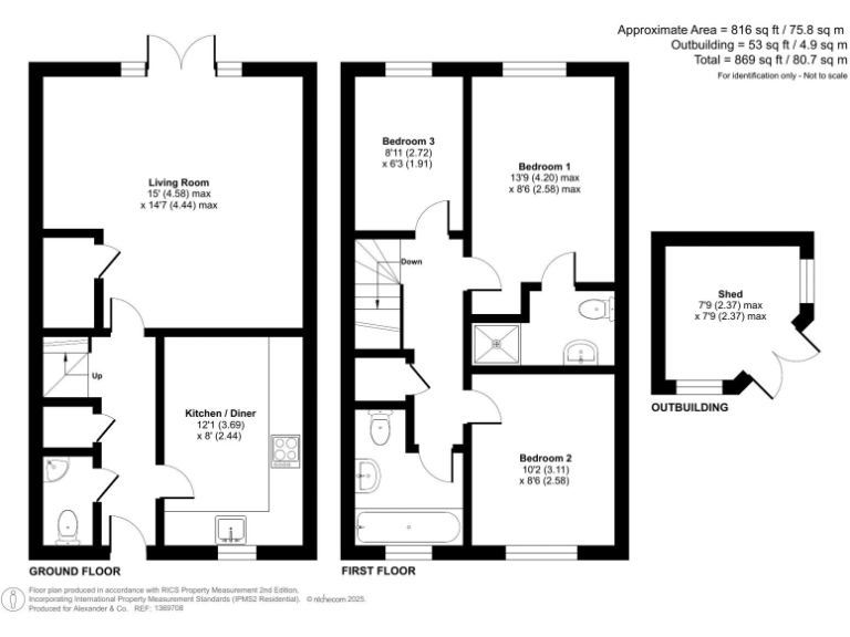
Contemporary, low-maintenance home with garden and study-friendly summerhouse.
- Built 2020, well presented throughout
- Three bedrooms, en-suite to master
- Large living/dining room with garden access
- Newly landscaped rear garden with summerhouse
- Off-street parking for two (carport and driveway)
- Total floor area approx 816 sq ft (modest size)
- High local crime reported; consider security measures
- Fast broadband and excellent mobile signal
Built in 2020 and presented in good order, this three-bedroom semi-detached home combines modern convenience with ready-to-use living space. The large living/dining room opens via double doors onto a newly landscaped rear garden and deck — a practical layout for family life and informal entertaining. The master bedroom benefits from an en-suite and fitted wardrobe space; two further bedrooms and a family bathroom complete the upstairs.
Outside, the rear garden has been recently reworked and includes an enclosed summerhouse suitable for home working or a snug. Off-street parking for two vehicles is provided by a side carport and driveway, with additional visitor spaces on the street. Broadband speeds are fast and mobile signal is excellent, supporting remote working and streaming.
Practical points to note: the home totals about 816 sq ft, so rooms are comfortable but not large. Crime in the area is reported as high, which may be a consideration for some buyers. The property is freehold with affordable council tax and sits in a very affluent, well‑educated local area with several good schools within easy reach.
3 bedroom semi-detached house for sale in Swithin Lane, Buckingham, Buckinghamshire, MK18 — £350,000 • 3 bed • 2 bath • 816 ft²
3 bedroom semi-detached house for sale in Dunstan Street, Buckingham, MK18 — £360,000 • 3 bed • 2 bath • 560 ft²
3 bedroom semi-detached house for sale in Dunstan Street, Buckingham, Buckinghamshire, MK18 — £360,000 • 3 bed • 2 bath • 767 ft²
3 bedroom semi-detached house for sale in Buccas Lane, Buckingham, Buckinghamshire, MK18 — £390,000 • 3 bed • 2 bath • 1131 ft²
3 bedroom semi-detached house for sale in Edward Road, Buckingham, Buckinghamshire, MK18 — £375,000 • 3 bed • 2 bath • 771 ft²
4 bedroom link detached house for sale in Edburg Street, Buckingham, Buckinghamshire, MK18 — £490,000 • 4 bed • 2 bath • 1363 ft²










































































