SE5 7JZ - 1 bed park edge one bedroom in Addington Square, SE5 7JZ

View on Property Piper

1 bedroom flat for sale in Addington Square, Camberwell, London, SE5

Summary - FLAT C, 6, ADDINGTON SQUARE SE5 7JZ

1 bed 1 bath Flat

Victorian 1-bed with long lease beside Burgess Park — ideal for first-time buyers or investors..
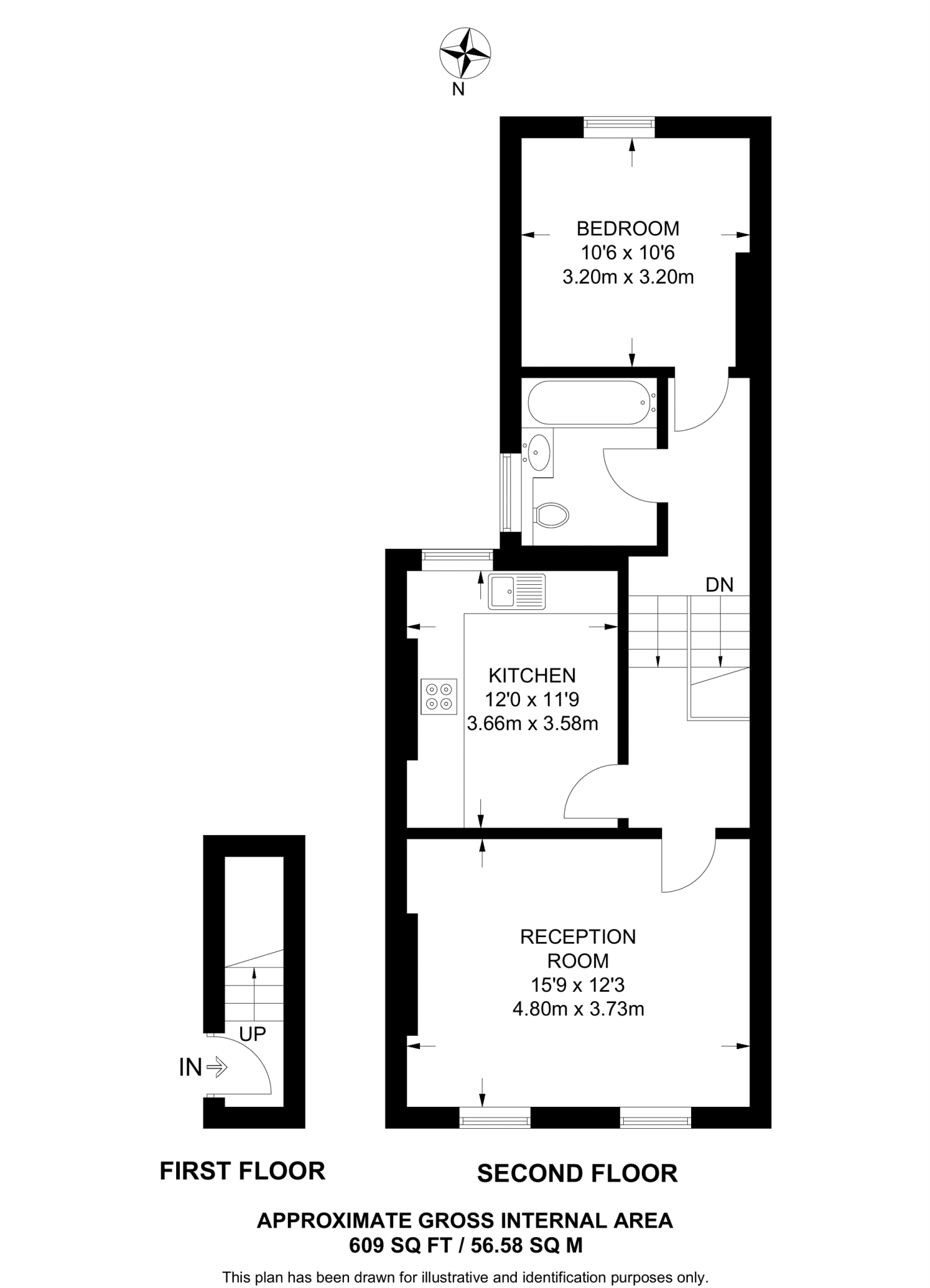
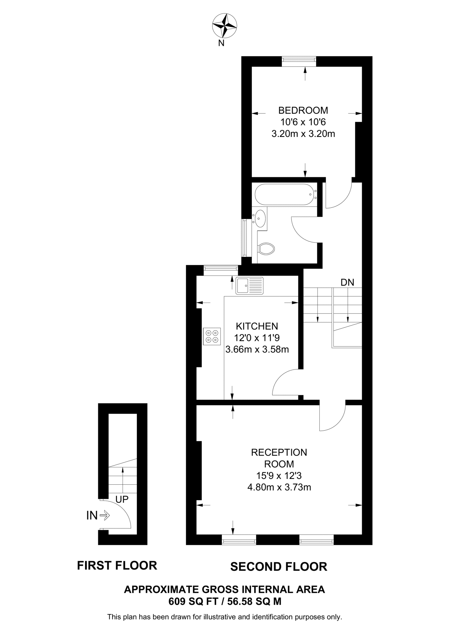
Second-floor Victorian flat beside Burgess Park
Large reception room with high ceilings and period windows
Separate kitchen and double bedroom, well-arranged layout
Very long lease (960 years) and share of freehold
Allocated garage parking — uncommon for central SE5
Service charge approx. £1,200 per year
Area flagged as higher crime and relatively deprived
Solid-brick construction; likely requires modernisation/insulation
Set on the second floor of a handsome late-Victorian terrace, this one-bedroom flat sits directly beside Burgess Park and its tennis courts. The large reception room benefits from high ceilings and period windows that flood the space with natural light. The separate kitchen and double bedroom make for a comfortable layout for everyday living.

Practical strengths include a very long lease (960 years) and share of freehold, plus allocated garage parking — rare for central locations. Broadband and mobile signal are excellent, and local schools include several highly rated options within easy reach.

Buyers should note the area has higher crime levels and is relatively deprived; the property will suit someone who values proximity to green space and transport over a quiet suburban street. The building’s solid-brick Victorian construction likely needs internal modernisation and may not have cavity insulation. Service charge is approximately £1,200 per year.

This flat offers clear potential for a first-time buyer or investor seeking a well-located home with long-term ownership security and scope to add value through sympathetic updating.

Property Details

Image Descriptions

Floorplan Description

Rooms

Textual Property Features

Target Audience

AI Tags

Detected Visual Features

EPC Details

Nearby Schools

Nearest Bars And Restaurants

,,,,}

Nearest General Shops

,,}

Nearest Grocery shops

,,}

Nearest Supermarkets

,,}

Nearest Religious buildings

,,}

Nearest Medical buildings

,,,}

Nearest Airports

,,}

Nearest Leisure Facilities

,,,,}

Nearest Tourist attractions

,,}

Nearest Train stations

,,,,}

Nearest Bus stations and stops

,,,,}

Nearest Hotels

,,}

Tags

Local Market Stats

AirBnB Data

Similar Properties

Meta

High Res Images

Compatible Images

Low res Images

Thumbnails

Raw Images

High Res Floorplan Images

Compatible Floorplan Images

Low res Floorplan Images

FloorplanImages Thumbnail

Raw Floorplan Images