**Property Highlights:**
- **Stunning Edwardian Design**: Character-rich with Arts and Crafts features, including original bay windows, high ceilings, and solid brick construction.
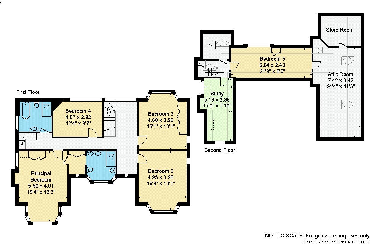
- **Spacious Living**: 3,197 sq ft of accommodation with 5 bedrooms and 4 reception rooms, plus an attic and workshop.
- **Bespoke Comfort**: Open-plan bespoke kitchen flowing into a light-filled orangery, perfect for family gatherings.
- **Prime Location**: Situated on a private road in the desirable Newnham area, just 1 mile from Cambridge city center and near excellent schools.
- **Garden & Parking**: Beautifully landscaped south-facing garden and a double garage enhance outdoor living and convenience.
- **Listed Status**: Note that the property's status will pose challenges for future alterations.
Millington Lodge is a magnificent Edwardian family home nestled on a tranquil private road in the sought-after Newnham area of Cambridge. This expansive 3,197 sq ft residence boasts exquisite period details, including remarkable bay windows and high ceilings, providing a sense of grandeur and charm. The heart of the home features a bespoke kitchen that opens into a stunning orangery, bathing the living space in natural light—ideal for both family gatherings and entertaining.
Surrounded by beautifully landscaped gardens, this property ensures ample privacy while being conveniently located near local amenities, schools, and green spaces. With plenty of room for families or professionals, its versatile layout offers unlimited potential for customization. However, potential buyers should be aware of the listed status of the property, which may affect renovation plans.
An excellent opportunity for those seeking an elegant residence in a prime, affluent location, Millington Lodge is a rare find in the competitive Cambridge market. Don’t miss out on the chance to call this stunning home yours; it might not be available for long!
5 bedroom detached house for sale in Millington Road, Cambridge, CB3 — £2,500,000 • 5 bed • 2 bath • 2446 ft²
5 bedroom semi-detached house for sale in Hinton Avenue, Cambridge, CB1 — £1,100,000 • 5 bed • 2 bath • 1943 ft²
5 bedroom detached house for sale in Hills Avenue, Cambridge, Cambridgeshire, CB1 — £2,325,000 • 5 bed • 3 bath • 2591 ft²
3 bedroom terraced house for sale in Marlowe Road, Cambridge, CB3 — £1,100,000 • 3 bed • 2 bath • 1220 ft²
7 bedroom detached house for sale in Luard Road, Cambridge, Cambridgeshire, CB2 — £4,250,000 • 7 bed • 3 bath • 5061 ft²
4 bedroom semi-detached house for sale in Milton Road, Cambridge, CB4 — £985,000 • 4 bed • 2 bath • 1550 ft²














































































