**Standout Features:**
- Mixed-use freehold property with double retail shop and three residential flats.
- Total rental income of £64,800 p.a., with an estimated rental value (ERV) of £75,000 p.a.
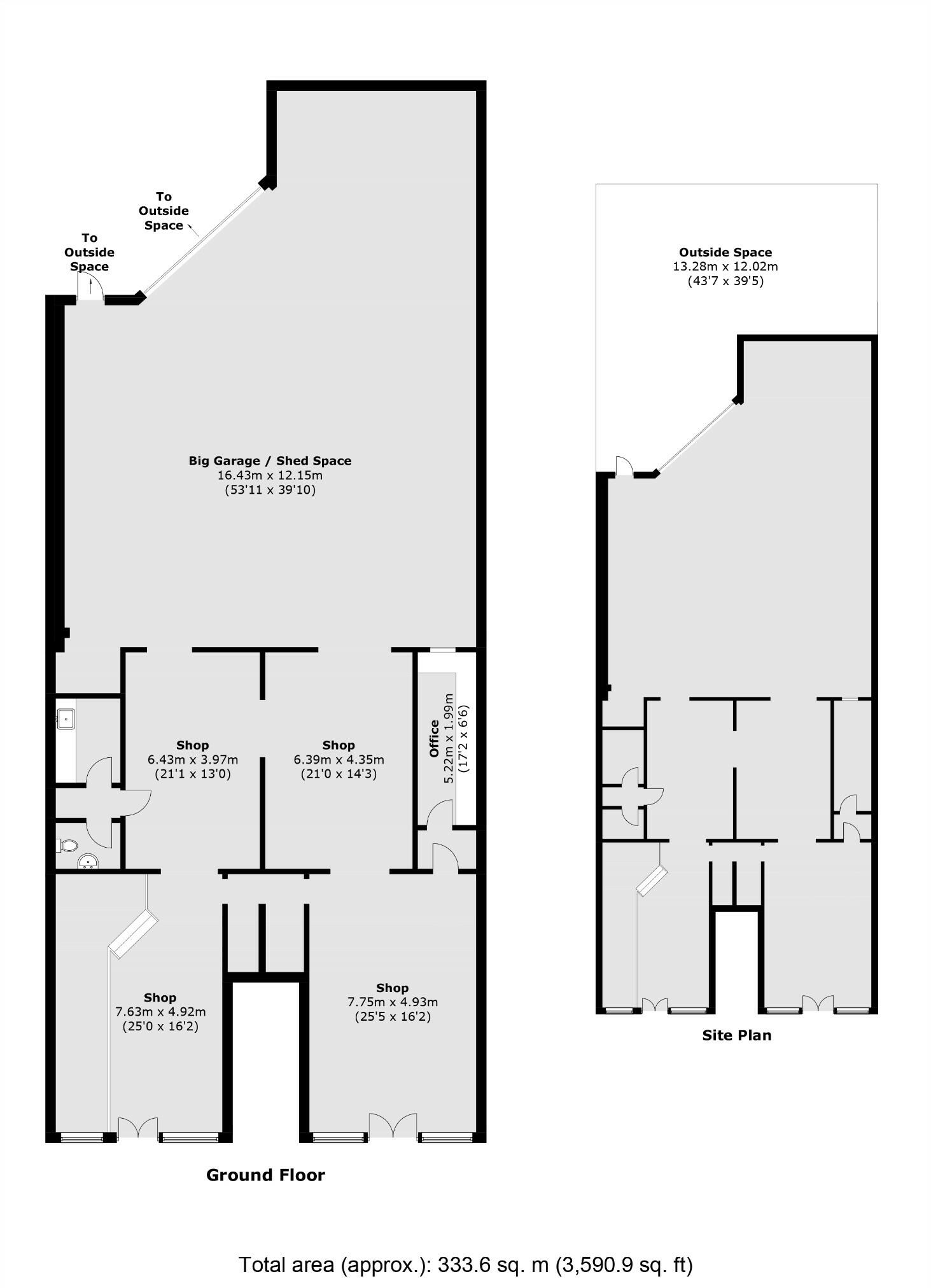
- Large, well-situated commercial space (3,591 sq. ft.) with dual access.
- Conveniently located just 0.3 miles from South Wimbledon Station and 0.4 miles from Colliers Wood Station.
- Residential units comprise a 1-bed, a 2-bed, and a spacious 3-bed flat.
- Future development potential, with approved planning applications in the vicinity.
**Property Summary:**
For savvy investors and developers, this mixed-use freehold property on Merton High Street, London, presents an exceptional opportunity. Comprising a double retail shop and three residential flats (1x 1 bed, 1x 2 bed, 1x 3 bed), this asset generates a substantial income of £64,800 annually, offering both immediate cash flow and promising growth potential given the estimated rental value of £75,000.
Spanning a generous 6,039 sq. ft., the commercial space is adaptable and strategically located near major transport links, enhancing its appeal to tenants and customers alike. With schools rated 'Good' and 'Outstanding' just a short distance away, this property is ideal for attracting families and professionals seeking a vibrant urban lifestyle.
While the property is currently being sold unconditionally with no planning history, nearby developments indicate potential for future expansion or renovation to maximize returns. Note that the energy performance ratings vary among the residential units, with opportunities for improvement. This strategically located asset is a rare find in a rapidly changing neighborhood—act quickly to secure this investment before it’s gone!
Industrial development for sale in Christchurch Road, Colliers Wood, London SW19 — £850,000 • 1 bed • 1 bath • 1949 ft²
1 bedroom mixed use property for sale in Wimbledon, London, SW19 — £795,000 • 1 bed • 1 bath • 1667 ft²
4 bedroom mixed use property for sale in Wandsworth High Street, London, SW18 — £900,000 • 4 bed • 2 bath • 1811 ft²
Commercial property for sale in London Road, Morden, SM4 — £650,000 • 1 bed • 1 bath • 1367 ft²
High street retail property for sale in 52 Wimbledon Hill Road, Wimbledon, London, SW19 7PA, SW19 — £750,000 • 1 bed • 1 bath • 1338 ft²
Plot for sale in Walpole Road, Colliers Wood, London SW19 — £1,000,000 • 1 bed • 1 bath • 2855 ft²


































