**Standout Features:**
- Modern detached bungalow, built in 2022 with no chain
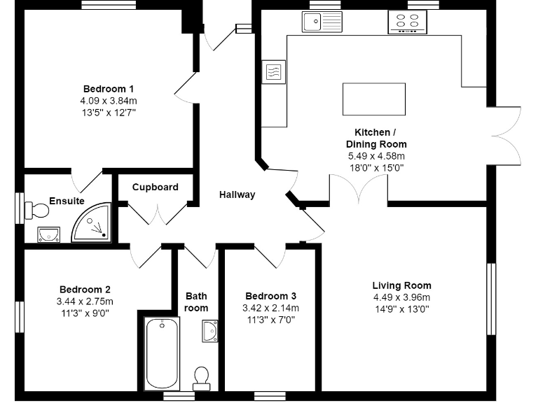
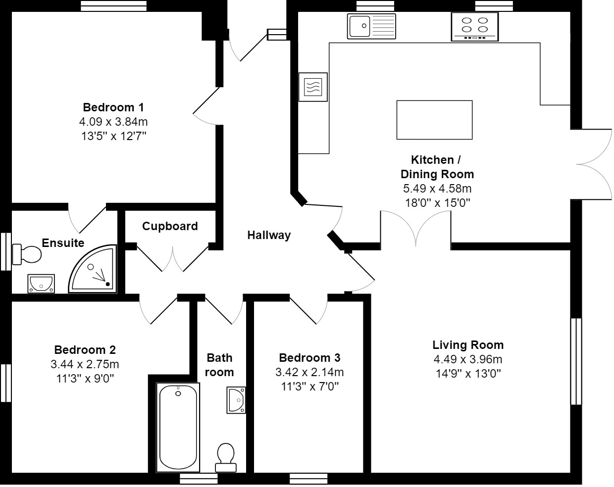
- Three spacious bedrooms, including an ensuite
- Expansive 18' fitted kitchen/dining room and comfortable 14' living room
- Enclosed rear garden, extended double garage, and ample off-road parking
- Close proximity to schools and amenities with excellent transport links
- Energy-efficient with gas central heating and double glazing
**Concise Property Summary:**
Discover this stunning modern detached bungalow, thoughtfully designed for contemporary living. Featuring three inviting bedrooms—including a primary suite with an ensuite—this home is ideal for families or those seeking a comfortable retirement space. The expansive open-plan kitchen/dining area, measuring an impressive 18', seamlessly flows into a bright 14' living room, enhancing the sense of space and comfort.
Nestled in a desirable residential area, you’ll enjoy the convenience of nearby schools, shops, and easy motorway access, making it perfect for commuting. The property also boasts a manicured enclosed garden, an extended double garage, and ample off-road parking. With council tax band D and a strong community vibe, this home holds future potential as a family haven or rental investment. Early viewing is highly recommended to appreciate its charm and functionality—don’t miss out on this opportunity!
3 bedroom detached bungalow for sale in Loxwood Road, Lovedean, PO8 — £425,000 • 3 bed • 1 bath • 986 ft²
2 bedroom semi-detached bungalow for sale in Milton Road, Cowplain, PO8 — £375,000 • 2 bed • 2 bath • 915 ft²
2 bedroom bungalow for sale in Hawthorn Road, Horndean, Waterlooville, Hampshire, PO8 — £415,000 • 2 bed • 1 bath • 673 ft²
3 bedroom detached bungalow for sale in Downview Way, Clanfield, PO8 — £500,000 • 3 bed • 2 bath • 937 ft²
4 bedroom detached bungalow for sale in Hazelwood Avenue, Bedhampton, PO9 — £550,000 • 4 bed • 2 bath • 1450 ft²
3 bedroom detached bungalow for sale in Wode Close, Horndean, PO8 — £340,000 • 3 bed • 1 bath • 1098 ft²


























































