Spacious four-bedroom home with high-spec kitchen and southwest garden near village amenities.
Large 2,139 sq ft detached house on very large, private plot
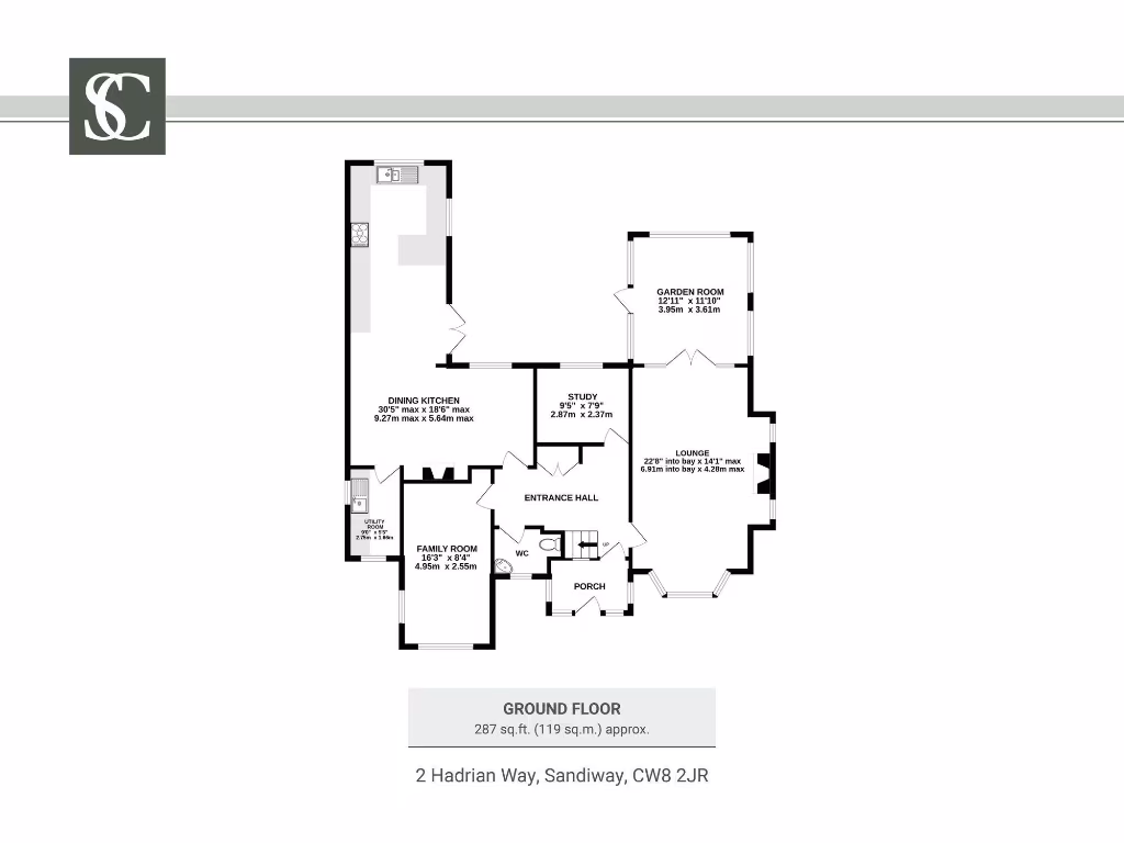
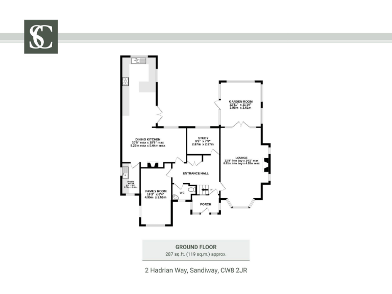
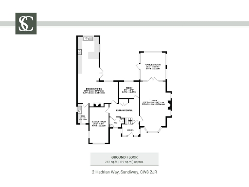
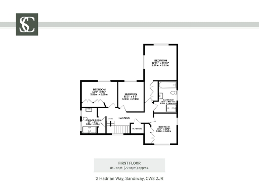
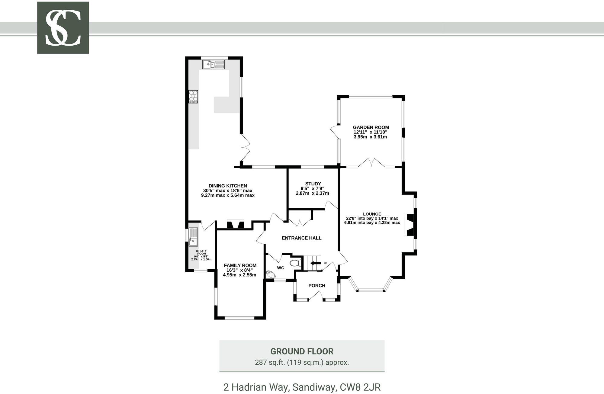
A substantial four-bedroom detached home set on a large, private plot in a quiet cul-de-sac in Sandiway. The house offers 2,139 sq ft of flexible family living with multiple reception rooms, a dedicated home office and a high-spec American oak kitchen with quality Neff and Bosch appliances. South-west facing garden, wisteria-draped patio and a detached double garage provide excellent outdoor space and secure parking for several cars.
Energy-efficient and practical upgrades reduce running costs and future-proof the home: solar panels (installed 2023), an 8kW battery, Hive-controlled heating and a new boiler fitted in 2024. Loft insulation and double glazing further improve thermal performance; EPC rating B. Fast broadband, excellent mobile signal and very low local crime make this comfortable for family life and remote working.
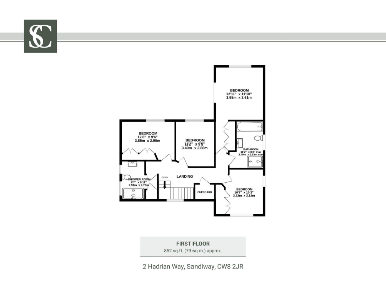
The layout suits family needs: light-filled sitting room with bay window, garden room, snug/games room, utility and cloakroom on the ground floor, plus four well-proportioned double bedrooms and two contemporary bathrooms upstairs. There is scope to create an en suite to the master bedroom by adding a door or reconfiguring the corridor.
Notable considerations: council tax is described as quite expensive and some fitted items (8kW battery, EV charger in garage) are negotiable rather than guaranteed. The house dates from the late 1960s/early 1970s, so while well-upgraded, buyers should commission a survey to check for age-related maintenance. Overall, the property blends characterful Tudor-Revival styling with contemporary family-friendly upgrades.
5 bedroom detached house for sale in Hadrian Way, Sandiway, Northwich, CW8 — £650,000 • 5 bed • 3 bath • 2353 ft²
5 bedroom detached house for sale in 0.26 acre and outstanding 3298 square feet house in Hadrian Way, CW8 — £935,000 • 5 bed • 4 bath • 3298 ft²
4 bedroom detached bungalow for sale in 21 Weaverham Road - individual excellence in Sandiway, CW8 — £675,000 • 4 bed • 2 bath • 2442 ft²
3 bedroom detached house for sale in The Oaks - gated bespoke 2400 square feet home in in Sandiway, CW8 — £1,100,000 • 3 bed • 3 bath • 2400 ft²
6 bedroom detached house for sale in Sandiway village set in 0.63 acre, CW8 — £650,000 • 6 bed • 3 bath • 2978 ft²
4 bedroom detached house for sale in Small cul de sac, parking for six and double garage in Sandiway village, CW8 — £400,000 • 4 bed • 2 bath • 1185 ft²






























































































































































