Character-filled family home close to the Menai Strait and town amenities.
Victorian end-terrace with original mouldings and carved slate fireplaces
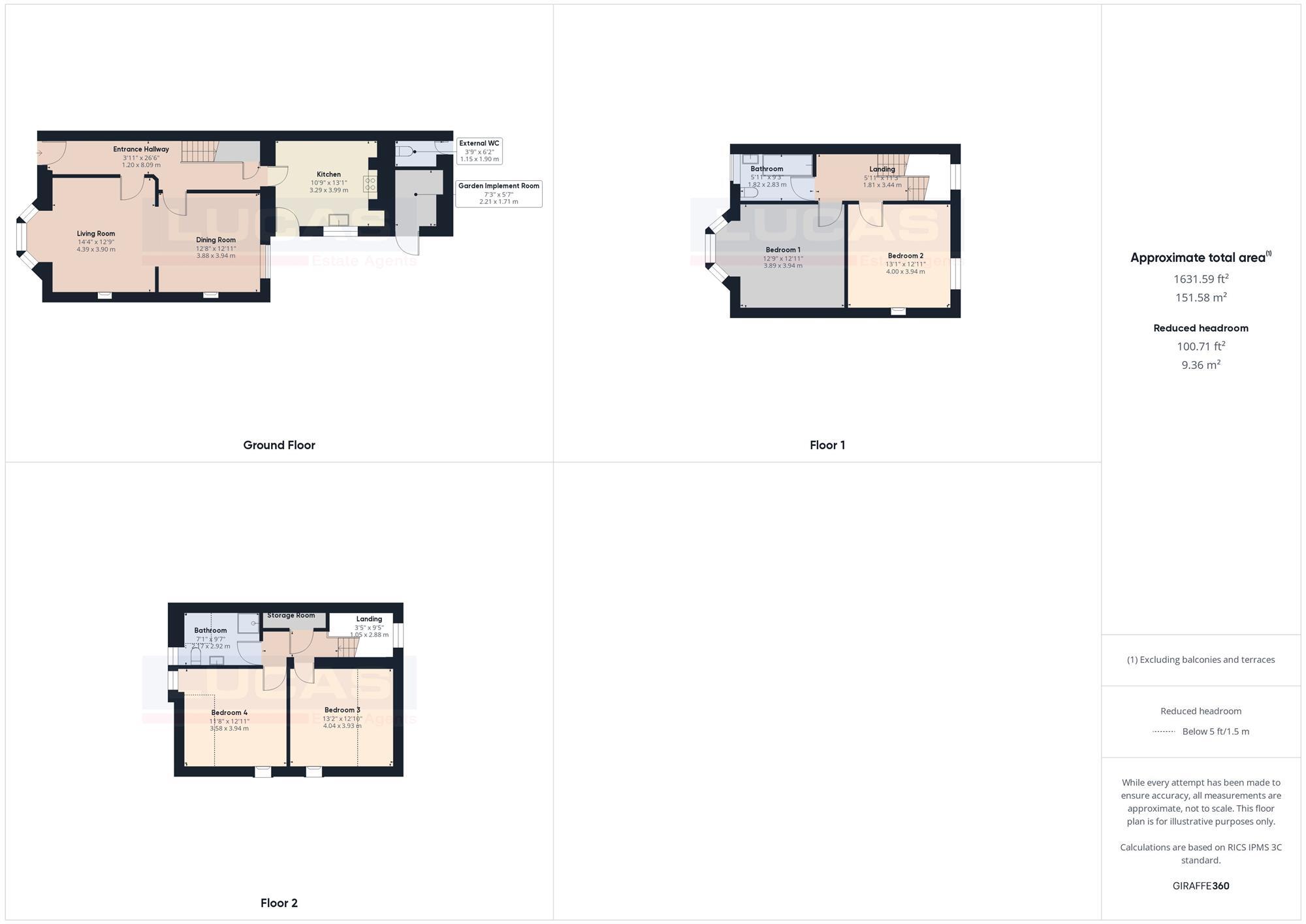
New fitted kitchen and recently installed gas central heating boiler
Off-street parking for two vehicles beyond rear garden
Enclosed low-maintenance courtyard, stone store and external WC with new roof
Top-floor bedrooms have limited headroom; restricts layout and use
EPC D; average energy performance for period stone property
Part-furnished; some contents available by negotiation
Small plot in town centre location, walking distance to shops and Menai Strait
Set over three floors, Angorfa is a spacious Victorian end-terrace townhouse blending original character with recent upgrades. High ceilings, decorative mouldings and several carved slate fireplaces give the principal rooms strong period appeal. The owners have fitted a new kitchen, recently installed gas boiler, some new floor coverings and redecorated throughout, so the house is largely move-in ready.
Practical features include off-street parking for two cars beyond the rear garden, a low‑maintenance enclosed courtyard, stone garden store and external WC (recently reroofed). Gas central heating, double glazing and useful built-in storage help with everyday living; some contents are available by negotiation.
There are material considerations: the top-floor bedrooms have limited headroom, which may restrict furniture layouts and use as adult bedrooms. EPC rating D and an older stone structure mean energy performance is average. The plot is modest and the property sits in a town flagged as having higher local deprivation indicators—buyers seeking a more rural or affluent setting should note this.
This house will suit a family or professional couple wanting generous, characterful rooms close to Menai Bridge amenities, the Menai Strait and A55 connections. It offers a comfortable, character-rich home with scope for sympathetic further improvement where desired.
3 bedroom town house for sale in Greenfield Terrace, Hill Street, Menai Bridge, LL59 — £295,000 • 3 bed • 1 bath • 881 ft²
4 bedroom town house for sale in West End, Beaumaris, LL58 — £825,000 • 4 bed • 4 bath • 2201 ft²
4 bedroom terraced house for sale in St. Georges Road, Menai Bridge, LL59 — £440,000 • 4 bed • 2 bath • 1594 ft²
4 bedroom town house for sale in Y Wenllys, Cambria Road, Menai Bridge, LL59 — £419,950 • 4 bed • 2 bath • 1622 ft²
4 bedroom house for sale in Castle Street, Beaumaris, LL58 — £660,000 • 4 bed • 2 bath • 2126 ft²
4 bedroom end of terrace house for sale in Water Street, Menai Bridge, Sir Ynys Mon, LL59 — £435,000 • 4 bed • 2 bath • 1944 ft²


































































































































