Immediate income-producing property close to transport and local amenities.
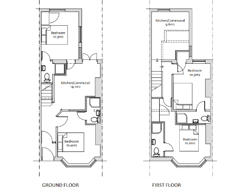
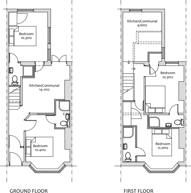
Freehold 4-bed HMO with four en-suite rooms
A compact four-bedroom HMO offered freehold with a strong current income profile. Fully tenanted with an established local management arrangement, the property produces a gross income of £23,748 and a gross yield of 14.84% at the asking price of £160,000. All four bedrooms are en-suite and rents are set between £490–£499pcm, providing immediate cashflow for an investor.
The mid-terrace Edwardian house sits on a small plot with a modest rear garden and two fitted kitchens, supporting split living and tenant circulation. It’s a short walk to Rock Ferry station, Victoria Park, local shops and supermarkets, and is close to road links into Liverpool, which helps tenant demand. The building retains period features such as a bay window and a high-ceiling hallway.
Buyers should note the wider neighbourhood is classified as very deprived and the immediate local area is described as challenged; this can affect void risk, tenant churn and long-term capital appreciation. There is a 1.5% buyer’s fee payable on purchase. Council tax is very low, and broadband and mobile signal are good — practical benefits for rental occupiers.
Overall this is a hands-off income asset for an investor seeking high yield and existing occupancy. Consider budgeting for routine maintenance, HMO compliance checks and periodic refurbishment to sustain rents and minimise voids given the local market profile.
6 bedroom terraced house for sale in Brougham Road, Wallasey, Merseyside, CH44 — £380,000 • 6 bed • 6 bath • 1906 ft²
7 bedroom semi-detached house for sale in Bedford Road, Rockferry, Birkenhead, CH42 — £390,000 • 7 bed • 7 bath
6 bedroom terraced house for sale in Chatsworth Avenue, Wallasey, Merseyside, CH44 — £370,000 • 6 bed • 6 bath • 415 ft²
House of multiple occupation for sale in Church Road, Birkenhead, Merseyside, CH42 5LE, CH42 — £230,000 • 1 bed • 1 bath
Terraced house for sale in Portelet Road, Liverpool, Merseyside, L13 — £250,000 • 1 bed • 1 bath • 1087 ft²
5 bedroom terraced house for sale in Briardale Road, Birkenhead, Wirral, CH42 — £130,000 • 5 bed • 3 bath • 367 ft²














































