Well-located two-bedroom cottage with private courtyard and commuter links.
Central Manningtree location, short walk to station and high street
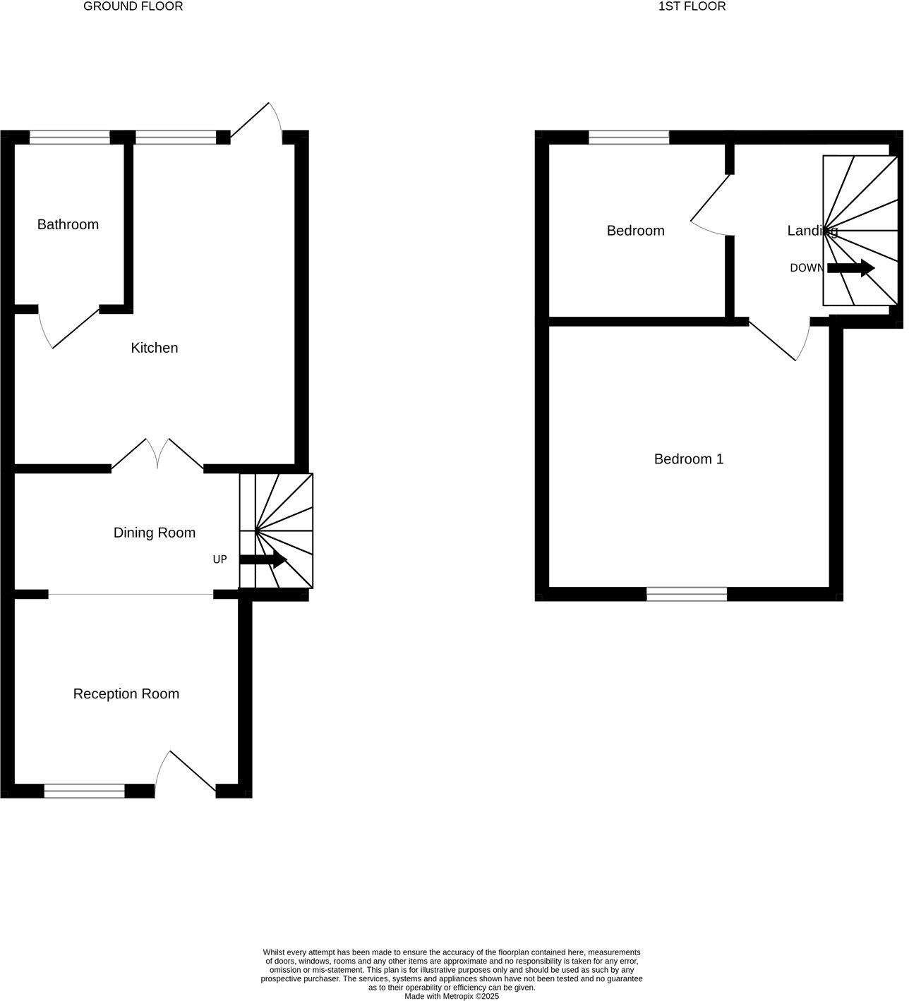
A compact Victorian terraced cottage in the heart of Manningtree, ideal for a first-time buyer or couple seeking character and convenience. The house is arranged over two floors with a front reception, separate dining area, kitchen to the rear, ground-floor bathroom and two first-floor bedrooms. High street shops, cafes and the station with direct links to London are all within easy walking distance.
The property’s strengths are its central location, period brick façade and private enclosed courtyard — low-maintenance outdoor space with a gated rear entrance. Practical benefits include mains gas central heating, freehold tenure, low council tax and no flood risk. Fast broadband and excellent mobile signal make the house work well for remote working or streaming.
Buyers should be aware the rooms and overall plot are small, typical of a town cottage, and the building is older (pre-1900) with solid brick walls likely lacking modern cavity insulation. The layout and finishes will suit someone happy to modernise or adapt spaces; there is clear potential for updating the kitchen, bathroom and internal decor to increase comfort and value.
This is a straightforward, well-located home that offers immediate occupation with scope for modest improvement. It suits buyers prioritising town-centre living, commute convenience and period character over generous space or off-street parking.
2 bedroom terraced house for sale in Oxford Road, Manningtree, CO11 — £260,000 • 2 bed • 1 bath • 700 ft²
3 bedroom semi-detached house for sale in Railway Street, Manningtree, Essex, CO11 — £260,000 • 3 bed • 1 bath • 819 ft²
1 bedroom terraced house for sale in Gasfield, Mistley, Manningtree, Essex, CO11 — £180,000 • 1 bed • 1 bath • 431 ft²
4 bedroom semi-detached house for sale in The Walls, Manningtree, Essex, CO11 — £595,000 • 4 bed • 2 bath • 1223 ft²
3 bedroom end of terrace house for sale in Colchester Road, Lawford, Manningtree, CO11 — £290,000 • 3 bed • 1 bath
2 bedroom terraced house for sale in Oxford Road, Manningtree, CO11 — £220,000 • 2 bed • 1 bath • 437 ft²














































































