BS3 1EF - 4 bedroom terraced house for sale in Greville Street, Brist…

View on Property Piper

4 bedroom terraced house for sale in Greville Street, Bristol, BS3

Summary - 24 GREVILLE STREET BRISTOL BS3 1EF

4 bed 3 bath Terraced

**Standout Features:**
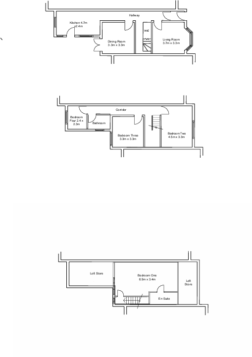
- Four bedrooms and three bathrooms in a Victorian end-terrace house
- Flexible dormer attic conversion with dual aspect views and en-suite
- Fully insulated garden office/studio/gym with electricity
- Spacious living and dining areas with traditional features
- Located in the desirable Southville area, close to trendy amenities and well-regarded schools

**Potential Downsides:**
- Small overall size of 610 sq. ft.
- Maintenance needed for ivy-covered exterior and solid brick walls
- Potential damp and older double glazing may require attention

Discover this charming Victorian end-terrace home nestled in the vibrant Southville area of Bristol, with easy access to trendy shops, bars, and well-regarded schools. With four bedrooms and three bathrooms, including a standout dormer attic conversion that offers stunning 180-degree views of the city and distant hills, this property is perfect for families or professionals seeking comfort and style.

The cozy living room features a multi-fuel stove and built-in bookshelves, while the spacious dining area opens onto a charming deck and garden, perfect for enjoying afternoon sun. The rear kitchen is well-equipped and ready for culinary adventures. This home also boasts a fully insulated garden office/studio/gym, offering versatility for work, creativity, or fitness right in your backyard.

With excellent public transport links and low crime in the area, this property presents an exceptional opportunity for first-time buyers or investors. However, with its compact overall size, potential upkeep of its charming exterior, and older double glazing, savvy buyers may see room for modernization and personalization. Don't miss out on this opportunity to secure a beautifully unique home in a sought-after neighborhood. Envision your future here while considering the potential this property holds!

Property Details

Image Descriptions

Rooms

Textual Property Features

Detected Visual Features

EPC Details

Nearby Schools

Nearest Bars And Restaurants

,,,,}

Nearest General Shops

,,}

Nearest Grocery shops

,,}

Nearest Supermarkets

,,}

Nearest Religious buildings

,,}

Nearest Medical buildings

,,,}

Nearest Airports

}

Nearest Leisure Facilities

,,,,}

Nearest Tourist attractions

,,}

Nearest Train stations

,,,,}

Nearest Bus stations and stops

,,,,}

Nearest Hotels

,,}

Tags

Local Market Stats

AirBnB Data

Similar Properties

Meta

High Res Images

Compatible Images

Low res Images

Thumbnails

Raw Images

High Res Floorplan Images

Compatible Floorplan Images

Low res Floorplan Images

FloorplanImages Thumbnail

Raw Floorplan Images