Quiet location with garden, parking and easy town and waterfront access.
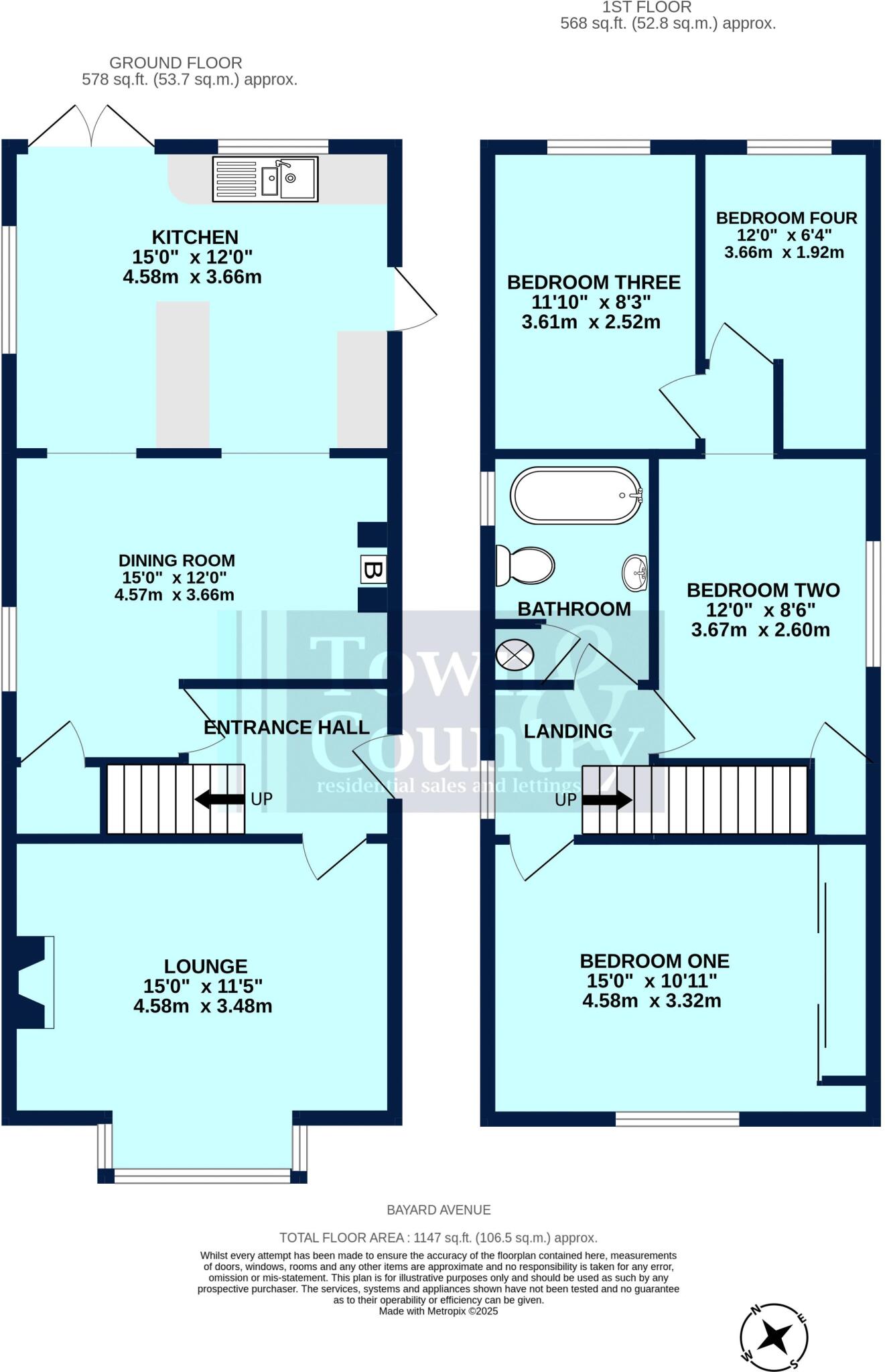
Detached four-bedroom family house on a decent-sized plot
A spacious four-bedroom detached house on a generous plot, positioned in a quiet Brightlingsea street within easy walking distance of schools, the waterfront and the town centre. The home offers two reception rooms including a bright bay-fronted lounge and a dining room opening into an open-plan kitchen with French doors to the rear garden – good family flow for daily life and entertaining.
Constructed in the interwar period, the property retains character features such as exposed beams and a brick fireplace, and benefits from mains gas central heating, filled cavity walls and off-street parking. The plot size and rear aspect over allotments provide scope to improve or extend (subject to consents) for buyers wanting extra space or garden landscaping.
Buyers should note the home is offered with no onward chain but does require updating in places: the decor and kitchen are dated and there is a single family bathroom servicing four bedrooms. Broadband speeds are reported as slow, which may affect home working, though mobile signal is excellent. Overall this is a well-proportioned, good-value family property in a sought-after location that will reward modest refurbishment.
3 bedroom detached house for sale in Bayard Avenue, Brightlingsea, Colchester, CO7 — £390,000 • 3 bed • 1 bath
4 bedroom detached house for sale in Albert Road, Brightlingsea CO7 , CO7 — £425,000 • 4 bed • 1 bath • 1362 ft²
3 bedroom detached house for sale in Tower Street, Brightlingsea, Colchester, CO7 — £375,000 • 3 bed • 2 bath • 1187 ft²
4 bedroom detached house for sale in The Grove, Brightlingsea, Colchester, CO7 — £340,000 • 4 bed • 1 bath • 894 ft²
4 bedroom house for sale in Red Barn Road, Brightlingsea, CO7 , CO7 — £325,000 • 4 bed • 2 bath • 1788 ft²
4 bedroom detached house for sale in Chapel Road, Brightlingsea, CO7 — £525,000 • 4 bed • 2 bath • 2075 ft²


































































