Spacious family layout with garage and garden near good schools.
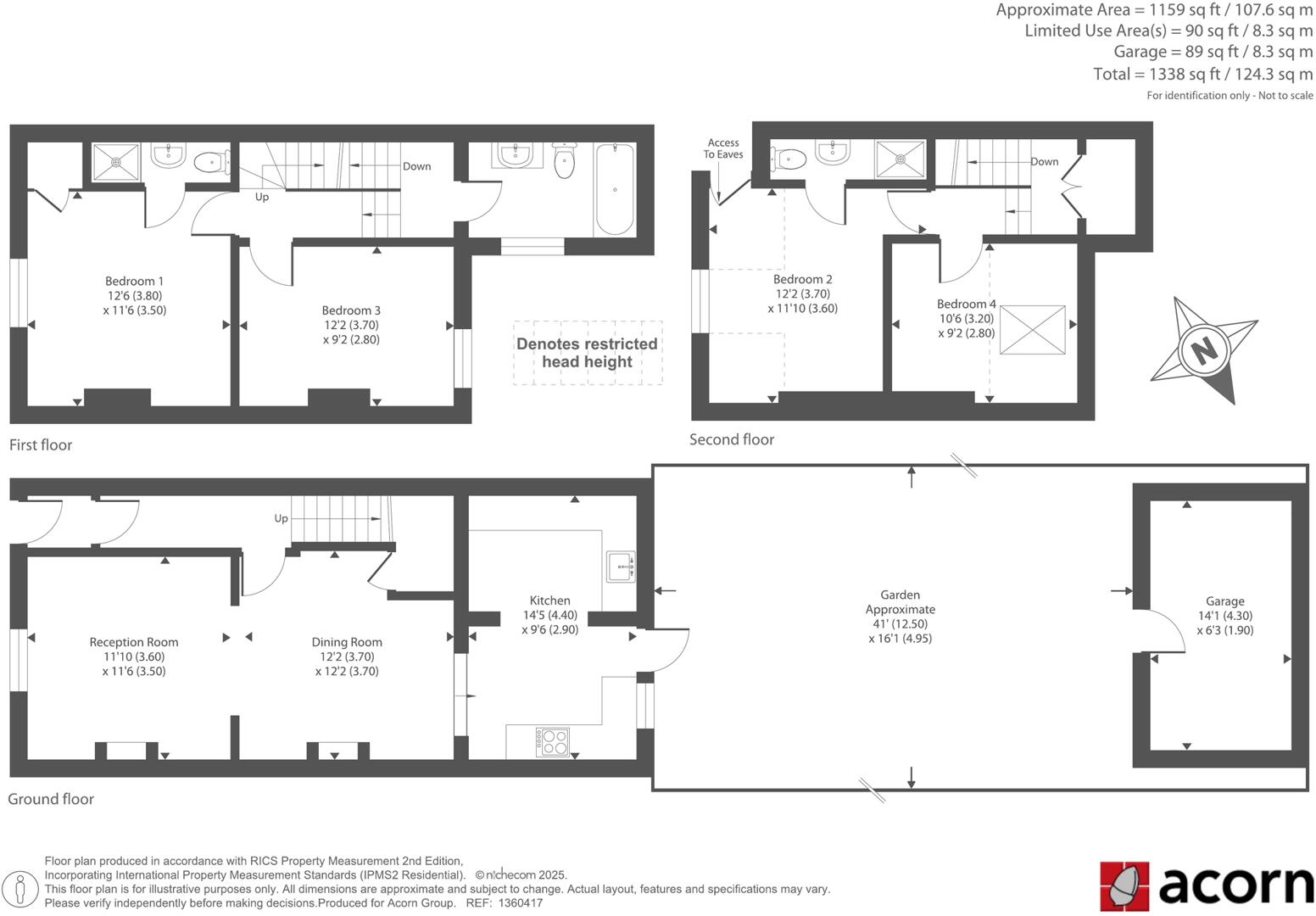
- Four bedrooms and three bathrooms across three levels
- Extended, open-plan kitchen with garden access
- Private rear garden plus detached garage for storage/parking
- Freehold property with mains gas boiler and radiators
- EPC rating D; walls assumed without added insulation
- Relatively small overall size (914 sq ft)
- Located in higher-crime area; consider security costs
- Good transport links and several nearby schools
This extended mid-terraced house offers flexible family living across three levels with four bedrooms and three bathrooms. The extended kitchen and open-plan ground floor create a sociable heart to the home, while two ensuite bedrooms add privacy for parents and older children. A private rear garden and detached garage provide outdoor space and secure storage or parking.
Practical points are clear: the property is freehold, has mains gas heating with a boiler and radiators, and double glazing installed after 2002. Local transport is strong — Bexley and Crayford stations and several bus routes make commuting straightforward, with a direct link to the Elizabeth Line via Abbey Wood.
Buyers should factor in some material downsides. The house is relatively small overall (914 sq ft) and sits in an area with higher crime levels, which may influence security and insurance costs. The solid brick walls are assumed to have no added insulation, and the EPC rating is D, so further insulation or energy improvements could be needed to reduce bills. Council tax sits at a moderate Band D.
This home will suit growing families who prioritise layout flexibility, school access and transport links, and who are prepared to manage energy upgrades and security considerations. The detached garage and private garden are genuine benefits in this area, offering practical space that many similar terraces lack.
3 bedroom terraced house for sale in Baldwyns Road, Bexley, DA5 2AB, DA5 — £400,000 • 3 bed • 1 bath • 757 ft²
4 bedroom end of terrace house for sale in High Trees, Dartford, Kent, DA2 — £550,000 • 4 bed • 2 bath • 1778 ft²
4 bedroom end of terrace house for sale in Hawley Road, Dartford, DA1 — £465,000 • 4 bed • 2 bath • 1167 ft²
4 bedroom end of terrace house for sale in Ashen Drive, West Dartford, DA1 — £600,000 • 4 bed • 2 bath • 1767 ft²
4 bedroom detached house for sale in Monterey Close, Bexley, DA5 — £795,000 • 4 bed • 2 bath • 1473 ft²
3 bedroom terraced house for sale in West View Road, Dartford, DA1 — £405,000 • 3 bed • 1 bath


























































































