Single-storey home with large garden and driveway; needs modernisation..
Detached two-bedroom bungalow on a generous plot
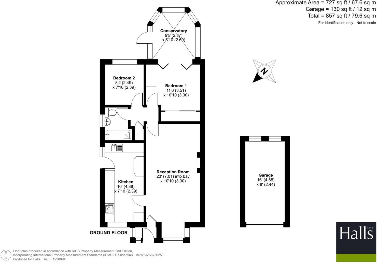
This detached two-bedroom bungalow offers single-floor living and sits on a generous plot at the edge of Penley. The layout is straightforward and well proportioned, with a large living/dining room, conservatory, functional kitchen and two bedrooms — a practical home for downsizers, retirees or buyers seeking a low-rise property with private outdoor space.
The plot and layout are real strengths: wide tandem driveway, covered carport, detached single garage and a substantial rear garden with paved patio — plenty of scope for landscaping, accessible outdoor living and storage. Double glazing has been fitted and the property is freehold with a modest council tax band C.
Internally the bungalow requires modernisation throughout. The kitchen and bathroom are dated and the property will benefit from cosmetic and systems updating. Heating is oil-fired via a boiler and radiators, which may be a running-cost and servicing consideration compared with mains gas. Buyers should also note the wider area scores as very deprived, which can affect resale and local services.
Positioned in a quiet cul-de-sac on the village perimeter, the house is a short drive from Ellesmere and within reasonable reach of Wrexham, Shrewsbury and Chester. For the right buyer this is an affordable, characterful bungalow with clear potential to modernise and add value while enjoying a private garden and convenient parking.
2 bedroom detached bungalow for sale in Oakwood Park, Penley., LL13 — £240,000 • 2 bed • 1 bath • 782 ft²
2 bedroom detached bungalow for sale in Tudor Drive, Wrexham, LL13 — £207,500 • 2 bed • 1 bath • 959 ft²
3 bedroom detached bungalow for sale in Lane End, Penley, Wrexham, LL13 — £269,950 • 3 bed • 1 bath • 806 ft²
3 bedroom semi-detached house for sale in Westway, Penley., LL13 — £199,995 • 3 bed • 1 bath • 814 ft²
2 bedroom detached bungalow for sale in Bridge Street, Pant, Penycae, LL14 — £225,000 • 2 bed • 1 bath • 967 ft²
2 bedroom detached bungalow for sale in Church Street, Pen-Y-Cae, Wrexham, LL14 — £230,000 • 2 bed • 1 bath • 817 ft²






































