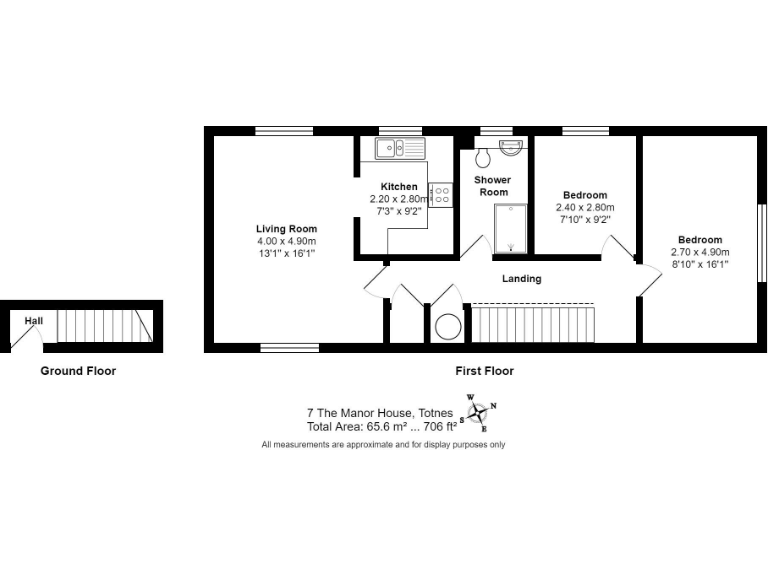
Spacious two-bedroom retirement flat with on-site support, close to Totnes amenities.
Dual-aspect lounge/diner with pleasant communal garden views
Light and airy and purpose-built for older residents, this first-floor two-bedroom apartment in The Manor House offers a peaceful, low-maintenance base close to Totnes town centre. The dual-aspect lounge/diner brings good natural light and views over the communal gardens, while the fitted kitchen and modern shower room provide practical everyday comfort.
Designed for over-60s living, the development includes a 24-hour Appello emergency call system and an on-site manager, giving reassurance and a supported environment. Communal grounds provide pleasant outdoor space without private garden upkeep, and the apartment’s size (approximately 706 sq ft) suits buyers looking to downsize without losing room for visitors or hobbies.
Buyers should note material factors: the lease has around 61 years remaining, which may limit mortgage options and could affect future resale value. Service charge (£3,174.36pa) and ground rent (£153.92pa) apply. There is a high local flood risk and recorded higher crime levels in the area — both important for insurance, safety planning and peace of mind.
The property’s heating is electric storage radiators and windows are secondary glazed; broadband speeds in the area are slow. The apartment is best suited to downsizers or retirees who prioritise location, on-site support and communal living but are comfortable managing lease length and running costs. Viewing advised to assess condition and suitability.
1 bedroom flat for sale in Coronation Road, Totnes, TQ9 — £140,000 • 1 bed • 1 bath • 496 ft²
2 bedroom apartment for sale in Coronation Road, Totnes, TQ9 — £150,000 • 2 bed • 1 bath • 592 ft²
2 bedroom apartment for sale in Coronation Road, Totnes, TQ9 — £199,950 • 2 bed • 1 bath • 553 ft²
2 bedroom flat for sale in Coronation Road, Totnes, Devon, TQ9 — £100,000 • 2 bed • 1 bath • 560 ft²
2 bedroom apartment for sale in Elmhirst Lodge, Station Road, Totnes, TQ9 — £499,950 • 2 bed • 2 bath • 644 ft²
1 bedroom apartment for sale in Elmhirst Lodge, Station Road, Totnes, TQ9 — £371,950 • 1 bed • 1 bath • 405 ft²










































