Bright south-facing apartment with wide sea views and central convenience.
South-facing 24' balcony with stunning English Channel and Beachy Head views
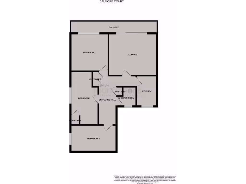
Lift access to third-floor apartment; private entrance hall
Three bedrooms, all with sea views; large lounge with sliding doors
Garage located to the rear; accessed from Eversley Road
Dated interior and 1970s fittings — needs modernisation
EPC D; cavity walls likely uninsulated — energy upgrades advised
High local crime rate and area classified as very deprived
Leasehold ~175 years remaining; chain free sale
Set on Bexhill seafront, this third-floor apartment delivers expansive south-facing views across the English Channel and toward Beachy Head. The large lounge opens onto a 24' balcony for sunshine and sunsets; all three bedrooms also face the sea. Lift access to the third floor and a privately-owned garage to the rear add useful convenience in a town-centre location.
The layout is traditional and straightforward: entrance hall, fitted kitchen, shower room and roomy living space. The building dates from the mid-20th century and the interior appears dated in places, so there is clear scope to update finishes and improve energy performance. The property is chain-free and sits on a long lease (circa 175 years remaining).
Practical points to note: the EPC is D, cavity walls are assumed uninsulated and the shower-room-only layout may not suit every buyer. The surrounding area records higher crime levels and is classified as very deprived, balanced by strong local amenities, transport links and well-regarded nearby schools. For buyers prioritising sea views and central convenience, this apartment offers immediate lifestyle value with straightforward potential to modernise and increase value.
3 bedroom flat for sale in De La Warr Parade, Bexhill on Sea, TN40 — £325,000 • 3 bed • 2 bath
2 bedroom apartment for sale in Marina, Bexhill on Sea, TN40 — £215,000 • 2 bed • 1 bath • 776 ft²
2 bedroom flat for sale in Wilton Road, Bexhill-on-Sea, TN40 — £269,000 • 2 bed • 1 bath • 1045 ft²
2 bedroom flat for sale in Marina, Bexhill on Sea, TN40 — £215,000 • 2 bed • 1 bath • 851 ft²
2 bedroom flat for sale in De la Warr Parade, Bexhill-on-Sea, TN40 — £215,000 • 2 bed • 1 bath
3 bedroom flat for sale in De la Warr Parade, Bexhill on Sea, TN40 — £267,500 • 3 bed • 1 bath • 1001 ft²


























































































































