Stylishly renovated three-bed home near beach, schools and high-speed rail links..
Detached garage and private off-street parking
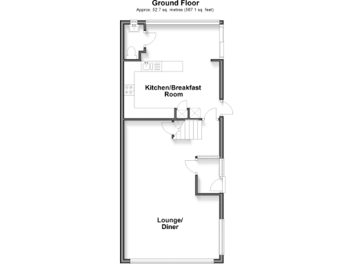
Extended open-plan lounge/diner and kitchen/breakfast room
Low-maintenance rear garden, good for entertaining
Walking distance to beach, high street, schools and station
Newly renovated with double glazing and modern finishes
Only one main bathroom for a three-bedroom house
Late 1970s build; partial cavity wall insulation assumed
Buyers must verify planning/building regulation consents for extension
This immaculately presented, extended semi-detached home in Enbrook Road offers comfortable, move-in-ready living for families and commuters. The open-plan layout provides a generous lounge/diner and kitchen/breakfast room, while three bedrooms suit growing households. Detached garage and off-street parking add practical appeal.
Positioned within easy walking distance of Sandgate high street, the beach, well-regarded schools and Folkestone West station, the location is a key strength for daily life and commuting to London. The rear garden is low-maintenance and good for relaxing or entertaining without heavy upkeep.
The property has been newly renovated and benefits from double glazing, mains gas central heating and fast broadband. Notable practical points: the home has one main bathroom only, the build dates from the late 1970s with partial cavity wall insulation assumed, and buyers should verify planning/building regulation consents for the extension.
Overall, this freehold, average-sized house (c. 899 sq ft) suits families wanting seaside living with commuter links, or buyers seeking a ready-to-use home with straightforward upkeep. Important checks — serviceability of appliances, legal tenure and extension consents — should be confirmed prior to purchase.
3 bedroom semi-detached house for sale in Meadowbrook, Sandgate, Folkestone, Kent, CT20 — £375,000 • 3 bed • 1 bath • 991 ft²
3 bedroom town house for sale in Enbrook Road, Sandgate, CT20 — £315,000 • 3 bed • 1 bath • 1441 ft²
4 bedroom semi-detached house for sale in Blaker Close, Folkestone, Kent, CT20 — £375,000 • 4 bed • 2 bath • 850 ft²
3 bedroom semi-detached house for sale in Meadowbrook, Sandgate, Folkestone, Kent, CT20 — £248,000 • 3 bed • 1 bath • 991 ft²
3 bedroom semi-detached house for sale in Enbrook Valley, Folkestone, CT20 — £415,000 • 3 bed • 1 bath • 1165 ft²
3 bedroom detached house for sale in Oxenden Road, Folkestone, Kent, CT20 — £350,000 • 3 bed • 1 bath • 796 ft²






























































