EX8 2RT - 3 bedroom end of terrace house for sale in Bicton Street, E…

View on Property Piper

3 bedroom end of terrace house for sale in Bicton Street, Exmouth, Devon, EX8

Summary - 6 BICTON STREET EXMOUTH EX8 2RT

3 bed 1 bath End of Terrace

**Standout Features:**
- Three-bedroom end of terrace home
- Spacious lounge and dining area
- Modern kitchen with white cabinetry and red accents
- Enclosed rear garden and garage for practical storage
- Low-maintenance design with potential for personalization
- Prime location in a peaceful, affluent neighborhood

**Potential Concerns:**
- Requires roof repairs and garage maintenance
- Limited insulation assumed; may need updates for energy efficiency
- Small plot size, which could suit some buyers but may feel compact for larger families

**Property Summary:**
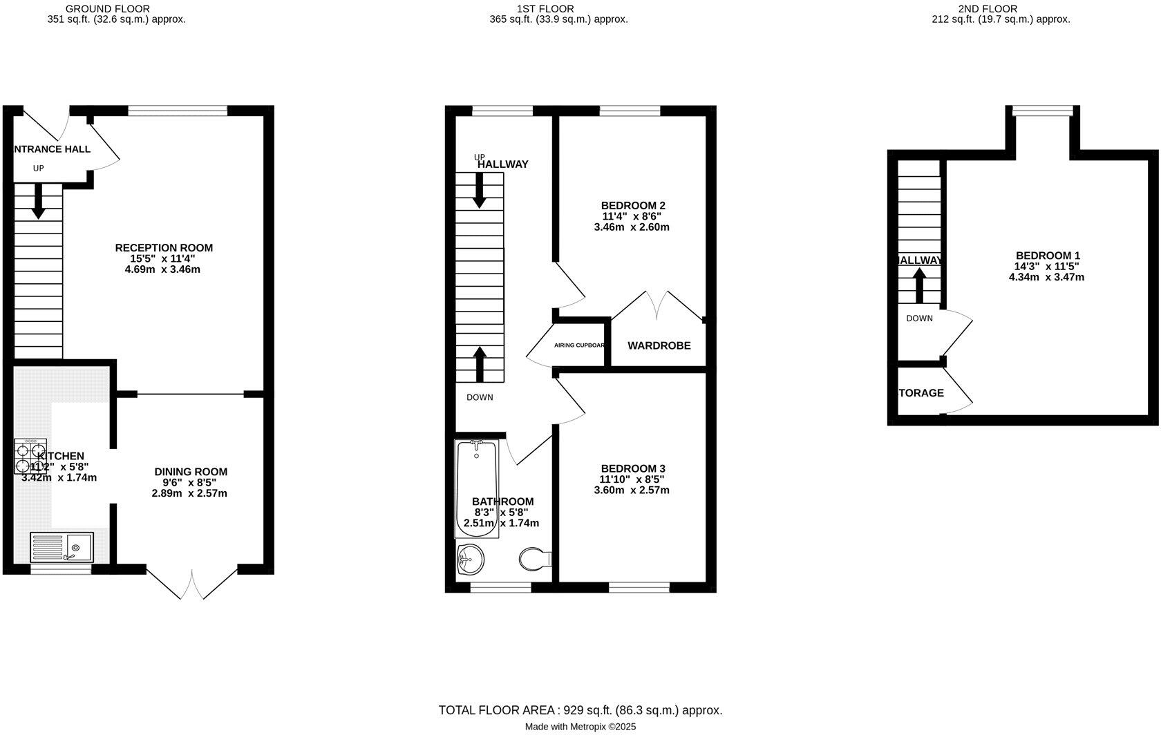
Discover comfort and convenience in this charming three-bedroom Neo-Georgian end of terrace home in the heart of Exmouth, offering an inviting lifestyle in an affluent, low-crime neighborhood. With 929 sq ft of living space, the property features bright and airy interiors, including a spacious lounge, a modern kitchen perfect for culinary enthusiasts, and a dining room for cozy family gatherings. Upstairs, find two generously sized bedrooms alongside a contemporary bathroom, with a large primary bedroom on the top floor offering valuable eaves storage.

This home also boasts an enclosed rear garden ideal for outdoor dining and relaxation, complemented by a practical garage for storage or potential workshop use. While some maintenance is needed, including roof work and garage upkeep, the property's proximity to local amenities, including shops and schools, makes it an attractive option for families and first-time buyers looking to establish themselves in a welcoming community. Don’t miss the opportunity to make this well-located home your own—act fast, as properties in this desirable area are snapped up quickly!

Property Details

Brochure Descriptions

Image Descriptions

Floorplan Description

Rooms

Textual Property Features

Detected Visual Features

EPC Details

Nearby Schools

Nearest Bars And Restaurants

,,,,}

Nearest General Shops

,,}

Nearest Grocery shops

,,}

Nearest Supermarkets

,,}

Nearest Religious buildings

,,}

Nearest Medical buildings

,,,}

Nearest Airports

}

Nearest Leisure Facilities

,,,,}

Nearest Tourist attractions

,,}

Nearest Train stations

,,,,}

Nearest Bus stations and stops

,,,,}

Nearest Hotels

,,}

Tags

Local Market Stats

AirBnB Data

Similar Properties

Meta

High Res Images

Compatible Images

Low res Images

Thumbnails

Raw Images

High Res Floorplan Images

Compatible Floorplan Images

Low res Floorplan Images

FloorplanImages Thumbnail

Raw Floorplan Images