Spacious five-bedroom new build on a huge plot near Dartmouth — ideal for growing families..
Five bedrooms, three with private en‑suites
New-build detached home with modern country stone facade
Open-plan kitchen/dining with island, contemporary finishes
Double garage and very large plot — significant upkeep required
Fast broadband; very low local crime; no flood risk
Located in a quiet hamlet — car recommended for errands
Average mobile signal; council tax not provided
Nearby good schools; two in local top 10%
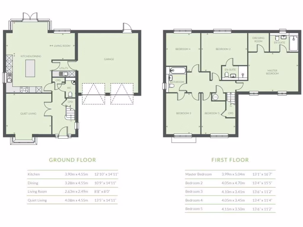
The Lilac is a newly built five-bedroom detached home arranged over two storeys, designed for family living and entertaining. Three bedrooms benefit from private en‑suites, and an open-plan kitchen/dining area with a central island provides a contemporary hub for day-to-day life and socialising.
Set on a very large plot in a quiet hamlet near Dartmouth, the property includes a double garage and a well-kept modern country façade. Fast broadband, very low local crime and no flood risk make this a practical choice for remote working and family safety. Good local schools—including two ranked in the top 10%—and nearby amenities such as a supermarket and fuel station add convenience.
Buyers should note a few material points: the house is in an isolated settlement so day-to-day travel will rely on a car, mobile signal is average, and the substantial plot will require ongoing maintenance. Council tax information is not provided. Overall, The Lilac is best suited to families seeking modern, spacious accommodation in an affluent rural setting with significant outdoor space.
5 bedroom detached house for sale in Little Cotton Farm, Dartmouth, Devon, TQ6 — £949,995 • 5 bed • 2 bath • 2631 ft²
4 bedroom detached house for sale in Little Cotton Farm, Dartmouth, Devon, TQ6 — £449,995 • 4 bed • 2 bath
4 bedroom detached house for sale in Little Cotton Farm, Dartmouth, Devon, TQ6 — £424,995 • 4 bed • 2 bath • 1169 ft²
3 bedroom semi-detached house for sale in Little Cotton Farm, Dartmouth, Devon, TQ6 — £339,995 • 3 bed • 2 bath • 919 ft²
3 bedroom detached house for sale in Dartmouth, Devon, TQ6 — £574,995 • 3 bed • 1 bath • 1038 ft²
5 bedroom detached house for sale in Little Cotton Farm, TQ6 — £949,995 • 5 bed • 3 bath • 1696 ft²


























































