35% share close to station and shops — ideal affordable commuter base.
- 35% shared ownership available, affordable entry into ownership
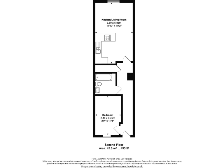
- Open-plan kitchen/living area; bright, compact and low-maintenance
- One double bedroom and modern bathroom, move-in ready
- Allocated off-street parking space included
- 116 years remaining on the lease, long lease term
- Service charge circa £139.16pcm; annual total approx £1,669.92
- Rent on 35% share approx £472.85pcm; factor ongoing costs
- Area has above-average crime and signs of local deprivation
This second-floor one-bedroom apartment is offered as a 35% shared ownership opportunity, ideal for first-time buyers seeking an affordable route into Welwyn Garden City. The layout features an open-plan kitchen and living area with a large window that brings good natural light to the compact, low-maintenance space. The bedroom and modern bathroom complete a straightforward, move-in-ready home.
Liberty House sits within Times Square development, less than a ten-minute walk to the town centre and station and only moments from Tesco and Aldi. The flat includes an allocated off-street parking space and benefits from excellent mobile signal and fast broadband — practical for commuters and home workers. The 116-year lease provides long-term security for shared-ownership holders.
Be aware of the ongoing costs: a monthly service charge (approximately £139.16) and an occupier rent of £472.85 for the 35% share, with an annual service charge shown at £1,669.92. The property has an EPC rating of D and sits in a neighbourhood with above-average crime and higher area deprivation indicators; buyers should factor local considerations into their decision. Council Tax band B offers modest local tax costs.
This flat is best for buyers prioritising central location, low-maintenance living and an affordable entry into ownership. It offers clear commuter advantages and practical conveniences, but buyers should budget for the rent element of shared ownership and review local area data before proceeding.
2 bedroom flat for sale in Liberty House, Bessemer Road, Welwyn Garden City, AL7 — £183,750 • 2 bed • 1 bath • 620 ft²
1 bedroom flat for sale in Liberty House, Bessemer Road, Welwyn Garden City, AL7 — £195,000 • 1 bed • 1 bath • 493 ft²
2 bedroom apartment for sale in Bessemer Road, Welwyn Garden City, AL7 — £94,500 • 2 bed • 1 bath • 668 ft²
2 bedroom flat for sale in Dakota House, Bessemer Road, Welwyn Garden City, AL7 — £146,250 • 2 bed • 2 bath • 710 ft²
1 bedroom flat for sale in Bessemer Road, WELWYN GARDEN CITY, AL7 — £80,500 • 1 bed • 1 bath • 473 ft²
1 bedroom ground floor flat for sale in Bessemer Road, Welwyn Garden City, AL7 — £52,500 • 1 bed • 1 bath • 316 ft²










































